|
|
|
| Larry Stein Oklahoma County Assessor (405) 713-1200 - Public Access System |
|
|
|
|
|
|
| Real Property Display - Screen Produced 3/12/2026 3:56:46 PM | ||||
|---|---|---|---|---|
| Account: R124421530 | Type: Residential | Location: |
1804 CHEROKEE TRL |
|
| Building Name/Occupant: |
|
CHOCTAW |
||
| Owner Name 1: | BREY THOMAS & RACHAEL |
Parcel PIN#: |
2301-12-442-1530 |
|
| Owner Name 2: | 1/4 section #: |
2301 |
||
| Owner Name 3: | Parent Acct: |
|
||
| Billing Address: | 1804 CHEROKEE TRL | Tax District: |
|
|
| City, State, Zip | CHOCTAW, OK 73020-8068 | School System: |
Choctaw #4 |
|
|
Country: (If noted) |
Land Size: |
0.1768 Acres |
||
|
Land Value: 33,110 |
|
|||
|
Sect 26-T12N-R1W Qtr NE |
CHOCTAW TRAILS SEC TWO
Block
010
Lot
032
|
|||
| Full Legal Description: CHOCTAW TRAILS SEC TWO 010 032 |
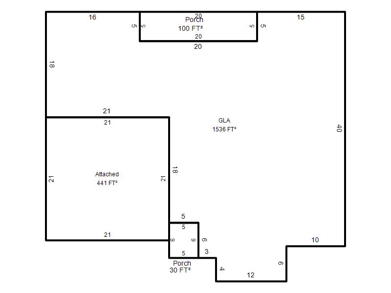
| Photo & Sketch (if available) | Comp Sales (ordered by relevancy) |
|
||||||||||||||||||
|
||||||||||||||||||||
| Value History (*The County Treasurer 405-713-1300 posts & collects actual tax amounts. Contact information HERE) | |||||||||||||
|---|---|---|---|---|---|---|---|---|---|---|---|---|---|
| Year | Market Value | Taxable Mkt Value | Gross Assessed | Exemption | Net Assessed | Millage | Est. Tax | Tax Savings | |||||
|
2025 |
223,000 |
169,252 |
18,617 |
18,617 |
0 |
117.21 |
$0 |
$2,875 |
|||||
|
2024 |
215,500 |
164,323 |
18,075 |
1,000 |
17,075 |
116.35 |
$1,987 |
$771 |
|||||
|
2023 |
205,500 |
159,537 |
17,549 |
1,000 |
16,549 |
118.06 |
$1,954 |
$715 |
|||||
|
2022 |
177,500 |
154,891 |
17,037 |
1,000 |
16,037 |
116.14 |
$1,863 |
$405 |
|||||
|
2021 |
159,500 |
150,380 |
16,541 |
1,000 |
15,541 |
116.17 |
$1,805 |
$233 |
|||||
| Property Account Status/Adjustments/Exemptions | ||
|---|---|---|
| Account # | Exemption Description | Amount |
|
R124421530 |
100% DAV Exemption |
100 |
|
R124421530 |
3% Cap Homestead |
0 |
|
R124421530 |
DAV Homestead |
0 |
| Property Deed Transaction History (Recorded in the County Clerk's Office) | ||||||||||
|---|---|---|---|---|---|---|---|---|---|---|
| Date | Type | Book | Page | Price | Grantor | Grantee | ||||
|
10/2/2024 |
|
Deeds |
$0 |
CHAPMAN RACHAEL |
BREY THOMAS & RACHAEL |
|||||
|
7/30/2021 |
|
Deeds |
$0 |
CHAPMAN RACHAEL |
CHAPMAN RACHAEL |
|||||
|
6/8/2018 |
|
Deeds |
$142,500 |
THOMPSON SHAWN E |
CHAPMAN RACHAEL |
|||||
|
2/28/2008 |
|
Deeds |
$126,000 |
PRINCE ROBERT & REBECCA |
THOMPSON SHAWN E |
|||||
|
5/23/2005 |
|
Deeds |
$109,000 |
BRIDGES CHRISTOPHER W |
PRINCE ROBERT & REBECCA |
|||||
| Last Mailed Notice of Value (N.O.V.) Information/History | ||||||||
|---|---|---|---|---|---|---|---|---|
| Year | Date | Market Value | Taxable Market Value | Gross Assessed | Exemption | Net Assessed | ||
|
2026 |
02/06/2026 |
235,500 |
174,329 |
19,175 |
19,175 |
0 |
||
|
2025 |
01/31/2025 |
223,000 |
169,252 |
18,617 |
18,617 |
0 |
||
|
2024 |
01/22/2024 |
215,500 |
164,323 |
18,075 |
1,000 |
17,075 |
||
|
2023 |
01/23/2023 |
205,500 |
159,537 |
17,549 |
1,000 |
16,549 |
||
|
2022 |
02/22/2022 |
177,500 |
154,891 |
17,037 |
1,000 |
16,037 |
||
| Property Building Permit History | ||||||
|---|---|---|---|---|---|---|
| Issued | Permit # | Provided by | Bldg # | Description | Est Construction Cost | Status |
|
1/1/2002 |
10211573 |
OKLAHOMA CITY |
1 |
Main Dwellin |
2,002 |
Inactive |
| Click button on building number to access detailed information: | ||||||
|---|---|---|---|---|---|---|
| Bldg # | Vacant/Improved Land | Bldg Description | Year Built | SqFt | # Stories | |
|
1 |
Improved |
Ranch 1 Story |
2001 |
1,536 |
1 Stories |
|