|
|
|
| Larry Stein Oklahoma County Assessor (405) 713-1200 - Public Access System |
|
|
|
|
|
|
| Real Property Display - Screen Produced 3/12/2026 2:16:09 PM | ||||
|---|---|---|---|---|
| Account: R124421590 | Type: Residential | Location: |
1708 CHEROKEE TRL |
|
| Building Name/Occupant: |
|
CHOCTAW |
||
| Owner Name 1: | FOURNIER JAY |
Parcel PIN#: |
2301-12-442-1590 |
|
| Owner Name 2: | 1/4 section #: |
2301 |
||
| Owner Name 3: | Parent Acct: |
|
||
| Billing Address: | 1708 CHEROKEE TRL | Tax District: |
|
|
| City, State, Zip | CHOCTAW, OK 73020-8070 | School System: |
Choctaw #4 |
|
|
Country: (If noted) |
Land Size: |
0.1768 Acres |
||
|
Land Value: 33,110 |
|
|||
|
Sect 26-T12N-R1W Qtr NE |
CHOCTAW TRAILS SEC TWO
Block
010
Lot
038
|
|||
| Full Legal Description: CHOCTAW TRAILS SEC TWO 010 038 |
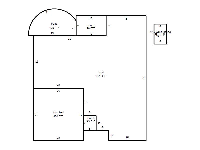
| Photo & Sketch (if available) | Comp Sales (ordered by relevancy) |
|
||||||||||||||||||
|
||||||||||||||||||||
| Value History (*The County Treasurer 405-713-1300 posts & collects actual tax amounts. Contact information HERE) | |||||||||||||
|---|---|---|---|---|---|---|---|---|---|---|---|---|---|
| Year | Market Value | Taxable Mkt Value | Gross Assessed | Exemption | Net Assessed | Millage | Est. Tax | Tax Savings | |||||
|
2025 |
223,000 |
169,831 |
18,681 |
1,000 |
17,681 |
117.21 |
$2,072 |
$803 |
|||||
|
2024 |
216,500 |
164,885 |
18,137 |
1,000 |
17,137 |
116.35 |
$1,994 |
$777 |
|||||
|
2023 |
206,500 |
160,083 |
17,608 |
1,000 |
16,608 |
118.06 |
$1,961 |
$721 |
|||||
|
2022 |
178,000 |
155,421 |
17,095 |
1,000 |
16,095 |
116.14 |
$1,869 |
$405 |
|||||
|
2021 |
159,500 |
150,895 |
16,598 |
1,000 |
15,598 |
116.17 |
$1,812 |
$226 |
|||||
| Property Account Status/Adjustments/Exemptions | ||
|---|---|---|
| Account # | Exemption Description | Amount |
|
R124421590 |
3% Cap Homestead |
0 |
|
R124421590 |
Homestead |
1,000 |
| Property Deed Transaction History (Recorded in the County Clerk's Office) | ||||||||||
|---|---|---|---|---|---|---|---|---|---|---|
| Date | Type | Book | Page | Price | Grantor | Grantee | ||||
|
1/27/2012 |
|
Deeds |
$128,000 |
FISCHER DUSTIN E & SHANNON E |
FOURNIER JAY |
|||||
|
6/27/2008 |
|
Deeds |
$125,000 |
EVANS MICHAEL L & TALIN M |
FISCHER DUSTIN E & SHANNON E |
|||||
|
9/10/2004 |
|
Deeds |
$109,000 |
IVES MICHAEL W |
EVANS MICHAEL L & TALIN M |
|||||
|
5/1/2001 |
|
Deeds |
$95,000 |
PRICED RITE INC |
IVES MICHAEL W |
|||||
|
7/24/2000 |
|
Deeds |
$13,000 |
FIRST AMERICAN TITLE & TRUST COMPANY TRS |
PRICED RITE INC |
|||||
| Last Mailed Notice of Value (N.O.V.) Information/History | ||||||||
|---|---|---|---|---|---|---|---|---|
| Year | Date | Market Value | Taxable Market Value | Gross Assessed | Exemption | Net Assessed | ||
|
2026 |
02/06/2026 |
235,500 |
174,925 |
19,241 |
1,000 |
18,241 |
||
|
2025 |
01/31/2025 |
223,000 |
169,831 |
18,681 |
1,000 |
17,681 |
||
|
2024 |
01/22/2024 |
216,500 |
164,885 |
18,137 |
1,000 |
17,137 |
||
|
2023 |
01/23/2023 |
206,500 |
160,083 |
17,608 |
1,000 |
16,608 |
||
|
2022 |
02/22/2022 |
178,000 |
155,421 |
17,095 |
1,000 |
16,095 |
||
| Property Building Permit History | |||||||||||
|---|---|---|---|---|---|---|---|---|---|---|---|
| Issued | Permit # | Provided by | Bldg # | Description | Est Construction Cost | Status | |||||
| No Building Permit records returned. | |||||||||||
| Click button on building number to access detailed information: | ||||||
|---|---|---|---|---|---|---|
| Bldg # | Vacant/Improved Land | Bldg Description | Year Built | SqFt | # Stories | |
|
1 |
Improved |
Ranch 1 Story |
2001 |
1,528 |
1 Stories |
|