|
|
|
| Larry Stein Oklahoma County Assessor (405) 713-1200 - Public Access System |
|
|
|
|
|
|
| Real Property Display - Screen Produced 3/12/2026 2:21:30 PM | ||||
|---|---|---|---|---|
| Account: R124421630 | Type: Residential | Location: |
14720 CHOCTAW TRL |
|
| Building Name/Occupant: |
|
CHOCTAW |
||
| Owner Name 1: | DEASON PATRICIA |
Parcel PIN#: |
2301-12-442-1630 |
|
| Owner Name 2: | 1/4 section #: |
2301 |
||
| Owner Name 3: | Parent Acct: |
|
||
| Billing Address: | 14720 CHOCTAW TRL | Tax District: |
|
|
| City, State, Zip | CHOCTAW, OK 73020-8049 | School System: |
Choctaw #4 |
|
|
Country: (If noted) |
Land Size: |
0.1515 Acres |
||
|
Land Value: 28,380 |
|
|||
|
Sect 26-T12N-R1W Qtr NE |
CHOCTAW TRAILS SEC TWO
Block
011
Lot
002
|
|||
| Full Legal Description: CHOCTAW TRAILS SEC TWO 011 002 |
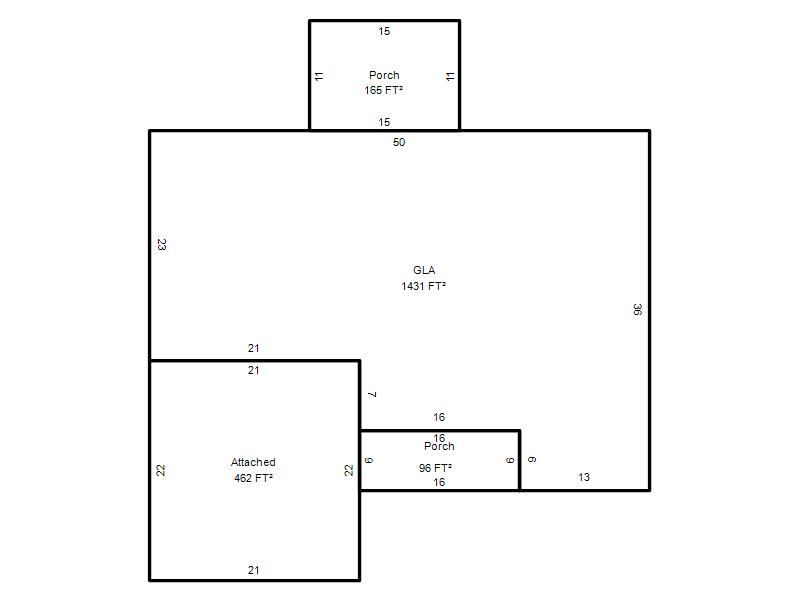
| Photo & Sketch (if available) | Comp Sales (ordered by relevancy) |
|
||||||||||||||||||
|
||||||||||||||||||||
| Value History (*The County Treasurer 405-713-1300 posts & collects actual tax amounts. Contact information HERE) | |||||||||||||
|---|---|---|---|---|---|---|---|---|---|---|---|---|---|
| Year | Market Value | Taxable Mkt Value | Gross Assessed | Exemption | Net Assessed | Millage | Est. Tax | Tax Savings | |||||
|
2025 |
212,500 |
135,445 |
14,898 |
1,000 |
13,898 |
117.21 |
$1,629 |
$1,111 |
|||||
|
2024 |
206,000 |
135,445 |
14,898 |
1,000 |
13,898 |
116.35 |
$1,617 |
$1,019 |
|||||
|
2023 |
196,000 |
135,445 |
14,898 |
1,000 |
13,898 |
118.06 |
$1,641 |
$904 |
|||||
|
2022 |
169,000 |
135,445 |
14,898 |
1,000 |
13,898 |
116.14 |
$1,614 |
$545 |
|||||
|
2021 |
152,000 |
135,445 |
14,898 |
1,000 |
13,898 |
116.17 |
$1,615 |
$328 |
|||||
| Property Account Status/Adjustments/Exemptions | ||
|---|---|---|
| Account # | Exemption Description | Amount |
|
R124421630 |
Freeze Senior Valuation |
0 |
|
R124421630 |
3% Cap Homestead |
0 |
|
R124421630 |
Homestead |
1,000 |
| Property Deed Transaction History (Recorded in the County Clerk's Office) | ||||||||||
|---|---|---|---|---|---|---|---|---|---|---|
| Date | Type | Book | Page | Price | Grantor | Grantee | ||||
|
12/20/2005 |
|
Deeds |
$104,000 |
HUSSAIN JACOB |
DEASON PATRICIA |
|||||
|
7/26/2005 |
|
Deeds |
$101,000 |
COLLINS BRIAN W |
HUSSAIN JACOB |
|||||
|
12/17/1999 |
|
Deeds |
$84,000 |
CHILDERS MICHAEL & LEANN |
COLLINS BRIAN W |
|||||
|
7/15/1999 |
|
Deeds |
$11,000 |
FIRST AMERICAN TITLE |
CHILDERS MICHAEL & LEANN |
|||||
|
3/11/1996 |
|
Historical |
$0 |
FOUR STAR HOMES INC |
FIRST AMERICAN TITLE |
|||||
| Last Mailed Notice of Value (N.O.V.) Information/History | ||||||||
|---|---|---|---|---|---|---|---|---|
| Year | Date | Market Value | Taxable Market Value | Gross Assessed | Exemption | Net Assessed | ||
|
2026 |
02/06/2026 |
224,000 |
135,445 |
14,898 |
1,000 |
13,898 |
||
|
2025 |
01/31/2025 |
212,500 |
135,445 |
14,898 |
1,000 |
13,898 |
||
|
2024 |
01/22/2024 |
206,000 |
135,445 |
14,898 |
1,000 |
13,898 |
||
|
2023 |
01/23/2023 |
196,000 |
135,445 |
14,898 |
1,000 |
13,898 |
||
|
2022 |
02/22/2022 |
169,000 |
135,445 |
14,898 |
1,000 |
13,898 |
||
| Property Building Permit History | ||||||
|---|---|---|---|---|---|---|
| Issued | Permit # | Provided by | Bldg # | Description | Est Construction Cost | Status |
|
7/2/1999 |
10211588 |
CHOCTAW |
1 |
Main Dwellin |
0 |
Inactive |
| Click button on building number to access detailed information: | ||||||
|---|---|---|---|---|---|---|
| Bldg # | Vacant/Improved Land | Bldg Description | Year Built | SqFt | # Stories | |
|
1 |
Improved |
Ranch 1 Story |
1999 |
1,431 |
1 Stories |
|