|
|
|
| Larry Stein Oklahoma County Assessor (405) 713-1200 - Public Access System |
|
|
|
|
|
|
| Real Property Display - Screen Produced 3/12/2026 2:21:31 PM | ||||
|---|---|---|---|---|
| Account: R124421750 | Type: Residential | Location: |
1725 CHEROKEE TRL |
|
| Building Name/Occupant: |
|
CHOCTAW |
||
| Owner Name 1: | ARMSTRONG DOUG |
Parcel PIN#: |
2301-12-442-1750 |
|
| Owner Name 2: | 1/4 section #: |
2301 |
||
| Owner Name 3: | Parent Acct: |
|
||
| Billing Address: | 1725 CHEROKEE TRL | Tax District: |
|
|
| City, State, Zip | CHOCTAW, OK 73020-8067 | School System: |
Choctaw #4 |
|
|
Country: (If noted) |
Land Size: |
0.1667 Acres |
||
|
Land Value: 31,218 |
|
|||
|
Sect 26-T12N-R1W Qtr NE |
CHOCTAW TRAILS SEC TWO
Block
011
Lot
014
|
|||
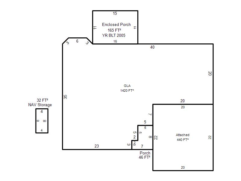
| Full Legal Description: CHOCTAW TRAILS SEC TWO 011 014 |
| Photo & Sketch (if available) | Comp Sales (ordered by relevancy) |
|
||||||||||||||||||
|
||||||||||||||||||||
| Value History (*The County Treasurer 405-713-1300 posts & collects actual tax amounts. Contact information HERE) | |||||||||||||
|---|---|---|---|---|---|---|---|---|---|---|---|---|---|
| Year | Market Value | Taxable Mkt Value | Gross Assessed | Exemption | Net Assessed | Millage | Est. Tax | Tax Savings | |||||
|
2025 |
223,000 |
181,231 |
19,935 |
0 |
19,935 |
117.21 |
$2,337 |
$539 |
|||||
|
2024 |
215,000 |
172,601 |
18,986 |
0 |
18,986 |
116.35 |
$2,209 |
$543 |
|||||
|
2023 |
204,000 |
164,382 |
18,082 |
0 |
18,082 |
118.06 |
$2,135 |
$515 |
|||||
|
2022 |
177,000 |
156,555 |
17,221 |
0 |
17,221 |
116.14 |
$2,000 |
$261 |
|||||
|
2021 |
155,000 |
149,100 |
16,401 |
0 |
16,401 |
116.17 |
$1,905 |
$75 |
|||||
| Property Account Status/Adjustments/Exemptions | ||
|---|---|---|
| Account # | Exemption Description | Amount |
|
R124421750 |
5% Capped Account |
0 |
| Property Deed Transaction History (Recorded in the County Clerk's Office) | ||||||||||
|---|---|---|---|---|---|---|---|---|---|---|
| Date | Type | Book | Page | Price | Grantor | Grantee | ||||
|
10/9/2007 |
|
Deeds |
$119,000 |
CEARLEY CODY A & VICKY M |
ARMSTRONG DOUG |
|||||
|
5/25/2004 |
|
Deeds |
$104,000 |
HOWARD DAVID L & ANDREA L |
CEARLEY CODY A & VICKY M |
|||||
|
7/27/2001 |
|
Deeds |
$93,000 |
PRICED RITE INC |
HOWARD DAVID L & ANDREA L |
|||||
|
12/1/2000 |
|
Deeds |
$14,000 |
FIRST AMERICAN TITLE & TRUST COMPANY TRS |
PRICED RITE INC |
|||||
|
11/15/1999 |
|
Other |
$0 |
FOUR STAR HOMES INC |
FIRST AMERICAN TITLE & TRUST COMPANY TRS |
|||||
| Last Mailed Notice of Value (N.O.V.) Information/History | ||||||||
|---|---|---|---|---|---|---|---|---|
| Year | Date | Market Value | Taxable Market Value | Gross Assessed | Exemption | Net Assessed | ||
|
2026 |
02/06/2026 |
231,000 |
190,292 |
20,931 |
0 |
20,931 |
||
|
2025 |
01/31/2025 |
223,000 |
181,231 |
19,935 |
0 |
19,935 |
||
|
2024 |
01/22/2024 |
215,000 |
172,601 |
18,986 |
0 |
18,986 |
||
|
2023 |
01/23/2023 |
204,000 |
164,382 |
18,082 |
0 |
18,082 |
||
|
2022 |
02/22/2022 |
177,000 |
156,555 |
17,221 |
0 |
17,221 |
||
| Property Building Permit History | ||||||
|---|---|---|---|---|---|---|
| Issued | Permit # | Provided by | Bldg # | Description | Est Construction Cost | Status |
|
11/21/2000 |
10211605 |
CHOCTAW |
1 |
Main Dwellin |
80,000 |
Inactive |
| Click button on building number to access detailed information: | ||||||
|---|---|---|---|---|---|---|
| Bldg # | Vacant/Improved Land | Bldg Description | Year Built | SqFt | # Stories | |
|
1 |
Improved |
Ranch 1 Story |
2001 |
1,420 |
1 Stories |
|