|
|
|
| Larry Stein Oklahoma County Assessor (405) 713-1200 - Public Access System |
|
|
|
|
|
|
| Real Property Display - Screen Produced 3/12/2026 3:56:56 PM | ||||
|---|---|---|---|---|
| Account: R124421810 | Type: Residential | Location: |
1817 CHEROKEE TRL |
|
| Building Name/Occupant: |
|
CHOCTAW |
||
| Owner Name 1: | ANDERSON MELISSA |
Parcel PIN#: |
2301-12-442-1810 |
|
| Owner Name 2: | 1/4 section #: |
2301 |
||
| Owner Name 3: | Parent Acct: |
|
||
| Billing Address: | 1817 CHEROKEE TRL | Tax District: |
|
|
| City, State, Zip | CHOCTAW, OK 73020-8069 | School System: |
Choctaw #4 |
|
|
Country: (If noted) |
Land Size: |
0.1667 Acres |
||
|
Land Value: 31,218 |
|
|||
|
Sect 26-T12N-R1W Qtr NE |
CHOCTAW TRAILS SEC TWO
Block
011
Lot
020
|
|||
| Full Legal Description: CHOCTAW TRAILS SEC TWO 011 020 |
| Photo & Sketch (if available) | Comp Sales (ordered by relevancy) |
|
||||||||||||||||||
|
||||||||||||||||||||
| Value History (*The County Treasurer 405-713-1300 posts & collects actual tax amounts. Contact information HERE) | |||||||||||||
|---|---|---|---|---|---|---|---|---|---|---|---|---|---|
| Year | Market Value | Taxable Mkt Value | Gross Assessed | Exemption | Net Assessed | Millage | Est. Tax | Tax Savings | |||||
|
2025 |
229,500 |
171,565 |
18,871 |
1,000 |
17,871 |
117.21 |
$2,095 |
$864 |
|||||
|
2024 |
220,500 |
166,568 |
18,321 |
1,000 |
17,321 |
116.35 |
$2,015 |
$807 |
|||||
|
2023 |
210,500 |
161,717 |
17,788 |
1,000 |
16,788 |
118.06 |
$1,982 |
$752 |
|||||
|
2022 |
183,500 |
157,007 |
17,270 |
1,000 |
16,270 |
116.14 |
$1,890 |
$455 |
|||||
|
2021 |
162,000 |
152,434 |
16,767 |
1,000 |
15,767 |
116.17 |
$1,832 |
$238 |
|||||
| Property Account Status/Adjustments/Exemptions | ||
|---|---|---|
| Account # | Exemption Description | Amount |
|
R124421810 |
3% Cap Homestead |
0 |
|
R124421810 |
Homestead |
1,000 |
| Property Deed Transaction History (Recorded in the County Clerk's Office) | ||||||||||
|---|---|---|---|---|---|---|---|---|---|---|
| Date | Type | Book | Page | Price | Grantor | Grantee | ||||
|
1/20/2017 |
|
Deeds |
$141,000 |
SHADOAN DESIREE GAIL |
ANDERSON MELISSA |
|||||
|
7/3/2014 |
|
Deeds |
$133,000 |
PERKINS BLAIN M & BRITTNEY N |
SHADOAN DESIREE GAIL |
|||||
|
12/13/2013 |
|
Deeds |
$129,000 |
MYERS CAROL LORRAINE |
PERKINS BLAIN M & BRITTNEY N |
|||||
|
10/12/2010 |
|
Deeds |
$0 |
MYERS MARK ALAN |
MYERS CAROL LORRAINE |
|||||
|
8/13/2007 |
|
Deeds |
$117,000 |
PUGH RALPH L |
MYERS CAROL L |
|||||
| Last Mailed Notice of Value (N.O.V.) Information/History | ||||||||
|---|---|---|---|---|---|---|---|---|
| Year | Date | Market Value | Taxable Market Value | Gross Assessed | Exemption | Net Assessed | ||
|
2026 |
02/06/2026 |
241,500 |
176,711 |
19,438 |
1,000 |
18,438 |
||
|
2025 |
01/31/2025 |
229,500 |
171,565 |
18,871 |
1,000 |
17,871 |
||
|
2024 |
01/22/2024 |
220,500 |
166,568 |
18,321 |
1,000 |
17,321 |
||
|
2023 |
01/23/2023 |
210,500 |
161,717 |
17,788 |
1,000 |
16,788 |
||
|
2022 |
02/22/2022 |
183,500 |
157,007 |
17,270 |
1,000 |
16,270 |
||
| Property Building Permit History | ||||||
|---|---|---|---|---|---|---|
| Issued | Permit # | Provided by | Bldg # | Description | Est Construction Cost | Status |
|
3/5/2001 |
10211613 |
CHOCTAW |
1 |
Other |
1,985 |
Inactive |
|
1/31/2000 |
10211614 |
CHOCTAW |
1 |
Main Dwellin |
60,000 |
Inactive |
| Click button on building number to access detailed information: | ||||||
|---|---|---|---|---|---|---|
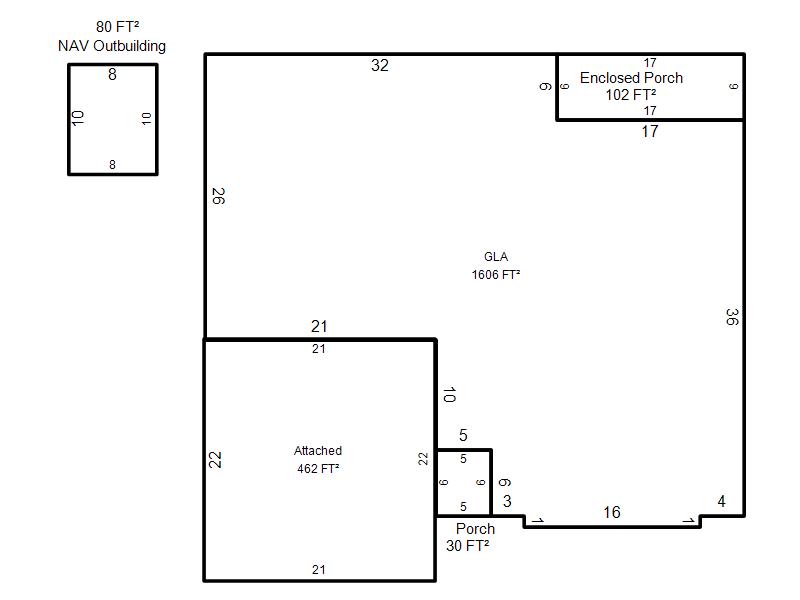
| Bldg # | Vacant/Improved Land | Bldg Description | Year Built | SqFt | # Stories | |
|
1 |
Improved |
Ranch 1 Story |
2000 |
1,606 |
1 Stories |
|