|
|
|
| Larry Stein Oklahoma County Assessor (405) 713-1200 - Public Access System |
|
|
|
|
|
|
| Real Property Display - Screen Produced 3/12/2026 3:58:24 PM | ||||
|---|---|---|---|---|
| Account: R124421820 | Type: Residential | Location: |
1821 CHEROKEE TRL |
|
| Building Name/Occupant: |
|
CHOCTAW |
||
| Owner Name 1: | HAGAN HERMAN |
Parcel PIN#: |
2301-12-442-1820 |
|
| Owner Name 2: | HAGAN TYLER & JAMIE | 1/4 section #: |
2301 |
|
| Owner Name 3: | Parent Acct: |
|
||
| Billing Address: | 1821 CHEROKEE TRL | Tax District: |
|
|
| City, State, Zip | CHOCTAW, OK 73020-8069 | School System: |
Choctaw #4 |
|
|
Country: (If noted) |
Land Size: |
0.1717 Acres |
||
|
Land Value: 32,164 |
|
|||
|
Sect 26-T12N-R1W Qtr NE |
CHOCTAW TRAILS SEC TWO
Block
011
Lot
021
|
|||
| Full Legal Description: CHOCTAW TRAILS SEC TWO 011 021 |
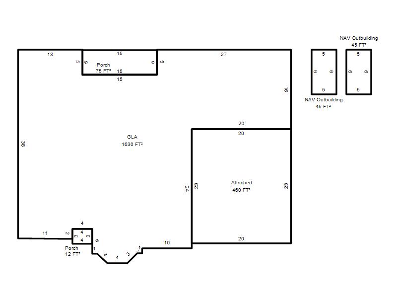
| Photo & Sketch (if available) | Comp Sales (ordered by relevancy) |
|
||||||||||||||||||
|
||||||||||||||||||||
| Value History (*The County Treasurer 405-713-1300 posts & collects actual tax amounts. Contact information HERE) | |||||||||||||
|---|---|---|---|---|---|---|---|---|---|---|---|---|---|
| Year | Market Value | Taxable Mkt Value | Gross Assessed | Exemption | Net Assessed | Millage | Est. Tax | Tax Savings | |||||
|
2025 |
226,500 |
188,249 |
20,707 |
0 |
20,707 |
117.21 |
$2,427 |
$493 |
|||||
|
2024 |
219,000 |
179,285 |
19,721 |
0 |
19,721 |
116.35 |
$2,295 |
$508 |
|||||
|
2023 |
209,500 |
170,748 |
18,781 |
0 |
18,781 |
118.06 |
$2,217 |
$503 |
|||||
|
2022 |
180,500 |
162,618 |
17,887 |
0 |
17,887 |
116.14 |
$2,078 |
$228 |
|||||
|
2021 |
161,000 |
154,875 |
17,036 |
0 |
17,036 |
116.17 |
$1,979 |
$78 |
|||||
| Property Account Status/Adjustments/Exemptions | ||
|---|---|---|
| Account # | Exemption Description | Amount |
|
R124421820 |
5% Capped Account |
0 |
| Property Deed Transaction History (Recorded in the County Clerk's Office) | ||||||||||
|---|---|---|---|---|---|---|---|---|---|---|
| Date | Type | Book | Page | Price | Grantor | Grantee | ||||
|
2/23/2012 |
|
Deeds |
$118,000 |
HILL BLAIR HILL JODI |
HAGAN HERMAN |
|||||
|
2/27/2009 |
|
Deeds |
$135,000 |
CULPEPPER CHARITY |
HILL BLAIR HILL JODI |
|||||
|
6/19/2008 |
|
Deeds |
$0 |
CULPEPPER JOSEPH R & CHARITY A |
CULPEPPER CHARITY |
|||||
|
6/9/2003 |
|
Hmstd Off & |
$0 |
CULPEPPER WILLIAM R & REBECCA A |
CULPEPPER JOSEPH R & CHARITY A |
|||||
|
6/9/2003 |
|
Deeds |
$0 |
CULPEPPER WILLIAM R & REBECCA A |
CULPEPPER JOSEPH R & CHARITY A |
|||||
| Last Mailed Notice of Value (N.O.V.) Information/History | ||||||||
|---|---|---|---|---|---|---|---|---|
| Year | Date | Market Value | Taxable Market Value | Gross Assessed | Exemption | Net Assessed | ||
|
2026 |
02/06/2026 |
239,000 |
197,661 |
21,742 |
0 |
21,742 |
||
|
2025 |
01/31/2025 |
226,500 |
188,249 |
20,707 |
0 |
20,707 |
||
|
2024 |
01/22/2024 |
219,000 |
179,285 |
19,721 |
0 |
19,721 |
||
|
2023 |
01/23/2023 |
209,500 |
170,748 |
18,781 |
0 |
18,781 |
||
|
2022 |
02/22/2022 |
180,500 |
162,618 |
17,887 |
0 |
17,887 |
||
| Property Building Permit History | ||||||
|---|---|---|---|---|---|---|
| Issued | Permit # | Provided by | Bldg # | Description | Est Construction Cost | Status |
|
1/31/2000 |
10211616 |
CHOCTAW |
1 |
Main Dwellin |
60,000 |
Inactive |
| Click button on building number to access detailed information: | ||||||
|---|---|---|---|---|---|---|
| Bldg # | Vacant/Improved Land | Bldg Description | Year Built | SqFt | # Stories | |
|
1 |
Improved |
Ranch 1 Story |
2000 |
1,630 |
1 Stories |
|