|
|
|
| Larry Stein Oklahoma County Assessor (405) 713-1200 - Public Access System |
|
|
|
|
|
|
| Real Property Display - Screen Produced 3/12/2026 2:21:00 PM | ||||
|---|---|---|---|---|
| Account: R124421850 | Type: Residential | Location: |
1905 CHEROKEE TRL |
|
| Building Name/Occupant: |
|
CHOCTAW |
||
| Owner Name 1: | PATTERSON MCCLAIN ARLETHA M |
Parcel PIN#: |
2301-12-442-1850 |
|
| Owner Name 2: | 1/4 section #: |
2301 |
||
| Owner Name 3: | Parent Acct: |
|
||
| Billing Address: | 1905 CHEROKEE TRL | Tax District: |
|
|
| City, State, Zip | CHOCTAW, OK 73020-8071 | School System: |
Choctaw #4 |
|
|
Country: (If noted) |
Land Size: |
0.1717 Acres |
||
|
Land Value: 32,164 |
|
|||
|
Sect 26-T12N-R1W Qtr NE |
CHOCTAW TRAILS SEC TWO
Block
011
Lot
024
|
|||
| Full Legal Description: CHOCTAW TRAILS SEC TWO 011 024 |
| Photo & Sketch (if available) | Comp Sales (ordered by relevancy) |
|
||||||||||||||||||
|
||||||||||||||||||||
| Value History (*The County Treasurer 405-713-1300 posts & collects actual tax amounts. Contact information HERE) | |||||||||||||
|---|---|---|---|---|---|---|---|---|---|---|---|---|---|
| Year | Market Value | Taxable Mkt Value | Gross Assessed | Exemption | Net Assessed | Millage | Est. Tax | Tax Savings | |||||
|
2025 |
222,500 |
166,030 |
18,262 |
1,000 |
17,262 |
117.21 |
$2,023 |
$845 |
|||||
|
2024 |
215,500 |
161,195 |
17,731 |
1,000 |
16,731 |
116.35 |
$1,947 |
$811 |
|||||
|
2023 |
205,500 |
156,500 |
17,214 |
1,000 |
16,214 |
118.06 |
$1,914 |
$754 |
|||||
|
2022 |
177,000 |
151,942 |
16,712 |
1,000 |
15,712 |
116.14 |
$1,825 |
$436 |
|||||
|
2021 |
157,500 |
147,517 |
16,226 |
1,000 |
15,226 |
116.17 |
$1,769 |
$244 |
|||||
| Property Account Status/Adjustments/Exemptions | ||
|---|---|---|
| Account # | Exemption Description | Amount |
|
R124421850 |
3% Cap Homestead |
0 |
|
R124421850 |
Homestead |
1,000 |
| Property Deed Transaction History (Recorded in the County Clerk's Office) | |||||||
|---|---|---|---|---|---|---|---|
| Date | Type | Book | Page | Price | Grantor | Grantee | |
|
3/16/2017 |
|
Deeds |
$0 |
PATTERSON ARLETHA M |
PATTERSON MCCLAIN ARLETHA M |
||
|
8/31/2001 |
|
Deeds |
$97,000 |
OAKWOOD CONSTRUCTION CORPORATION |
PATTERSON ARLETHA M |
||
|
3/9/2000 |
|
Deeds |
$13,000 |
FIRST AMERICAN TITLE & TRUST COMPANY TRS |
OAKWOOD CONSTRUCTION CORPORATION |
||
|
11/15/1999 |
|
Other |
$0 |
FOUR STAR HOMES INC |
FIRST AMERICAN TITLE & TRUST COMPANY TRS |
||
|
11/11/1911 |
|
Historical |
$0 |
|
FOUR STAR HOMES INC |
||
| Last Mailed Notice of Value (N.O.V.) Information/History | ||||||||
|---|---|---|---|---|---|---|---|---|
| Year | Date | Market Value | Taxable Market Value | Gross Assessed | Exemption | Net Assessed | ||
|
2026 |
02/06/2026 |
235,000 |
171,010 |
18,810 |
1,000 |
17,810 |
||
|
2025 |
01/31/2025 |
222,500 |
166,030 |
18,262 |
1,000 |
17,262 |
||
|
2024 |
01/22/2024 |
215,500 |
161,195 |
17,731 |
1,000 |
16,731 |
||
|
2023 |
01/23/2023 |
205,500 |
156,500 |
17,214 |
1,000 |
16,214 |
||
|
2022 |
02/22/2022 |
177,000 |
151,942 |
16,712 |
1,000 |
15,712 |
||
| Property Building Permit History | ||||||
|---|---|---|---|---|---|---|
| Issued | Permit # | Provided by | Bldg # | Description | Est Construction Cost | Status |
|
3/7/2000 |
10211621 |
CHOCTAW |
1 |
Main Dwellin |
87,000 |
Inactive |
| Click button on building number to access detailed information: | ||||||
|---|---|---|---|---|---|---|
| Bldg # | Vacant/Improved Land | Bldg Description | Year Built | SqFt | # Stories | |
|
1 |
Improved |
Ranch 1 Story |
2000 |
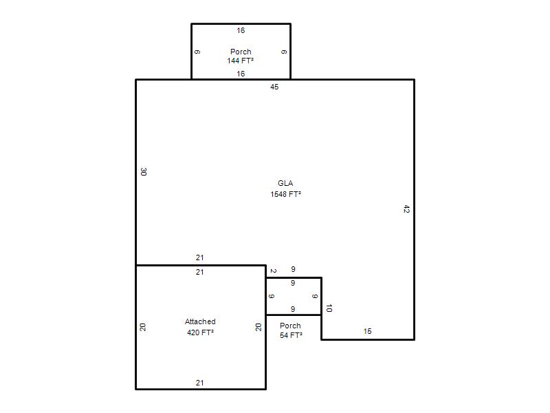
1,548 |
1 Stories |
|