|
|
|
| Larry Stein Oklahoma County Assessor (405) 713-1200 - Public Access System |
|
|
|
|
|
|
| Real Property Display - Screen Produced 3/22/2026 7:45:04 AM | ||||
|---|---|---|---|---|
| Account: R195824560 | Type: Residential | Location: |
11008 JEFFORDS AVE |
|
| Building Name/Occupant: |
|
NICOMA PARK |
||
| Owner Name 1: | NEIGHBORS BRODERICK GLENN TRS |
Parcel PIN#: |
2316-19-582-4560 |
|
| Owner Name 2: | NEIGHBORS BRODERICK GLENN REV TRUST | 1/4 section #: |
2316 |
|
| Owner Name 3: | Parent Acct: |
|
||
| Billing Address: | 11221 JEFFORDS AVE | Tax District: |
|
|
| City, State, Zip | CHOCTAW, OK 73020 | School System: |
Choctaw #4 |
|
|
Country: (If noted) |
Land Size: |
1.4144 Acres |
||
|
Land Value: 33,315 |
|
|||
|
Sect 29-T12N-R1W Qtr NW |
NICOMA PARK ADDITION
Block
010
Lot
000
|
|||
| Full Legal Description: NICOMA PARK ADDITION 010 000 W110FT OF LOT 4 |
| No comparable sales report available. | ||||||||||||||||||||||
|
||||||||||||||||||||||
| Value History (*The County Treasurer 405-713-1300 posts & collects actual tax amounts. Contact information HERE) | |||||||||||||
|---|---|---|---|---|---|---|---|---|---|---|---|---|---|
| Year | Market Value | Taxable Mkt Value | Gross Assessed | Exemption | Net Assessed | Millage | Est. Tax | Tax Savings | |||||
|
2025 |
264,132 |
252,194 |
27,741 |
0 |
27,741 |
117.21 |
$3,252 |
$154 |
|||||
|
2024 |
265,083 |
240,185 |
26,420 |
0 |
26,420 |
116.35 |
$3,074 |
$319 |
|||||
|
2023 |
228,748 |
228,748 |
25,162 |
0 |
25,162 |
117.10 |
$2,947 |
$0 |
|||||
|
2022 |
225,580 |
174,337 |
19,176 |
0 |
19,176 |
115.17 |
$2,209 |
$649 |
|||||
|
2021 |
174,335 |
166,036 |
18,263 |
0 |
18,263 |
115.06 |
$2,101 |
$105 |
|||||
| Property Account Status/Adjustments/Exemptions | ||
|---|---|---|
| Account # | Exemption Description | Amount |
|
R195824560 |
5% Capped Account |
0 |
| Property Deed Transaction History (Recorded in the County Clerk's Office) | ||||||||||
|---|---|---|---|---|---|---|---|---|---|---|
| Date | Type | Book | Page | Price | Grantor | Grantee | ||||
|
12/6/2022 |
|
Hmstd Off & |
$0 |
NEIGHBORS BRODERICK G TRS |
NEIGHBORS BRODERICK GLENN TRS |
|||||
|
5/12/2022 |
|
Deeds |
$225,000 |
CHEEK MERRY T |
NEIGHBORS BRODERICK |
|||||
|
5/2/2022 |
|
Hmstd Off & |
$0 |
CHEEK MERRY T ETAL |
CHEEK MERRY T |
|||||
|
4/28/2022 |
|
Hmstd Off & |
$0 |
CHEEK MERRY T |
CHEEK MERRY T |
|||||
|
4/27/2022 |
|
Hmstd Off & |
$0 |
CHEEK MERRY T |
CHEEK MERRY T |
|||||
| Last Mailed Notice of Value (N.O.V.) Information/History | ||||||||
|---|---|---|---|---|---|---|---|---|
| Year | Date | Market Value | Taxable Market Value | Gross Assessed | Exemption | Net Assessed | ||
|
2026 |
02/06/2026 |
324,983 |
264,803 |
29,128 |
0 |
29,128 |
||
|
2025 |
01/31/2025 |
264,132 |
252,194 |
27,741 |
0 |
27,741 |
||
|
2024 |
01/22/2024 |
265,083 |
240,185 |
26,420 |
0 |
26,420 |
||
|
2023 |
01/23/2023 |
228,748 |
228,748 |
25,162 |
0 |
25,162 |
||
|
2022 |
02/22/2022 |
225,580 |
174,337 |
19,176 |
0 |
19,176 |
||
| Property Building Permit History | |||||||||||
|---|---|---|---|---|---|---|---|---|---|---|---|
| Issued | Permit # | Provided by | Bldg # | Description | Est Construction Cost | Status | |||||
| No Building Permit records returned. | |||||||||||
| Click button on building number to access detailed information: | ||||||
|---|---|---|---|---|---|---|
| Bldg # | Vacant/Improved Land | Bldg Description | Year Built | SqFt | # Stories | |
|
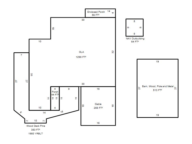
1 |
Improved |
Ranch 1 Story |
1967 |
1,290 |
1 Stories |
|
|
2 |
Improved |
2 Story |
1968 |
1,296 |
2 Stories |
|