|
|
|
| Larry Stein Oklahoma County Assessor (405) 713-1200 - Public Access System |
|
|
|
|
|
|
| Real Property Display - Screen Produced 3/21/2026 8:03:55 PM | ||||
|---|---|---|---|---|
| Account: R191610830 | Type: Residential | Location: |
2216 N POST RD |
|
| Building Name/Occupant: |
|
NICOMA PARK |
||
| Owner Name 1: | DEARING JOSHUA PAUL |
Parcel PIN#: |
2320-19-161-0830 |
|
| Owner Name 2: | 1/4 section #: |
2320 |
||
| Owner Name 3: | Parent Acct: |
|
||
| Billing Address: | 6902 NE 23RD ST | Tax District: |
|
|
| City, State, Zip | NICOMA PARK, OK 73141 | School System: |
Oklahoma City #89 |
|
|
Country: (If noted) |
Land Size: |
2.1400 Acres |
||
|
Land Value: 44,255 |
|
|||
|
Sect 30-T12N-R1W Qtr NW |
FITCH SUB ADDITION
Block
000
Lot
000
|
|||
| Full Legal Description: FITCH SUB ADDITION 000 000 BEG 275FT E OF SW/C OF LOT 8 TH E110FT N70FT W110FT S70FT AND ALL E 1/2 OF LOTS 9 10 & 11 |
| No comparable sales report available. | ||||||||||||||||||||||
|
||||||||||||||||||||||
| Value History (*The County Treasurer 405-713-1300 posts & collects actual tax amounts. Contact information HERE) | |||||||||||||
|---|---|---|---|---|---|---|---|---|---|---|---|---|---|
| Year | Market Value | Taxable Mkt Value | Gross Assessed | Exemption | Net Assessed | Millage | Est. Tax | Tax Savings | |||||
|
2025 |
68,836 |
68,836 |
7,571 |
0 |
7,571 |
107.74 |
$816 |
$0 |
|||||
|
2024 |
68,845 |
68,845 |
7,572 |
0 |
7,572 |
108.96 |
$825 |
$0 |
|||||
|
2023 |
68,853 |
68,853 |
7,573 |
0 |
7,573 |
108.04 |
$818 |
$0 |
|||||
|
2022 |
68,862 |
33,049 |
3,635 |
0 |
3,635 |
102.17 |
$371 |
$402 |
|||||
|
2021 |
31,476 |
31,476 |
3,462 |
0 |
3,462 |
102.97 |
$357 |
$0 |
|||||
| Property Account Status/Adjustments/Exemptions | ||
|---|---|---|
| Account # | Exemption Description | Amount |
|
R191610830 |
5% Capped Account |
0 |
| Property Deed Transaction History (Recorded in the County Clerk's Office) | |||||||
|---|---|---|---|---|---|---|---|
| Date | Type | Book | Page | Price | Grantor | Grantee | |
|
8/18/2022 |
|
Deeds |
$75,000 |
GRAY DONALD C & SHEILA MAE |
DEARING JOSHUA PAUL |
||
|
2/1/1990 |
|
Historical |
$0 |
GRAY HAROLD P & BESSIE A |
GRAY DONALD C & SHEILA MAE |
||
|
8/21/1989 |
|
Historical |
$0 |
GRAY BESSIE A |
GRAY HAROLD P & BESSIE A |
||
|
3/1/1975 |
|
Historical |
$0 |
|
GRAY BESSIE A |
||
| Last Mailed Notice of Value (N.O.V.) Information/History | ||||||||
|---|---|---|---|---|---|---|---|---|
| Year | Date | Market Value | Taxable Market Value | Gross Assessed | Exemption | Net Assessed | ||
|
2023 |
01/23/2023 |
68,853 |
68,853 |
7,573 |
0 |
7,573 |
||
|
2022 |
02/22/2022 |
68,862 |
33,049 |
3,635 |
0 |
3,635 |
||
|
2020 |
02/21/2020 |
72,000 |
70,564 |
7,762 |
0 |
7,762 |
||
|
2019 |
02/26/2019 |
68,500 |
67,204 |
7,393 |
0 |
7,393 |
||
|
2018 |
04/09/2018 |
69,500 |
64,004 |
7,040 |
0 |
7,040 |
||
| Property Building Permit History | |||||||||||
|---|---|---|---|---|---|---|---|---|---|---|---|
| Issued | Permit # | Provided by | Bldg # | Description | Est Construction Cost | Status | |||||
| No Building Permit records returned. | |||||||||||
| Click button on building number to access detailed information: | ||||||
|---|---|---|---|---|---|---|
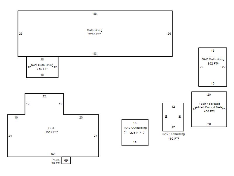
| Bldg # | Vacant/Improved Land | Bldg Description | Year Built | SqFt | # Stories | |
|
1 |
Improved |
Salvage |
1940 |
1,512 |
1 Stories |
|