|
|
|
| Larry Stein Oklahoma County Assessor (405) 713-1200 - Public Access System |
|
|
|
|
|
|
| Real Property Display - Screen Produced 3/14/2026 3:46:50 AM | ||||
|---|---|---|---|---|
| Account: R144061775 | Type: Residential | Location: |
13501 SE 35TH ST |
|
| Building Name/Occupant: |
|
OKLAHOMA CITY |
||
| Owner Name 1: | MAYNARD DALE & BARBARA |
Parcel PIN#: |
1260-14-406-1775 |
|
| Owner Name 2: | 1/4 section #: |
1260 |
||
| Owner Name 3: | Parent Acct: |
|
||
| Billing Address: | 13501 SE 35TH ST | Tax District: |
|
|
| City, State, Zip | CHOCTAW, OK 73020-6166 | School System: |
Choctaw #4 |
|
|
Country: (If noted) |
Land Size: |
5.0200 Acres |
||
|
Land Value: 53,518 |
|
|||
|
Sect 15-T11N-R1W Qtr NW |
UNPLTD PT SEC 15 11N 1W
Block
000
Lot
000
|
|||
| Full Legal Description: UNPLTD PT SEC 15 11N 1W 000 000 PT OF SEC 15 11N 1W BEG 685FT N & 2458.77FT E OF SW/C OF NW4 TH N635FT E344.36FT S635F W344.36FT TO BEG OF LOT 31 OF UNREC PLAT OF OAKWOOD VILLAGE |
| Photo & Sketch (if available) | Comp Sales (ordered by relevancy) |
|
||||||||||||||||||
|
||||||||||||||||||||
| Value History (*The County Treasurer 405-713-1300 posts & collects actual tax amounts. Contact information HERE) | |||||||||||||
|---|---|---|---|---|---|---|---|---|---|---|---|---|---|
| Year | Market Value | Taxable Mkt Value | Gross Assessed | Exemption | Net Assessed | Millage | Est. Tax | Tax Savings | |||||
| No PropertyValuation records returned. | |||||||||||||
| Property Account Status/Adjustments/Exemptions | ||
|---|---|---|
| Account # | Exemption Description | Amount |
|
R144061775 |
3% Cap Homestead |
0 |
|
R144061775 |
Homestead |
1,000 |
| Property Deed Transaction History (Recorded in the County Clerk's Office) | |||||||
|---|---|---|---|---|---|---|---|
| Date | Type | Book | Page | Price | Grantor | Grantee | |
|
6/1/1979 |
|
Historical |
$0 |
|
MAYNARD DALE & BARBARA |
||
| Last Mailed Notice of Value (N.O.V.) Information/History | ||||||||
|---|---|---|---|---|---|---|---|---|
| Year | Date | Market Value | Taxable Market Value | Gross Assessed | Exemption | Net Assessed | ||
| No Notice of Value N.O.V. records returned. | ||||||||
| Property Building Permit History | |||||||||||
|---|---|---|---|---|---|---|---|---|---|---|---|
| Issued | Permit # | Provided by | Bldg # | Description | Est Construction Cost | Status | |||||
| No Building Permit records returned. | |||||||||||
| Click button on building number to access detailed information: | ||||||
|---|---|---|---|---|---|---|
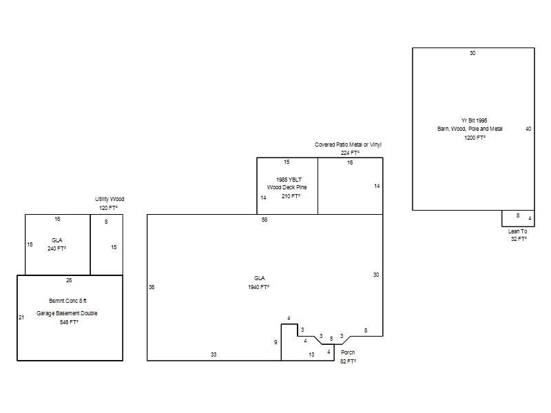
| Bldg # | Vacant/Improved Land | Bldg Description | Year Built | SqFt | # Stories | |
|
1 |
Improved |
Ranch 1 Story |
1982 |
2,180 |
1 Stories |
|