|
|
|
| Larry Stein Oklahoma County Assessor (405) 713-1200 - Public Access System |
|
|
|
|
|
|
| Real Property Display - Screen Produced 3/21/2026 1:56:14 PM | ||||
|---|---|---|---|---|
| Account: R197095810 | Type: Residential | Location: |
10417 NE 19TH ST |
|
| Building Name/Occupant: |
|
NICOMA PARK |
||
| Owner Name 1: | EATON BRANDON M |
Parcel PIN#: |
2320-19-709-5810 |
|
| Owner Name 2: | 1/4 section #: |
2320 |
||
| Owner Name 3: | Parent Acct: |
2320-19-709-5800 |
||
| Billing Address: | 10417 NE 19TH ST | Tax District: |
|
|
| City, State, Zip | OKLAHOMA CITY, OK 73141 | School System: |
Oklahoma City #89 |
|
|
Country: (If noted) |
Land Size: |
0.7600 Acres |
||
|
Land Value: 20,269 |
|
|||
|
Sect 30-T12N-R1W Qtr NW |
LEAVITTS EASTWOOD ADDITION
Block
000
Lot
000
|
|||
| Full Legal Description: LEAVITTS EASTWOOD ADDITION 000 000 S164.5FT OF LOTS 68 & 69 |
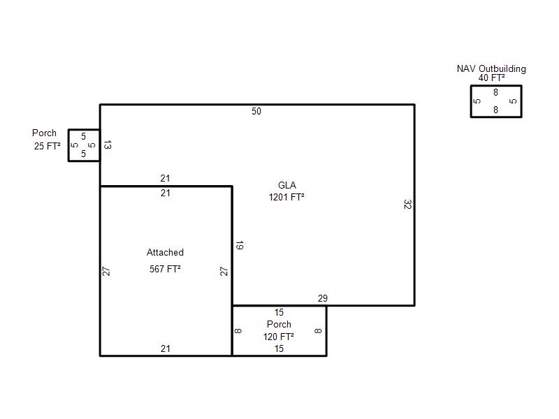
| Photo & Sketch (if available) | Comp Sales (ordered by relevancy) |
|
||||||||||||||||||
|
||||||||||||||||||||
| Value History (*The County Treasurer 405-713-1300 posts & collects actual tax amounts. Contact information HERE) | |||||||||||||
|---|---|---|---|---|---|---|---|---|---|---|---|---|---|
| Year | Market Value | Taxable Mkt Value | Gross Assessed | Exemption | Net Assessed | Millage | Est. Tax | Tax Savings | |||||
|
2025 |
140,000 |
123,085 |
13,539 |
1,000 |
12,539 |
107.74 |
$1,351 |
$308 |
|||||
|
2024 |
119,500 |
119,500 |
13,145 |
1,000 |
12,145 |
108.96 |
$1,323 |
$109 |
|||||
|
2023 |
127,500 |
127,500 |
14,025 |
1,000 |
13,025 |
108.04 |
$1,407 |
$108 |
|||||
|
2022 |
127,500 |
127,500 |
14,025 |
1,000 |
13,025 |
102.17 |
$1,331 |
$102 |
|||||
|
2021 |
69,000 |
69,000 |
7,590 |
1,000 |
6,590 |
102.97 |
$679 |
$103 |
|||||
| Property Account Status/Adjustments/Exemptions | ||
|---|---|---|
| Account # | Exemption Description | Amount |
|
R197095810 |
3% Cap Homestead |
0 |
|
R197095810 |
Homestead |
1,000 |
| Property Deed Transaction History (Recorded in the County Clerk's Office) | |||||||
|---|---|---|---|---|---|---|---|
| Date | Type | Book | Page | Price | Grantor | Grantee | |
|
12/3/2021 |
|
Deeds |
$130,000 |
SNEED CYNTHIA A |
EATON BRANDON M |
||
|
7/29/2016 |
|
Deeds |
$69,000 |
POPE LARRY D & PATTY |
SNEED CYNTHIA A |
||
|
9/4/2002 |
|
Hmstd Off & |
$0 |
POPE LESLEY A & DORIS MAE |
POPE LARRY D & PATTY |
||
| Last Mailed Notice of Value (N.O.V.) Information/History | ||||||||
|---|---|---|---|---|---|---|---|---|
| Year | Date | Market Value | Taxable Market Value | Gross Assessed | Exemption | Net Assessed | ||
|
2026 |
02/06/2026 |
141,500 |
126,777 |
13,945 |
1,000 |
12,945 |
||
|
2025 |
01/31/2025 |
140,000 |
123,085 |
13,539 |
1,000 |
12,539 |
||
|
2022 |
02/22/2022 |
127,500 |
127,500 |
14,025 |
0 |
14,025 |
||
|
2017 |
02/24/2017 |
69,000 |
69,000 |
|
|
|
||
|
2016 |
02/26/2016 |
81,500 |
46,997 |
5,169 |
0 |
5,169 |
||
| Property Building Permit History | |||||||||||
|---|---|---|---|---|---|---|---|---|---|---|---|
| Issued | Permit # | Provided by | Bldg # | Description | Est Construction Cost | Status | |||||
| No Building Permit records returned. | |||||||||||
| Click button on building number to access detailed information: | ||||||
|---|---|---|---|---|---|---|
| Bldg # | Vacant/Improved Land | Bldg Description | Year Built | SqFt | # Stories | |
|
1 |
Improved |
Ranch 1 Story |
1965 |
1,201 |
1 Stories |
|