|
|
|
| Larry Stein Oklahoma County Assessor (405) 713-1200 - Public Access System |
|
|
|
|
|
|
| Real Property Display - Screen Produced 3/18/2026 4:45:48 PM | ||||
|---|---|---|---|---|
| Account: R151151055 | Type: Residential | Location: |
10005 OAK PARK DR |
|
| Building Name/Occupant: |
|
MIDWEST CITY |
||
| Owner Name 1: | JACOBS NICHOLAS & COURTNEY |
Parcel PIN#: |
2323-15-115-1055 |
|
| Owner Name 2: | 1/4 section #: |
2323 |
||
| Owner Name 3: | Parent Acct: |
|
||
| Billing Address: | 10005 OAK PARK DR | Tax District: |
|
|
| City, State, Zip | MIDWEST CITY, OK 73130 | School System: |
Mid-Del #52 |
|
|
Country: (If noted) |
Land Size: |
0.7025 Acres |
||
|
Land Value: 30,600 |
|
|||
|
Sect 31-T12N-R1W Qtr SW |
POINTONS OAKDALE PRK
Block
001
Lot
000
|
|||
| Full Legal Description: POINTONS OAKDALE PRK 001 000 W90FT OF LOT 5 |
| No comparable sales report available. | ||||||||||||||||||||||
|
||||||||||||||||||||||
| Value History (*The County Treasurer 405-713-1300 posts & collects actual tax amounts. Contact information HERE) | |||||||||||||
|---|---|---|---|---|---|---|---|---|---|---|---|---|---|
| Year | Market Value | Taxable Mkt Value | Gross Assessed | Exemption | Net Assessed | Millage | Est. Tax | Tax Savings | |||||
|
2025 |
265,818 |
255,919 |
28,150 |
1,000 |
27,150 |
119.58 |
$3,247 |
$250 |
|||||
|
2024 |
248,466 |
248,466 |
27,331 |
1,000 |
26,331 |
122.51 |
$3,226 |
$123 |
|||||
|
2023 |
281,000 |
281,000 |
30,910 |
1,000 |
29,910 |
117.71 |
$3,521 |
$118 |
|||||
|
2022 |
281,000 |
281,000 |
30,910 |
1,000 |
29,910 |
116.64 |
$3,489 |
$117 |
|||||
|
2021 |
228,291 |
228,291 |
25,112 |
1,000 |
24,112 |
119.45 |
$2,880 |
$119 |
|||||
| Property Account Status/Adjustments/Exemptions | ||
|---|---|---|
| Account # | Exemption Description | Amount |
|
R151151055 |
3% Cap Homestead |
0 |
|
R151151055 |
Homestead |
1,000 |
| Property Deed Transaction History (Recorded in the County Clerk's Office) | |||||||
|---|---|---|---|---|---|---|---|
| Date | Type | Book | Page | Price | Grantor | Grantee | |
|
12/21/2021 |
|
Deeds |
$285,000 |
OAKLEY RICHARD LEE & CAROL MARIE TRS |
JACOBS NICHOLAS & COURTNEY |
||
|
4/1/2013 |
|
Deeds |
$0 |
OAKLEY RICHARD L & CAROL M |
OAKLEY RICHARD LEE & CAROL MARIE TRS |
||
|
3/1/1986 |
|
Historical |
$112,000 |
|
OAKLEY RICHARD L & CAROL M |
||
| Last Mailed Notice of Value (N.O.V.) Information/History | ||||||||
|---|---|---|---|---|---|---|---|---|
| Year | Date | Market Value | Taxable Market Value | Gross Assessed | Exemption | Net Assessed | ||
|
2026 |
02/06/2026 |
329,677 |
263,596 |
28,995 |
1,000 |
27,995 |
||
|
2025 |
01/31/2025 |
265,818 |
255,919 |
28,150 |
1,000 |
27,150 |
||
|
2022 |
02/22/2022 |
281,000 |
281,000 |
30,910 |
0 |
30,910 |
||
|
2020 |
02/21/2020 |
229,473 |
229,473 |
25,242 |
1,000 |
24,242 |
||
|
2019 |
02/26/2019 |
224,767 |
224,702 |
24,717 |
1,000 |
23,717 |
||
| Property Building Permit History | ||||||
|---|---|---|---|---|---|---|
| Issued | Permit # | Provided by | Bldg # | Description | Est Construction Cost | Status |
|
1/11/2011 |
10436956 |
MIDWEST CITY |
1 |
Main Dwellin |
13,000 |
Inactive |
| Click button on building number to access detailed information: | ||||||
|---|---|---|---|---|---|---|
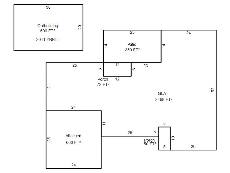
| Bldg # | Vacant/Improved Land | Bldg Description | Year Built | SqFt | # Stories | |
|
1 |
Improved |
Ranch 1 Story |
1975 |
2,468 |
1 Stories |
|
|
2 |
Improved |
Ranch 1 Story |
1980 |
480 |
1 Stories |
|