|
|
|
| Larry Stein Oklahoma County Assessor (405) 713-1200 - Public Access System |
|
|
|
|
|
|
| Real Property Display - Screen Produced 3/18/2026 4:46:00 PM | ||||
|---|---|---|---|---|
| Account: R151151105 | Type: Residential | Location: |
10109 OAK PARK DR |
|
| Building Name/Occupant: |
|
MIDWEST CITY |
||
| Owner Name 1: | REID AMBER S |
Parcel PIN#: |
2323-15-115-1105 |
|
| Owner Name 2: | 1/4 section #: |
2323 |
||
| Owner Name 3: | Parent Acct: |
|
||
| Billing Address: | 10109 OAK PARK DR | Tax District: |
|
|
| City, State, Zip | MIDWEST CITY, OK 73130-3603 | School System: |
Mid-Del #52 |
|
|
Country: (If noted) |
Land Size: |
0.7649 Acres |
||
|
Land Value: 33,320 |
|
|||
|
Sect 31-T12N-R1W Qtr SW |
POINTONS OAKDALE PRK
Block
001
Lot
011
|
|||
| Full Legal Description: POINTONS OAKDALE PRK 001 011 |
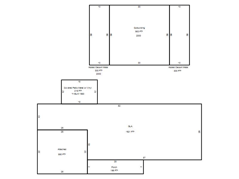
| Photo & Sketch (if available) | Comp Sales (ordered by relevancy) |
|
||||||||||||||||||
|
||||||||||||||||||||
| Value History (*The County Treasurer 405-713-1300 posts & collects actual tax amounts. Contact information HERE) | |||||||||||||
|---|---|---|---|---|---|---|---|---|---|---|---|---|---|
| Year | Market Value | Taxable Mkt Value | Gross Assessed | Exemption | Net Assessed | Millage | Est. Tax | Tax Savings | |||||
|
2025 |
255,000 |
198,233 |
21,805 |
1,000 |
20,805 |
119.58 |
$2,488 |
$866 |
|||||
|
2024 |
247,500 |
192,460 |
21,170 |
1,000 |
20,170 |
122.51 |
$2,471 |
$864 |
|||||
|
2023 |
235,000 |
186,855 |
20,553 |
1,000 |
19,553 |
117.71 |
$2,302 |
$741 |
|||||
|
2022 |
215,500 |
181,413 |
19,955 |
1,000 |
18,955 |
116.64 |
$2,211 |
$554 |
|||||
|
2021 |
190,000 |
176,130 |
19,374 |
1,000 |
18,374 |
119.45 |
$2,195 |
$302 |
|||||
| Property Account Status/Adjustments/Exemptions | ||
|---|---|---|
| Account # | Exemption Description | Amount |
|
R151151105 |
3% Cap Homestead |
0 |
|
R151151105 |
Homestead |
1,000 |
| Property Deed Transaction History (Recorded in the County Clerk's Office) | ||||||||||
|---|---|---|---|---|---|---|---|---|---|---|
| Date | Type | Book | Page | Price | Grantor | Grantee | ||||
|
6/30/2015 |
|
Deeds |
$177,000 |
CANNON ROBERT B JR |
REID AMBER S |
|||||
|
5/4/2012 |
|
Deeds |
$0 |
WICKER GARY SIMCO CHERYL |
SIMCO CHERYL |
|||||
|
5/4/2012 |
|
Deeds |
$158,000 |
SIMCO CHERYL |
CANNON ROBERT B JR |
|||||
|
3/20/2009 |
|
Deeds |
$0 |
WICKER GARY |
WICKER GARY SIMCO CHERYL |
|||||
|
10/26/2005 |
|
Deeds |
$0 |
WICKER GARY & BARBARA |
WICKER GARY |
|||||
| Last Mailed Notice of Value (N.O.V.) Information/History | ||||||||
|---|---|---|---|---|---|---|---|---|
| Year | Date | Market Value | Taxable Market Value | Gross Assessed | Exemption | Net Assessed | ||
|
2026 |
02/06/2026 |
248,500 |
204,179 |
22,459 |
1,000 |
21,459 |
||
|
2025 |
01/31/2025 |
255,000 |
198,233 |
21,805 |
1,000 |
20,805 |
||
|
2024 |
01/22/2024 |
247,500 |
192,460 |
21,170 |
1,000 |
20,170 |
||
|
2023 |
01/23/2023 |
235,000 |
186,855 |
20,553 |
1,000 |
19,553 |
||
|
2022 |
02/22/2022 |
215,500 |
181,413 |
19,955 |
1,000 |
18,955 |
||
| Property Building Permit History | ||||||
|---|---|---|---|---|---|---|
| Issued | Permit # | Provided by | Bldg # | Description | Est Construction Cost | Status |
|
3/13/2000 |
10247767 |
MIDWEST CITY |
1 |
Other |
8,000 |
Inactive |
| Click button on building number to access detailed information: | ||||||
|---|---|---|---|---|---|---|
| Bldg # | Vacant/Improved Land | Bldg Description | Year Built | SqFt | # Stories | |
|
1 |
Improved |
Ranch 1 Story |
1961 |
1,921 |
1 Stories |
|