|
|
|
| Larry Stein Oklahoma County Assessor (405) 713-1200 - Public Access System |
|
|
|
|
|
|
| Real Property Display - Screen Produced 3/24/2026 5:10:36 AM | ||||
|---|---|---|---|---|
| Account: R154954350 | Type: Residential | Location: |
805 N POPLAR LN |
|
| Building Name/Occupant: |
|
MIDWEST CITY |
||
| Owner Name 1: | REIMLER EDWARD & LETA CO TRS |
Parcel PIN#: |
2324-15-495-4350 |
|
| Owner Name 2: | REIMLER EDWARD & LETA TRUST | 1/4 section #: |
2324 |
|
| Owner Name 3: | Parent Acct: |
|
||
| Billing Address: | PO BOX 310 | Tax District: |
|
|
| City, State, Zip | NICOMA PARK, OK 73066 | School System: |
Choctaw #4 |
|
|
Country: (If noted) |
Land Size: |
2.1600 Acres |
||
|
Land Value: 44,787 |
|
|||
|
Sect 31-T12N-R1W Qtr NW |
HARPER ADDITION
Block
003
Lot
008
|
|||
| Full Legal Description: HARPER ADDITION 003 008 |
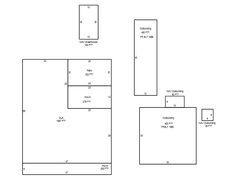
| Photo & Sketch (if available) | Comp Sales (ordered by relevancy) |
|
||||||||||||||||||
|
||||||||||||||||||||
| Value History (*The County Treasurer 405-713-1300 posts & collects actual tax amounts. Contact information HERE) | |||||||||||||
|---|---|---|---|---|---|---|---|---|---|---|---|---|---|
| Year | Market Value | Taxable Mkt Value | Gross Assessed | Exemption | Net Assessed | Millage | Est. Tax | Tax Savings | |||||
|
2025 |
401,000 |
267,019 |
29,371 |
1,000 |
28,371 |
127.03 |
$3,604 |
$1,999 |
|||||
|
2024 |
386,000 |
259,242 |
28,516 |
1,000 |
27,516 |
127.00 |
$3,495 |
$1,898 |
|||||
|
2023 |
353,500 |
251,692 |
27,685 |
1,000 |
26,685 |
128.50 |
$3,429 |
$1,568 |
|||||
|
2022 |
321,000 |
244,362 |
26,878 |
1,000 |
25,878 |
127.22 |
$3,292 |
$1,200 |
|||||
|
2021 |
267,000 |
237,245 |
26,096 |
1,000 |
25,096 |
126.69 |
$3,180 |
$541 |
|||||
| Property Account Status/Adjustments/Exemptions | ||
|---|---|---|
| Account # | Exemption Description | Amount |
|
R154954350 |
3% Cap Homestead |
0 |
|
R154954350 |
Homestead |
1,000 |
| Property Deed Transaction History (Recorded in the County Clerk's Office) | |||||||
|---|---|---|---|---|---|---|---|
| Date | Type | Book | Page | Price | Grantor | Grantee | |
|
5/23/2006 |
|
Deeds |
$0 |
REIMLER EDWARD G & LETA I |
REIMLER EDWARD & LETA CO TRS |
||
|
4/23/1999 |
|
Deeds |
$0 |
REIMLER EDWARD G |
REIMLER EDWARD G & LETA I |
||
|
1/21/1992 |
|
Historical |
$26,500 |
ROMAN THOMAS C |
REIMLER EDWARD G |
||
|
3/13/1987 |
|
Historical |
$0 |
ROMAN JOHN S & THOMAS C |
ROMAN THOMAS C |
||
|
4/1/1977 |
|
Historical |
$0 |
|
ROMAN JOHN S & THOMAS C |
||
| Last Mailed Notice of Value (N.O.V.) Information/History | ||||||||
|---|---|---|---|---|---|---|---|---|
| Year | Date | Market Value | Taxable Market Value | Gross Assessed | Exemption | Net Assessed | ||
|
2026 |
02/06/2026 |
397,000 |
275,029 |
30,253 |
1,000 |
29,253 |
||
|
2025 |
01/31/2025 |
401,000 |
267,019 |
29,371 |
1,000 |
28,371 |
||
|
2024 |
01/22/2024 |
386,000 |
259,242 |
28,516 |
1,000 |
27,516 |
||
|
2023 |
01/23/2023 |
353,500 |
251,692 |
27,685 |
1,000 |
26,685 |
||
|
2022 |
02/22/2022 |
321,000 |
244,362 |
26,878 |
1,000 |
25,878 |
||
| Property Building Permit History | ||||||
|---|---|---|---|---|---|---|
| Issued | Permit # | Provided by | Bldg # | Description | Est Construction Cost | Status |
|
8/27/2020 |
20-00000317 |
|
1 |
Main Dwellin |
267,000 |
Inactive |
|
6/18/2020 |
20-00000705 |
|
1 |
Demolish |
|
Inactive |
|
11/11/1997 |
10251339 |
MIDWEST CITY |
1 |
Carport |
2,000 |
Inactive |
|
11/15/1994 |
10251338 |
MIDWEST CITY |
1 |
Add On |
10,000 |
Inactive |
|
3/23/1992 |
10251337 |
MIDWEST CITY |
1 |
Garage |
6,910 |
Inactive |
| Click button on building number to access detailed information: | ||||||
|---|---|---|---|---|---|---|
| Bldg # | Vacant/Improved Land | Bldg Description | Year Built | SqFt | # Stories | |
|
1 |
Improved |
Ranch 1 Story |
2020 |
1,987 |
1 Stories |
|