|
|
|
| Larry Stein Oklahoma County Assessor (405) 713-1200 - Public Access System |
|
|
|
|
|
|
| Real Property Display - Screen Produced 3/18/2026 6:21:19 PM | ||||
|---|---|---|---|---|
| Account: R194890823 | Type: Residential | Location: |
12750 TWIN PINES LN |
|
| Building Name/Occupant: |
|
CHOCTAW |
||
| Owner Name 1: | THRESHER TRACIE M & TOMMY D |
Parcel PIN#: |
2329-19-489-0823 |
|
| Owner Name 2: | 1/4 section #: |
2329 |
||
| Owner Name 3: | Parent Acct: |
|
||
| Billing Address: | 12750 TWIN PINES LN | Tax District: |
|
|
| City, State, Zip | CHOCTAW, OK 73020-7601 | School System: |
Choctaw #4 |
|
|
Country: (If noted) |
Land Size: |
1.0060 Acres |
||
|
Land Value: 57,010 |
|
|||
|
Sect 33-T12N-R1W Qtr NE |
UNPLTD PT SEC 33 12N 1W
Block
000
Lot
000
|
|||
| Full Legal Description: UNPLTD PT SEC 33 12N 1W 000 000 PT NE4 SEC 33 12N 1W BEG 660.15FT N & 1168.85FT W OF SE/C NE4 TH N 281.99FT NELY ALONG A CURVE 32.16FT E121.01FT S300.01FT W146.97FT TO BEG CONT 1.006ACRS MORE OR LESS AKA TR 2 |
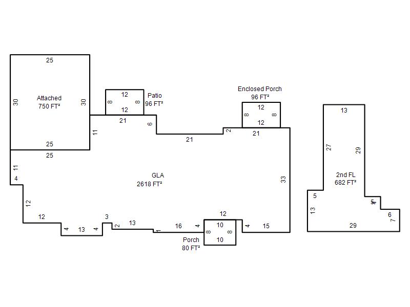
| Photo & Sketch (if available) | Comp Sales (ordered by relevancy) |
|
||||||||||||||||||
|
||||||||||||||||||||
| Value History (*The County Treasurer 405-713-1300 posts & collects actual tax amounts. Contact information HERE) | |||||||||||||
|---|---|---|---|---|---|---|---|---|---|---|---|---|---|
| Year | Market Value | Taxable Mkt Value | Gross Assessed | Exemption | Net Assessed | Millage | Est. Tax | Tax Savings | |||||
|
2025 |
499,000 |
413,160 |
45,447 |
0 |
45,447 |
117.21 |
$5,327 |
$1,107 |
|||||
|
2024 |
400,000 |
393,486 |
43,283 |
0 |
43,283 |
116.35 |
$5,036 |
$83 |
|||||
|
2023 |
409,500 |
374,749 |
41,221 |
0 |
41,221 |
118.06 |
$4,867 |
$451 |
|||||
|
2022 |
399,500 |
356,904 |
39,258 |
0 |
39,258 |
116.14 |
$4,560 |
$544 |
|||||
|
2021 |
342,000 |
339,909 |
37,389 |
0 |
37,389 |
116.17 |
$4,344 |
$27 |
|||||
| Property Account Status/Adjustments/Exemptions | ||
|---|---|---|
| Account # | Exemption Description | Amount |
|
R194890823 |
5% Capped Account |
0 |
| Property Deed Transaction History (Recorded in the County Clerk's Office) | |||||||
|---|---|---|---|---|---|---|---|
| Date | Type | Book | Page | Price | Grantor | Grantee | |
|
12/3/2020 |
|
Deeds |
$0 |
THRESHER TRACIE M |
THRESHER TRACIE M & TOMMY D |
||
|
12/21/2010 |
|
Deeds |
$300,000 |
EDWARDS FRANCIS G & DEBORAH K |
THRESHER TRACIE M |
||
|
6/16/1995 |
|
Historical |
$30,000 |
KELLY GARY R |
EDWARDS FRANCIS G & DEBORAH K |
||
|
2/22/1994 |
|
Historical |
$0 |
|
KELLY GARY R |
||
| Last Mailed Notice of Value (N.O.V.) Information/History | ||||||||
|---|---|---|---|---|---|---|---|---|
| Year | Date | Market Value | Taxable Market Value | Gross Assessed | Exemption | Net Assessed | ||
|
2026 |
02/06/2026 |
461,000 |
433,818 |
47,719 |
0 |
47,719 |
||
|
2025 |
01/31/2025 |
499,000 |
413,160 |
45,447 |
0 |
45,447 |
||
|
2024 |
01/22/2024 |
400,000 |
393,486 |
43,283 |
0 |
43,283 |
||
|
2023 |
01/23/2023 |
409,500 |
374,749 |
41,221 |
0 |
41,221 |
||
|
2022 |
02/22/2022 |
399,500 |
356,904 |
39,258 |
0 |
39,258 |
||
| Property Building Permit History | ||||||
|---|---|---|---|---|---|---|
| Issued | Permit # | Provided by | Bldg # | Description | Est Construction Cost | Status |
|
6/28/1996 |
10262966 |
CHOCTAW |
1 |
Main Dwellin |
140,000 |
Inactive |
| Click button on building number to access detailed information: | ||||||
|---|---|---|---|---|---|---|
| Bldg # | Vacant/Improved Land | Bldg Description | Year Built | SqFt | # Stories | |
|
1 |
Improved |
1½ Story Fin |
1997 |
3,300 |
1.5 Stories |
|