|
|
|
| Larry Stein Oklahoma County Assessor (405) 713-1200 - Public Access System |
|
|
|
|
|
|
| Real Property Display - Screen Produced 3/18/2026 6:16:33 PM | ||||
|---|---|---|---|---|
| Account: R194896800 | Type: Residential | Location: |
471 N HIWASSEE RD |
|
| Building Name/Occupant: |
|
CHOCTAW |
||
| Owner Name 1: | FLORENCE LYLE |
Parcel PIN#: |
2330-19-489-6800 |
|
| Owner Name 2: | FLORENCE KELI | 1/4 section #: |
2330 |
|
| Owner Name 3: | Parent Acct: |
|
||
| Billing Address: | 471 N HIWASSEE RD | Tax District: |
|
|
| City, State, Zip | CHOCTAW, OK 73020-7649 | School System: |
Choctaw #4 |
|
|
Country: (If noted) |
Land Size: |
2.5000 Acres |
||
|
Land Value: 24,665 |
|
|||
|
Sect 33-T12N-R1W Qtr SE |
UNPLTD PT SEC 33 12N 1W
Block
000
Lot
000
|
|||
| Full Legal Description: UNPLTD PT SE4 SEC 33 12N 1W BEG NE/C SE4 TH S332.35FT W327.71FT N331.74FT E327.75FT TO BEG CONT 2.50 AC MORE OR LESS |
| No comparable sales report available. | ||||||||||||||||||||||
|
||||||||||||||||||||||
| Value History (*The County Treasurer 405-713-1300 posts & collects actual tax amounts. Contact information HERE) | |||||||||||||
|---|---|---|---|---|---|---|---|---|---|---|---|---|---|
| Year | Market Value | Taxable Mkt Value | Gross Assessed | Exemption | Net Assessed | Millage | Est. Tax | Tax Savings | |||||
|
2025 |
51,222 |
51,222 |
5,634 |
0 |
5,634 |
117.21 |
$660 |
$0 |
|||||
|
2024 |
51,236 |
51,236 |
5,635 |
0 |
5,635 |
116.35 |
$656 |
$0 |
|||||
|
2023 |
51,250 |
51,250 |
5,637 |
0 |
5,637 |
118.06 |
$666 |
$0 |
|||||
|
2022 |
50,664 |
50,664 |
5,573 |
0 |
5,573 |
116.14 |
$647 |
$0 |
|||||
|
2021 |
59,852 |
59,852 |
6,583 |
0 |
6,583 |
116.17 |
$765 |
$0 |
|||||
| Property Account Status/Adjustments/Exemptions | ||||||
|---|---|---|---|---|---|---|
| Account # | Exemption Description | Amount | ||||
| No adjustment/exemption records returned. | ||||||
| Property Deed Transaction History (Recorded in the County Clerk's Office) | ||||||||||
|---|---|---|---|---|---|---|---|---|---|---|
| Date | Type | Book | Page | Price | Grantor | Grantee | ||||
|
11/13/2025 |
|
Deeds |
$300,000 |
BLACKBURN KELLY |
FLORENCE LYLE |
|||||
|
5/17/2022 |
|
Deeds |
$0 |
BLACKBURN KELLY |
BLACKBURN EVAN W |
|||||
|
12/8/2021 |
|
Deeds |
$0 |
BLACKBURN KELLY |
BLACKBURN KELLY |
|||||
|
2/19/1997 |
|
Historical |
$0 |
BLACKBURN CARL F & KELLY |
BLACKBURN KELLY |
|||||
|
11/1/1986 |
|
Historical |
$0 |
SISEMORE JOE D & DOROTHY J |
BLACKBURN CARL F & KELLY |
|||||
| Last Mailed Notice of Value (N.O.V.) Information/History | ||||||||
|---|---|---|---|---|---|---|---|---|
| Year | Date | Market Value | Taxable Market Value | Gross Assessed | Exemption | Net Assessed | ||
|
2026 |
02/06/2026 |
51,465 |
51,465 |
5,661 |
0 |
5,661 |
||
|
2023 |
01/23/2023 |
51,250 |
51,250 |
5,637 |
0 |
5,637 |
||
|
2019 |
02/26/2019 |
61,370 |
61,370 |
6,750 |
0 |
6,750 |
||
|
2013 |
03/27/2013 |
70,977 |
69,518 |
7,645 |
0 |
7,645 |
||
|
2012 |
04/06/2012 |
72,032 |
66,209 |
7,281 |
0 |
7,281 |
||
| Property Building Permit History | |||||||||||
|---|---|---|---|---|---|---|---|---|---|---|---|
| Issued | Permit # | Provided by | Bldg # | Description | Est Construction Cost | Status | |||||
| No Building Permit records returned. | |||||||||||
| Click button on building number to access detailed information: | ||||||
|---|---|---|---|---|---|---|
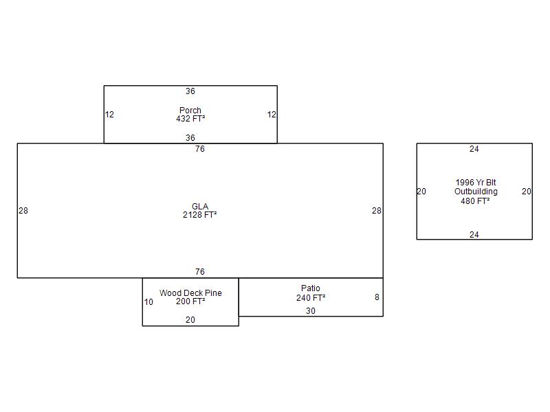
| Bldg # | Vacant/Improved Land | Bldg Description | Year Built | SqFt | # Stories | |
|
1 |
Improved |
Double Wide |
1996 |
2,128 |
1 Stories |
|