|
|
|
| Larry Stein Oklahoma County Assessor (405) 713-1200 - Public Access System |
|
|
|
|
|
|
| Real Property Display - Screen Produced 3/18/2026 11:02:22 PM | ||||
|---|---|---|---|---|
| Account: R197881490 | Type: Residential | Location: |
13808 NE 9TH ST |
|
| Building Name/Occupant: |
|
CHOCTAW |
||
| Owner Name 1: | HIGHTOWER TERRY JOHN & MEGAN VAUGHN |
Parcel PIN#: |
2333-19-788-1490 |
|
| Owner Name 2: | 1/4 section #: |
2333 |
||
| Owner Name 3: | Parent Acct: |
|
||
| Billing Address: | 13808 NE 9TH ST | Tax District: |
|
|
| City, State, Zip | CHOCTAW, OK 73020-7627 | School System: |
Choctaw #4 |
|
|
Country: (If noted) |
Land Size: |
1.0331 Acres |
||
|
Land Value: 72,003 |
|
|||
|
Sect 34-T12N-R1W Qtr NE |
GILLESPIE ESTATES
Block
003
Lot
000
|
|||
| Full Legal Description: GILLESPIE ESTATES 003 000 LOTS 4 & 5 |
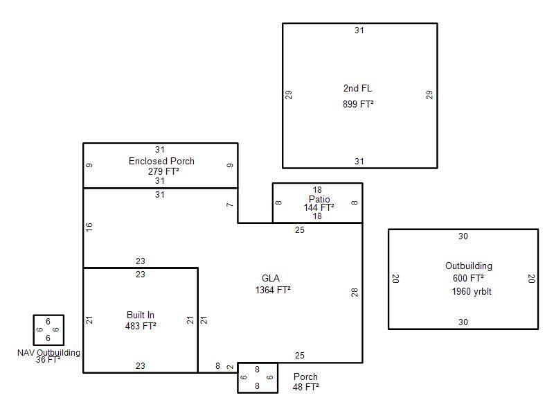
| Photo & Sketch (if available) | Comp Sales (ordered by relevancy) |
|
||||||||||||||||||
|
||||||||||||||||||||
| Value History (*The County Treasurer 405-713-1300 posts & collects actual tax amounts. Contact information HERE) | |||||||||||||
|---|---|---|---|---|---|---|---|---|---|---|---|---|---|
| Year | Market Value | Taxable Mkt Value | Gross Assessed | Exemption | Net Assessed | Millage | Est. Tax | Tax Savings | |||||
|
2025 |
291,000 |
241,215 |
26,533 |
0 |
26,533 |
117.21 |
$3,110 |
$642 |
|||||
|
2024 |
282,000 |
229,729 |
25,269 |
0 |
25,269 |
116.35 |
$2,940 |
$669 |
|||||
|
2023 |
258,500 |
218,790 |
24,066 |
0 |
24,066 |
118.06 |
$2,841 |
$516 |
|||||
|
2022 |
244,000 |
208,372 |
22,920 |
0 |
22,920 |
116.14 |
$2,662 |
$455 |
|||||
|
2021 |
211,000 |
198,450 |
21,829 |
0 |
21,829 |
116.17 |
$2,536 |
$160 |
|||||
| Property Account Status/Adjustments/Exemptions | ||
|---|---|---|
| Account # | Exemption Description | Amount |
|
R197881490 |
5% Capped Account |
0 |
| Property Deed Transaction History (Recorded in the County Clerk's Office) | |||||||
|---|---|---|---|---|---|---|---|
| Date | Type | Book | Page | Price | Grantor | Grantee | |
|
6/8/2012 |
|
Deeds |
$158,000 |
SILVY SANDRA K |
HIGHTOWER TERRY JOHN & MEGAN VAUGHN |
||
|
5/28/2010 |
|
Deeds |
$183,000 |
FOOTE CLIFTON T & MERRIE S |
SILVY SANDRA K |
||
|
7/27/2001 |
|
Mult Parcel |
$140,000 |
DICKEY JOHNNIE M & G CLAUDINE |
FOOTE CLIFTON T & MERRIE S |
||
|
5/1/1972 |
|
Historical |
$0 |
|
DICKEY JOHNNIE M & G C |
||
| Last Mailed Notice of Value (N.O.V.) Information/History | ||||||||
|---|---|---|---|---|---|---|---|---|
| Year | Date | Market Value | Taxable Market Value | Gross Assessed | Exemption | Net Assessed | ||
|
2026 |
02/06/2026 |
287,000 |
253,275 |
27,859 |
0 |
27,859 |
||
|
2025 |
01/31/2025 |
291,000 |
241,215 |
26,533 |
0 |
26,533 |
||
|
2024 |
01/22/2024 |
282,000 |
229,729 |
25,269 |
0 |
25,269 |
||
|
2023 |
01/23/2023 |
258,500 |
218,790 |
24,066 |
0 |
24,066 |
||
|
2022 |
02/22/2022 |
244,000 |
208,372 |
22,920 |
0 |
22,920 |
||
| Property Building Permit History | |||||||||||
|---|---|---|---|---|---|---|---|---|---|---|---|
| Issued | Permit # | Provided by | Bldg # | Description | Est Construction Cost | Status | |||||
| No Building Permit records returned. | |||||||||||
| Click button on building number to access detailed information: | ||||||
|---|---|---|---|---|---|---|
| Bldg # | Vacant/Improved Land | Bldg Description | Year Built | SqFt | # Stories | |
|
1 |
Improved |
2 Story |
1973 |
2,263 |
2 Stories |
|