|
|
|
| Larry Stein Oklahoma County Assessor (405) 713-1200 - Public Access System |
|
|
|
|
|
|
| Real Property Display - Screen Produced 3/18/2026 10:57:29 PM | ||||
|---|---|---|---|---|
| Account: R197881960 | Type: Residential | Location: |
13702 NE 8TH ST |
|
| Building Name/Occupant: |
|
CHOCTAW |
||
| Owner Name 1: | JOHNSON TERRY ALYNE |
Parcel PIN#: |
2333-19-788-1960 |
|
| Owner Name 2: | 1/4 section #: |
2333 |
||
| Owner Name 3: | Parent Acct: |
|
||
| Billing Address: | 13702 NE 8TH ST | Tax District: |
|
|
| City, State, Zip | CHOCTAW, OK 73020-7600 | School System: |
Choctaw #4 |
|
|
Country: (If noted) |
Land Size: |
0.9963 Acres |
||
|
Land Value: 59,360 |
|
|||
|
Sect 34-T12N-R1W Qtr NE |
GILLESPIE ESTATES
Block
005
Lot
000
|
|||
| Full Legal Description: GILLESPIE ESTATES 005 000 LOTS 8 & 9 |
| No comparable sales report available. | ||||||||||||||||||||||
|
||||||||||||||||||||||
| Value History (*The County Treasurer 405-713-1300 posts & collects actual tax amounts. Contact information HERE) | |||||||||||||
|---|---|---|---|---|---|---|---|---|---|---|---|---|---|
| Year | Market Value | Taxable Mkt Value | Gross Assessed | Exemption | Net Assessed | Millage | Est. Tax | Tax Savings | |||||
|
2025 |
249,696 |
224,382 |
24,681 |
0 |
24,681 |
117.21 |
$2,893 |
$326 |
|||||
|
2024 |
222,644 |
213,698 |
23,506 |
0 |
23,506 |
116.35 |
$2,735 |
$114 |
|||||
|
2023 |
203,522 |
203,522 |
22,387 |
0 |
22,387 |
118.06 |
$2,643 |
$0 |
|||||
|
2022 |
200,244 |
200,244 |
22,026 |
0 |
22,026 |
116.14 |
$2,558 |
$0 |
|||||
|
2021 |
194,338 |
194,338 |
21,377 |
0 |
21,377 |
116.17 |
$2,483 |
$0 |
|||||
| Property Account Status/Adjustments/Exemptions | ||
|---|---|---|
| Account # | Exemption Description | Amount |
|
R197881960 |
5% Capped Account |
0 |
| Property Deed Transaction History (Recorded in the County Clerk's Office) | |||||||
|---|---|---|---|---|---|---|---|
| Date | Type | Book | Page | Price | Grantor | Grantee | |
|
1/4/2002 |
|
Hmstd Off & |
$0 |
STRUBE DONALD W & ALYNE F |
JOHNSON TERRY ALYNE |
||
|
8/11/1998 |
|
Historical |
$110,000 |
CASS ROBERT A |
STRUBE DONALD W & ALYNE F |
||
|
2/4/1997 |
|
Historical |
$0 |
CASS STEFANIE E & ROBERT A |
CASS ROBERT A |
||
|
10/9/1992 |
|
Historical |
$90,000 |
PERKINS JAMES M & PAULA K |
CASS STEFANIE E & ROBERT A |
||
|
7/1/1978 |
|
Historical |
$0 |
|
PERKINS JAMES M & PAULA K |
||
| Last Mailed Notice of Value (N.O.V.) Information/History | ||||||||
|---|---|---|---|---|---|---|---|---|
| Year | Date | Market Value | Taxable Market Value | Gross Assessed | Exemption | Net Assessed | ||
|
2026 |
02/06/2026 |
301,350 |
235,601 |
25,916 |
0 |
25,916 |
||
|
2025 |
01/31/2025 |
249,696 |
224,382 |
24,681 |
0 |
24,681 |
||
|
2024 |
01/22/2024 |
222,644 |
213,698 |
23,506 |
0 |
23,506 |
||
|
2023 |
01/23/2023 |
203,522 |
203,522 |
22,387 |
0 |
22,387 |
||
|
2022 |
02/22/2022 |
200,244 |
200,244 |
22,026 |
0 |
22,026 |
||
| Property Building Permit History | ||||||
|---|---|---|---|---|---|---|
| Issued | Permit # | Provided by | Bldg # | Description | Est Construction Cost | Status |
|
6/12/2000 |
10263658 |
CHOCTAW |
1 |
Storage Buil |
3,500 |
Inactive |
| Click button on building number to access detailed information: | ||||||
|---|---|---|---|---|---|---|
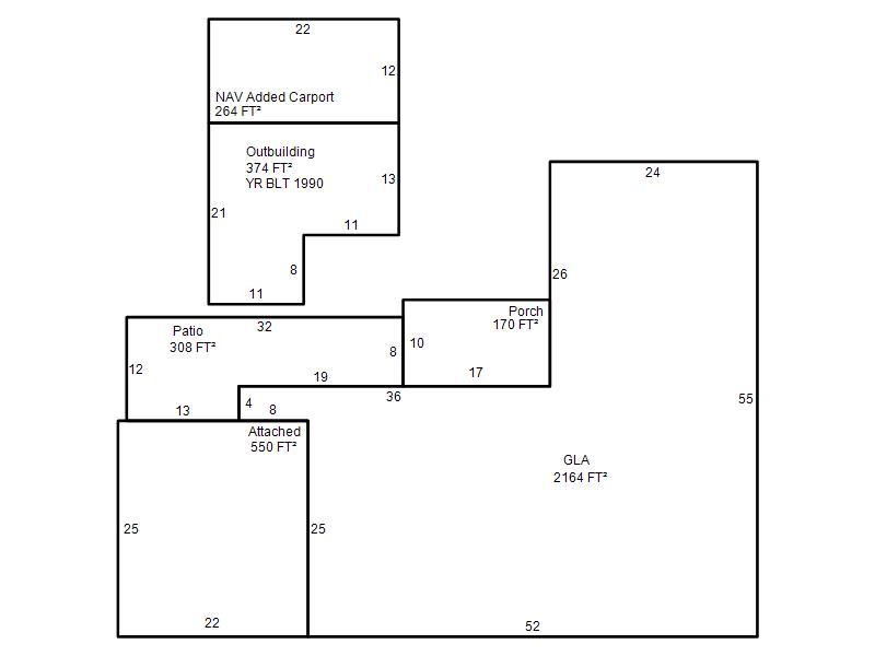
| Bldg # | Vacant/Improved Land | Bldg Description | Year Built | SqFt | # Stories | |
|
1 |
Improved |
Ranch 1 Story |
1971 |
2,164 |
1 Stories |
|
|
2 |
Improved |
Ranch 1 Story |
1978 |
357 |
1 Stories |
|