|
|
|
| Larry Stein Oklahoma County Assessor (405) 713-1200 - Public Access System |
|
|
|
|
|
|
| Real Property Display - Screen Produced 3/21/2026 5:53:56 AM | ||||
|---|---|---|---|---|
| Account: R198001600 | Type: Residential | Location: |
550 OAK PARK DR |
|
| Building Name/Occupant: |
|
CHOCTAW |
||
| Owner Name 1: | CALLAN TERESA J |
Parcel PIN#: |
2340-19-800-1600 |
|
| Owner Name 2: | 1/4 section #: |
2340 |
||
| Owner Name 3: | Parent Acct: |
|
||
| Billing Address: | 550 OAK PARK DR | Tax District: |
|
|
| City, State, Zip | CHOCTAW, OK 73020-7555 | School System: |
Choctaw #4 |
|
|
Country: (If noted) |
Land Size: |
0.4167 Acres |
||
|
Land Value: 29,040 |
|
|||
|
Sect 35-T12N-R1W Qtr NW |
SEIKELS OAK PARK SEC 3 REPLAT
Block
010
Lot
013
|
|||
| Full Legal Description: SEIKELS OAK PARK SEC 3 REPLAT 010 013 |
| Photo & Sketch (if available) | Comp Sales (ordered by relevancy) |
|
||||||||||||||||||
|
||||||||||||||||||||
| Value History (*The County Treasurer 405-713-1300 posts & collects actual tax amounts. Contact information HERE) | |||||||||||||
|---|---|---|---|---|---|---|---|---|---|---|---|---|---|
| Year | Market Value | Taxable Mkt Value | Gross Assessed | Exemption | Net Assessed | Millage | Est. Tax | Tax Savings | |||||
|
2025 |
160,500 |
72,547 |
7,980 |
1,000 |
6,980 |
117.21 |
$818 |
$1,251 |
|||||
|
2024 |
141,000 |
72,547 |
7,980 |
1,000 |
6,980 |
116.35 |
$812 |
$992 |
|||||
|
2023 |
137,500 |
72,547 |
7,980 |
1,000 |
6,980 |
118.06 |
$824 |
$962 |
|||||
|
2022 |
127,500 |
72,547 |
7,980 |
1,000 |
6,980 |
116.14 |
$811 |
$818 |
|||||
|
2021 |
111,500 |
72,547 |
7,980 |
1,000 |
6,980 |
116.17 |
$811 |
$614 |
|||||
| Property Account Status/Adjustments/Exemptions | ||
|---|---|---|
| Account # | Exemption Description | Amount |
|
R198001600 |
Freeze Senior Valuation |
0 |
|
R198001600 |
3% Cap Homestead |
0 |
|
R198001600 |
Homestead |
1,000 |
| Property Deed Transaction History (Recorded in the County Clerk's Office) | |||||||
|---|---|---|---|---|---|---|---|
| Date | Type | Book | Page | Price | Grantor | Grantee | |
|
8/12/1987 |
|
Historical |
$45,000 |
RAMSEY DUANE B & SUSAN K |
CALLAN TERESA J |
||
|
8/1/1978 |
|
Historical |
$0 |
|
RAMSEY DUANE B & SUSAN K |
||
| Last Mailed Notice of Value (N.O.V.) Information/History | ||||||||
|---|---|---|---|---|---|---|---|---|
| Year | Date | Market Value | Taxable Market Value | Gross Assessed | Exemption | Net Assessed | ||
|
2025 |
01/31/2025 |
160,500 |
72,547 |
7,980 |
1,000 |
6,980 |
||
|
2024 |
01/22/2024 |
141,000 |
72,547 |
7,980 |
1,000 |
6,980 |
||
|
2023 |
01/23/2023 |
137,500 |
72,547 |
7,980 |
1,000 |
6,980 |
||
|
2022 |
02/22/2022 |
127,500 |
72,547 |
7,980 |
1,000 |
6,980 |
||
|
2021 |
02/24/2021 |
111,500 |
72,547 |
7,980 |
1,000 |
6,980 |
||
| Property Building Permit History | ||||||
|---|---|---|---|---|---|---|
| Issued | Permit # | Provided by | Bldg # | Description | Est Construction Cost | Status |
|
4/10/2009 |
10377385 |
CHOCTAW |
1 |
Fire Remodel |
0 |
Inactive |
| Click button on building number to access detailed information: | ||||||
|---|---|---|---|---|---|---|
| Bldg # | Vacant/Improved Land | Bldg Description | Year Built | SqFt | # Stories | |
|
1 |
Improved |
Ranch 1 Story |
1979 |
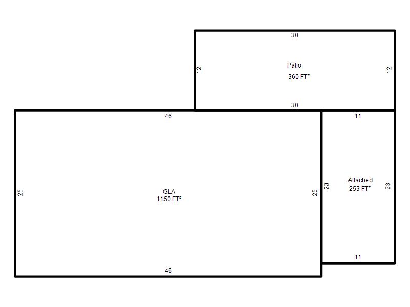
1,150 |
1 Stories |
|