|
|
|
| Larry Stein Oklahoma County Assessor (405) 713-1200 - Public Access System |
|
|
|
|
|
|
| Real Property Display - Screen Produced 3/21/2026 5:53:57 AM | ||||
|---|---|---|---|---|
| Account: R198003900 | Type: Residential | Location: |
531 OAK PARK DR |
|
| Building Name/Occupant: |
|
CHOCTAW |
||
| Owner Name 1: | SWEARINGEN IRA & DORIS A |
Parcel PIN#: |
2340-19-800-3900 |
|
| Owner Name 2: | 1/4 section #: |
2340 |
||
| Owner Name 3: | Parent Acct: |
|
||
| Billing Address: | 531 OAK PARK DR | Tax District: |
|
|
| City, State, Zip | CHOCTAW, OK 73020-7555 | School System: |
Choctaw #4 |
|
|
Country: (If noted) |
Land Size: |
0.3455 Acres |
||
|
Land Value: 26,921 |
|
|||
|
Sect 35-T12N-R1W Qtr NW |
SEIKELS OAK PARK SEC 3 REPLAT
Block
012
Lot
005
|
|||
| Full Legal Description: SEIKELS OAK PARK SEC 3 REPLAT 012 005 |
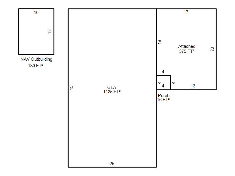
| Photo & Sketch (if available) | Comp Sales (ordered by relevancy) |
|
||||||||||||||||||
|
||||||||||||||||||||
| Value History (*The County Treasurer 405-713-1300 posts & collects actual tax amounts. Contact information HERE) | |||||||||||||
|---|---|---|---|---|---|---|---|---|---|---|---|---|---|
| Year | Market Value | Taxable Mkt Value | Gross Assessed | Exemption | Net Assessed | Millage | Est. Tax | Tax Savings | |||||
|
2025 |
154,500 |
114,766 |
12,623 |
1,000 |
11,623 |
117.21 |
$1,362 |
$630 |
|||||
|
2024 |
135,500 |
111,424 |
12,255 |
1,000 |
11,255 |
116.35 |
$1,310 |
$424 |
|||||
|
2023 |
133,000 |
108,179 |
11,899 |
1,000 |
10,899 |
118.06 |
$1,287 |
$440 |
|||||
|
2022 |
123,500 |
105,029 |
11,552 |
1,000 |
10,552 |
116.14 |
$1,226 |
$352 |
|||||
|
2021 |
108,500 |
101,970 |
11,216 |
1,000 |
10,216 |
116.17 |
$1,187 |
$200 |
|||||
| Property Account Status/Adjustments/Exemptions | ||
|---|---|---|
| Account # | Exemption Description | Amount |
|
R198003900 |
3% Cap Homestead |
0 |
|
R198003900 |
Homestead |
1,000 |
| Property Deed Transaction History (Recorded in the County Clerk's Office) | |||||||
|---|---|---|---|---|---|---|---|
| Date | Type | Book | Page | Price | Grantor | Grantee | |
|
11/26/2007 |
|
Deeds |
$0 |
SWEARINGEN IRA |
SWEARINGEN IRA & DORIS A |
||
|
8/22/2003 |
|
Deeds |
$74,000 |
GARDNER FRED J & CONNIE J |
SWEARINGEN IRA |
||
|
12/13/1993 |
|
Historical |
$0 |
RAGLE MARVIN D & ETHYLENE K |
GARDNER FRED J & CONNIE J |
||
|
10/23/1987 |
|
Historical |
$44,000 |
HENDERSON JOHNNY |
RAGLE MARVIN D & ETHYLENE K |
||
|
6/1/1978 |
|
Historical |
$0 |
|
HENDERSON JOHNNY |
||
| Last Mailed Notice of Value (N.O.V.) Information/History | ||||||||
|---|---|---|---|---|---|---|---|---|
| Year | Date | Market Value | Taxable Market Value | Gross Assessed | Exemption | Net Assessed | ||
|
2026 |
02/06/2026 |
152,000 |
118,208 |
13,002 |
1,000 |
12,002 |
||
|
2025 |
01/31/2025 |
154,500 |
114,766 |
12,623 |
1,000 |
11,623 |
||
|
2024 |
01/22/2024 |
135,500 |
111,424 |
12,255 |
1,000 |
11,255 |
||
|
2023 |
01/23/2023 |
133,000 |
108,179 |
11,899 |
1,000 |
10,899 |
||
|
2022 |
02/22/2022 |
123,500 |
105,029 |
11,552 |
1,000 |
10,552 |
||
| Property Building Permit History | |||||||||||
|---|---|---|---|---|---|---|---|---|---|---|---|
| Issued | Permit # | Provided by | Bldg # | Description | Est Construction Cost | Status | |||||
| No Building Permit records returned. | |||||||||||
| Click button on building number to access detailed information: | ||||||
|---|---|---|---|---|---|---|
| Bldg # | Vacant/Improved Land | Bldg Description | Year Built | SqFt | # Stories | |
|
1 |
Improved |
Ranch 1 Story |
1978 |
1,125 |
1 Stories |
|