|
|
|
| Larry Stein Oklahoma County Assessor (405) 713-1200 - Public Access System |
|
|
|
|
|
|
| Real Property Display - Screen Produced 3/22/2026 12:41:37 PM | ||||
|---|---|---|---|---|
| Account: R199750130 | Type: Residential | Location: |
3004 NORCREST DR |
|
| Building Name/Occupant: |
|
FOREST PARK |
||
| Owner Name 1: | MEARES ALICE B & KEITH |
Parcel PIN#: |
2472-19-975-0130 |
|
| Owner Name 2: | 1/4 section #: |
2472 |
||
| Owner Name 3: | Parent Acct: |
|
||
| Billing Address: | 3004 NORCREST DR | Tax District: |
|
|
| City, State, Zip | FOREST PARK , OK 73121 | School System: |
Millwood #37 |
|
|
Country: (If noted) |
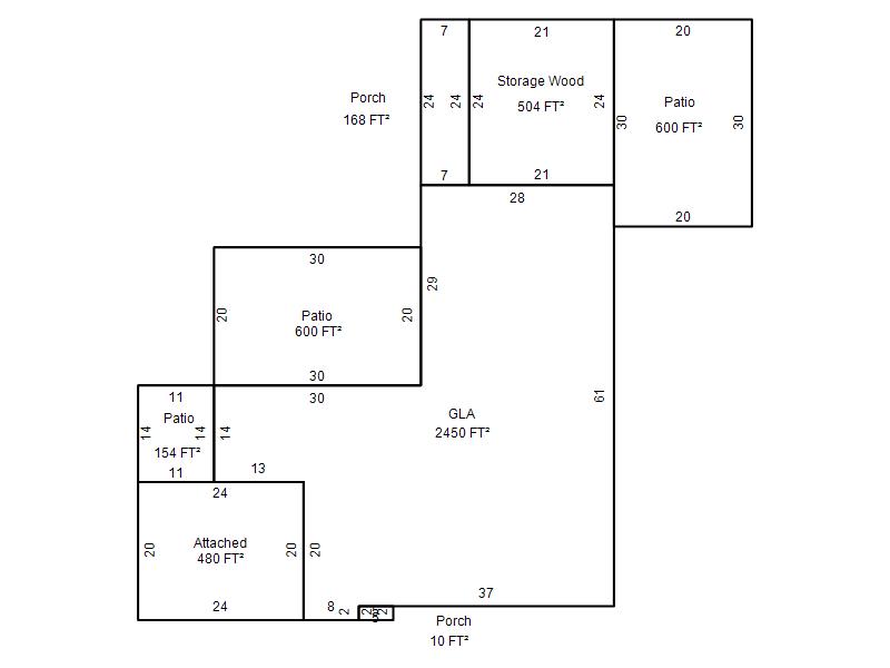
Land Size: |
0.8500 Acres |
||
|
Land Value: 44,399 |
|
|||
|
Sect 18-T12N-R2W Qtr NW |
TWIN NORTH ESTATES
Block
000
Lot
003
|
|||
| Full Legal Description: TWIN NORTH ESTATES 000 003 |
| Photo & Sketch (if available) | Comp Sales (ordered by relevancy) |
|
||||||||||||||||||
|
||||||||||||||||||||
| Value History (*The County Treasurer 405-713-1300 posts & collects actual tax amounts. Contact information HERE) | |||||||||||||
|---|---|---|---|---|---|---|---|---|---|---|---|---|---|
| Year | Market Value | Taxable Mkt Value | Gross Assessed | Exemption | Net Assessed | Millage | Est. Tax | Tax Savings | |||||
|
2025 |
326,500 |
234,993 |
25,848 |
0 |
25,848 |
116.01 |
$2,999 |
$1,168 |
|||||
|
2024 |
327,000 |
223,803 |
24,618 |
0 |
24,618 |
117.67 |
$2,897 |
$1,336 |
|||||
|
2023 |
324,500 |
213,146 |
23,445 |
0 |
23,445 |
119.74 |
$2,807 |
$1,467 |
|||||
|
2022 |
191,500 |
154,901 |
17,038 |
0 |
17,038 |
114.31 |
$1,948 |
$460 |
|||||
|
2021 |
150,500 |
147,525 |
16,227 |
0 |
16,227 |
116.75 |
$1,895 |
$38 |
|||||
| Property Account Status/Adjustments/Exemptions | ||
|---|---|---|
| Account # | Exemption Description | Amount |
|
R199750130 |
5% Capped Account |
0 |
| Property Deed Transaction History (Recorded in the County Clerk's Office) | |||||||
|---|---|---|---|---|---|---|---|
| Date | Type | Book | Page | Price | Grantor | Grantee | |
|
4/23/2019 |
|
Deeds |
$135,000 |
JENKINS KAREN S |
MEARES ALICE B & KEITH |
||
|
6/26/2017 |
|
Other |
$0 |
ELDRIDGE PHYLLIS TRS ELDRIDGE FAMILY TRUST |
JENKINS KAREN S |
||
|
4/24/2012 |
|
Deeds |
$0 |
ELDRIDGE HUGH W & PHYLLIS TRS ELDRIDGE FAMILY TRUST |
ELDRIDGE PHYLLIS TRS ELDRIDGE FAMILY TRUST |
||
|
7/27/1990 |
|
Historical |
$0 |
ELDRIDGE HUGH W & PHYLLIS M |
ELDRIDGE HUGH W & PHYLLIS TRS |
||
|
11/11/1911 |
|
Historical |
$0 |
|
ELDRIDGE HUGH W & PHYLLIS M |
||
| Last Mailed Notice of Value (N.O.V.) Information/History | ||||||||
|---|---|---|---|---|---|---|---|---|
| Year | Date | Market Value | Taxable Market Value | Gross Assessed | Exemption | Net Assessed | ||
|
2026 |
02/23/2026 |
324,000 |
246,742 |
27,141 |
0 |
27,141 |
||
|
2025 |
02/14/2025 |
326,500 |
234,993 |
25,848 |
0 |
25,848 |
||
|
2024 |
02/13/2024 |
327,000 |
223,803 |
24,618 |
0 |
24,618 |
||
|
2023 |
03/02/2023 |
324,500 |
213,146 |
23,445 |
0 |
23,445 |
||
|
2022 |
03/15/2022 |
191,500 |
154,901 |
17,038 |
0 |
17,038 |
||
| Property Building Permit History | ||||||
|---|---|---|---|---|---|---|
| Issued | Permit # | Provided by | Bldg # | Description | Est Construction Cost | Status |
|
12/18/2001 |
10264485 |
OKLAHOMA CITY |
1 |
Burn - Trip |
250,000 |
Inactive |
| Click button on building number to access detailed information: | ||||||
|---|---|---|---|---|---|---|
| Bldg # | Vacant/Improved Land | Bldg Description | Year Built | SqFt | # Stories | |
|
1 |
Improved |
Ranch 1 Story |
1959 |
2,450 |
1 Stories |
|