|
|
|
| Larry Stein Oklahoma County Assessor (405) 713-1200 - Public Access System |
|
|
|
|
|
|
| Real Property Display - Screen Produced 3/22/2026 12:44:29 PM | ||||
|---|---|---|---|---|
| Account: R199750190 | Type: Residential | Location: |
3118 NORCREST DR |
|
| Building Name/Occupant: |
|
FOREST PARK |
||
| Owner Name 1: | SCHMIDT RANDALL |
Parcel PIN#: |
2472-19-975-0190 |
|
| Owner Name 2: | 1/4 section #: |
2472 |
||
| Owner Name 3: | Parent Acct: |
|
||
| Billing Address: | 3118 NORCREST DR | Tax District: |
|
|
| City, State, Zip | FOREST PARK, OK 73121-1844 | School System: |
Millwood #37 |
|
|
Country: (If noted) |
Land Size: |
0.8500 Acres |
||
|
Land Value: 44,399 |
|
|||
|
Sect 18-T12N-R2W Qtr NW |
TWIN NORTH ESTATES
Block
000
Lot
000
|
|||
| Full Legal Description: TWIN NORTH ESTATES 000 000 LOT 9 PLUS 30FT VAC 42ND ST ADJ ON S |
| Photo & Sketch (if available) | Comp Sales (ordered by relevancy) |
|
||||||||||||||||||
|
||||||||||||||||||||
| Value History (*The County Treasurer 405-713-1300 posts & collects actual tax amounts. Contact information HERE) | |||||||||||||
|---|---|---|---|---|---|---|---|---|---|---|---|---|---|
| Year | Market Value | Taxable Mkt Value | Gross Assessed | Exemption | Net Assessed | Millage | Est. Tax | Tax Savings | |||||
|
2025 |
177,500 |
177,500 |
19,525 |
0 |
19,525 |
116.01 |
$2,265 |
$0 |
|||||
|
2024 |
176,000 |
130,058 |
14,306 |
0 |
14,306 |
117.67 |
$1,683 |
$595 |
|||||
|
2023 |
171,500 |
123,865 |
13,624 |
0 |
13,624 |
119.74 |
$1,631 |
$627 |
|||||
|
2022 |
155,000 |
117,967 |
12,975 |
0 |
12,975 |
114.31 |
$1,483 |
$466 |
|||||
|
2021 |
115,000 |
112,350 |
12,358 |
0 |
12,358 |
116.75 |
$1,443 |
$34 |
|||||
| Property Account Status/Adjustments/Exemptions | ||
|---|---|---|
| Account # | Exemption Description | Amount |
|
R199750190 |
5% Capped Account |
0 |
| Property Deed Transaction History (Recorded in the County Clerk's Office) | ||||||||||
|---|---|---|---|---|---|---|---|---|---|---|
| Date | Type | Book | Page | Price | Grantor | Grantee | ||||
|
9/4/2024 |
|
Deeds |
$150,000 |
LOGAN SUSAN G TRS |
SCHMIDT RANDALL |
|||||
|
10/29/2019 |
|
Deeds |
$0 |
LOGAN SUSAN GAY |
LOGAN SUSAN G TRS |
|||||
|
8/21/2001 |
|
Deeds |
$0 |
LEWIS ALINE J I HENDERSON KATHLEEN J |
HENDERSON KATHLEEN J METCALF JAMES A JR |
|||||
|
8/21/2001 |
|
Deeds |
$65,000 |
HENDERSON KATHLEEN J METCALF JAMES A JR |
LOGAN SUSAN GAY |
|||||
|
2/6/2001 |
|
Deeds |
$0 |
LEWIS ALINE J |
LEWIS ALINE J I HENDERSON KATHLEEN J |
|||||
| Last Mailed Notice of Value (N.O.V.) Information/History | ||||||||
|---|---|---|---|---|---|---|---|---|
| Year | Date | Market Value | Taxable Market Value | Gross Assessed | Exemption | Net Assessed | ||
|
2025 |
02/14/2025 |
177,500 |
177,500 |
19,525 |
0 |
19,525 |
||
|
2024 |
02/13/2024 |
176,000 |
130,058 |
14,306 |
0 |
14,306 |
||
|
2023 |
02/14/2023 |
171,500 |
123,865 |
13,624 |
0 |
13,624 |
||
|
2022 |
03/15/2022 |
155,000 |
117,967 |
12,975 |
0 |
12,975 |
||
|
2021 |
03/19/2021 |
115,000 |
112,350 |
12,358 |
0 |
12,358 |
||
| Property Building Permit History | |||||||||||
|---|---|---|---|---|---|---|---|---|---|---|---|
| Issued | Permit # | Provided by | Bldg # | Description | Est Construction Cost | Status | |||||
| No Building Permit records returned. | |||||||||||
| Click button on building number to access detailed information: | ||||||
|---|---|---|---|---|---|---|
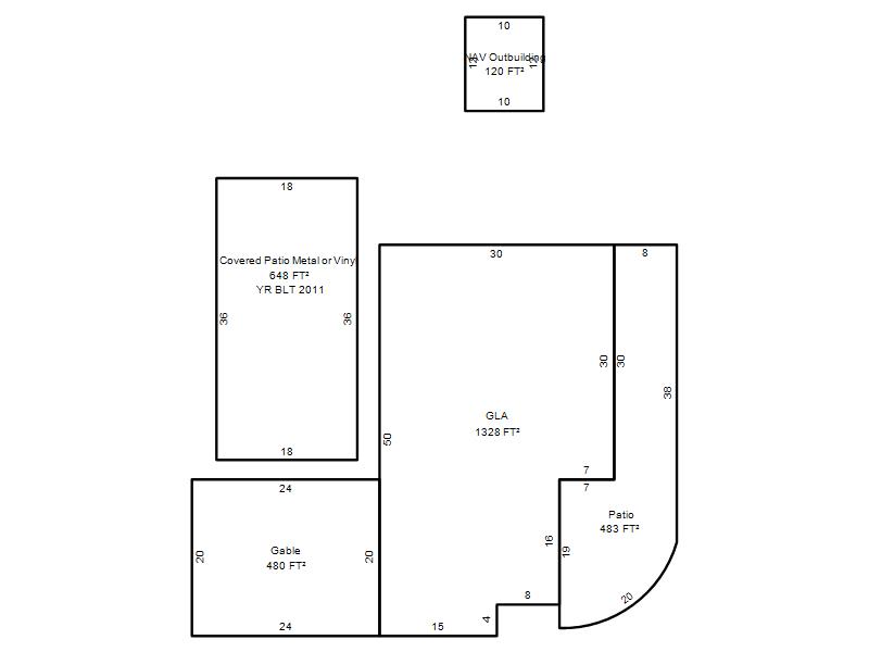
| Bldg # | Vacant/Improved Land | Bldg Description | Year Built | SqFt | # Stories | |
|
1 |
Improved |
Ranch 1 Story |
1955 |
1,328 |
1 Stories |
|