|
|
|
| Larry Stein Oklahoma County Assessor (405) 713-1200 - Public Access System |
|
|
|
|
|
|
| Real Property Display - Screen Produced 3/26/2026 4:40:27 AM | ||||
|---|---|---|---|---|
| Account: R199525600 | Type: Residential | Location: |
3505 N MAXWELL DR |
|
| Building Name/Occupant: |
|
FOREST PARK |
||
| Owner Name 1: | CROSBY LONZO ROSS CO TRS |
Parcel PIN#: |
2473-19-952-5600 |
|
| Owner Name 2: | ROLFE LESLEY RUCKER CO TRS | 1/4 section #: |
2473 |
|
| Owner Name 3: | CROSBY ROLFE LIVING TRUST | Parent Acct: |
|
|
| Billing Address: | 3505 N MAXWELL DR | Tax District: |
|
|
| City, State, Zip | OKLAHOMA CITY, OK 73121-4019 | School System: |
Mid-Del #52 |
|
|
Country: (If noted) |
Land Size: |
1.7200 Acres |
||
|
Land Value: 21,922 |
|
|||
|
Sect 19-T12N-R2W Qtr NE |
FOREST PARK SUB ADD
Block
000
Lot
000
|
|||
| Full Legal Description: FOREST PARK SUB ADD 000 000 LOT 107 EX A TRI TR ON SLY SIDE BEING 10FT ON E END & EXTENDING TO SW/C PLUS A TRI TR OFF SLY SIDE LOT 106 BEING 398.35FT ON SLY SIDE 50FT ON SWLY SIDE & 73FT ON WLY SIDE |
| No comparable sales report available. | ||||||||||||||||||||||
|
||||||||||||||||||||||
| Value History (*The County Treasurer 405-713-1300 posts & collects actual tax amounts. Contact information HERE) | |||||||||||||
|---|---|---|---|---|---|---|---|---|---|---|---|---|---|
| Year | Market Value | Taxable Mkt Value | Gross Assessed | Exemption | Net Assessed | Millage | Est. Tax | Tax Savings | |||||
|
2026 |
314,866 |
228,863 |
25,174 |
1,000 |
24,174 |
111.30 |
$2,691 |
$1,164 |
|||||
|
2025 |
289,675 |
222,198 |
24,440 |
1,000 |
23,440 |
111.30 |
$2,609 |
$937 |
|||||
|
2024 |
223,759 |
215,727 |
23,729 |
1,000 |
22,729 |
113.58 |
$2,582 |
$214 |
|||||
|
2023 |
223,759 |
209,444 |
23,038 |
1,000 |
22,038 |
108.16 |
$2,384 |
$278 |
|||||
|
2022 |
219,638 |
203,344 |
22,366 |
1,000 |
21,366 |
106.65 |
$2,279 |
$298 |
|||||
| Property Account Status/Adjustments/Exemptions | ||
|---|---|---|
| Account # | Exemption Description | Amount |
|
R199525600 |
Homestead |
1,000 |
|
R199525600 |
3% Cap Homestead |
0 |
| Property Deed Transaction History (Recorded in the County Clerk's Office) | |||||||
|---|---|---|---|---|---|---|---|
| Date | Type | Book | Page | Price | Grantor | Grantee | |
|
4/2/2014 |
|
Deeds |
$0 |
ROLFE LESLEY R |
CROSBY LONZO ROSS CO TRS |
||
|
1/19/2001 |
|
Deeds |
$0 |
RUCKER GAYE M ROLFE LESLEY R |
ROLFE LESLEY R |
||
|
11/24/1997 |
|
Historical |
$0 |
RUCKER RAYMOND L & JO M |
RUCKER GAYE M |
||
|
11/11/1911 |
|
Historical |
$0 |
|
RUCKER RAYMOND L & JO M |
||
| Last Mailed Notice of Value (N.O.V.) Information/History | ||||||||
|---|---|---|---|---|---|---|---|---|
| Year | Date | Market Value | Taxable Market Value | Gross Assessed | Exemption | Net Assessed | ||
|
2026 |
02/23/2026 |
314,866 |
228,863 |
25,174 |
1,000 |
24,174 |
||
|
2025 |
02/14/2025 |
289,675 |
222,198 |
24,440 |
1,000 |
23,440 |
||
|
2024 |
02/13/2024 |
223,759 |
215,727 |
23,729 |
1,000 |
22,729 |
||
|
2023 |
02/14/2023 |
223,759 |
209,444 |
23,038 |
1,000 |
22,038 |
||
|
2022 |
03/15/2022 |
219,638 |
203,344 |
22,366 |
1,000 |
21,366 |
||
| Property Building Permit History | |||||||||||
|---|---|---|---|---|---|---|---|---|---|---|---|
| Issued | Permit # | Provided by | Bldg # | Description | Est Construction Cost | Status | |||||
| No Building Permit records returned. | |||||||||||
| Click button on building number to access detailed information: | ||||||
|---|---|---|---|---|---|---|
| Bldg # | Vacant/Improved Land | Bldg Description | Year Built | SqFt | # Stories | |
|
1 |
Improved |
Ranch 1 Story |
1951 |
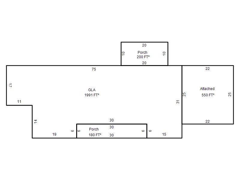
1,991 |
1 Stories |
|
|
2 |
Improved |
Ranch 1 Story |
1955 |
792 |
1 Stories |
|