|
|
|
| Larry Stein Oklahoma County Assessor (405) 713-1200 - Public Access System |
|
|
|
|
|
|
| Real Property Display - Screen Produced 2/27/2026 9:26:11 PM | ||||
|---|---|---|---|---|
| Account: R141370300 | Type: Residential | Location: |
3000 N COLTRANE RD |
|
| Building Name/Occupant: |
|
OKLAHOMA CITY |
||
| Owner Name 1: | BROWN VERNON R |
Parcel PIN#: |
2479-14-137-0300 |
|
| Owner Name 2: | BROWN KIM C | 1/4 section #: |
2479 |
|
| Owner Name 3: | Parent Acct: |
|
||
| Billing Address: | 27814 RAMBLE ROCK CT | Tax District: |
|
|
| City, State, Zip | KATY , TX 77494-5979 | School System: |
Mid-Del #52 |
|
|
Country: (If noted) |
UNITED STATES |
Land Size: |
0.9400 Acres |
|
|
Land Value: 42,857 |
|
|||
|
Sect 20-T12N-R2W Qtr SW |
BARTELLS ACRES ADD
Block
000
Lot
003
|
|||
| Full Legal Description: BARTELLS ACRES ADD 000 003 |
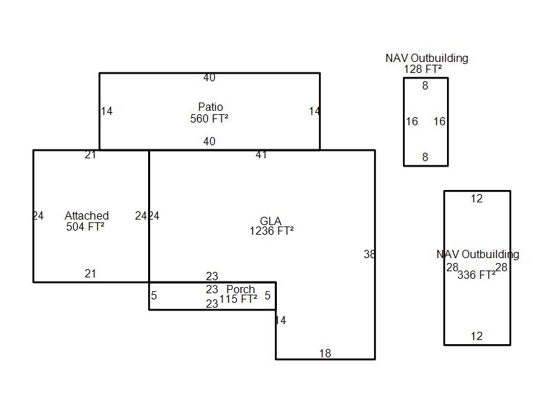
| Photo & Sketch (if available) | Comp Sales (ordered by relevancy) |
|
||||||||||||||||||
|
||||||||||||||||||||
| Value History (*The County Treasurer 405-713-1300 posts & collects actual tax amounts. Contact information HERE) | |||||||||||||
|---|---|---|---|---|---|---|---|---|---|---|---|---|---|
| Year | Market Value | Taxable Mkt Value | Gross Assessed | Exemption | Net Assessed | Millage | Est. Tax | Tax Savings | |||||
|
2025 |
158,500 |
118,139 |
12,994 |
0 |
12,994 |
126.46 |
$1,643 |
$561 |
|||||
|
2024 |
158,000 |
112,514 |
12,376 |
0 |
12,376 |
128.51 |
$1,591 |
$643 |
|||||
|
2023 |
147,000 |
107,157 |
11,787 |
0 |
11,787 |
122.94 |
$1,449 |
$539 |
|||||
|
2022 |
127,000 |
102,055 |
11,225 |
0 |
11,225 |
122.11 |
$1,371 |
$335 |
|||||
|
2021 |
107,000 |
97,196 |
10,691 |
0 |
10,691 |
124.74 |
$1,334 |
$135 |
|||||
| Property Account Status/Adjustments/Exemptions | ||
|---|---|---|
| Account # | Exemption Description | Amount |
|
R141370300 |
5% Capped Account |
0 |
| Property Deed Transaction History (Recorded in the County Clerk's Office) | ||||||||||
|---|---|---|---|---|---|---|---|---|---|---|
| Date | Type | Book | Page | Price | Grantor | Grantee | ||||
|
12/10/2013 |
|
Hmstd Off & |
$0 |
BROWN OLIVER C BROWN MARTHA A |
BROWN VERNON R |
|||||
|
4/24/2012 |
|
Hmstd Off & |
$0 |
BROWN VERNON R & KIM |
BROWN OLIVER C BROWN MARTHA A |
|||||
|
7/3/2008 |
|
Deeds |
$0 |
BROWN VERNON |
BROWN VERNON R & KIM |
|||||
|
1/17/2004 |
|
Deeds |
$75,000 |
BROWN OLIVER & MARTHA |
BROWN VERNON |
|||||
|
3/24/2000 |
|
Deeds |
$0 |
BROWN OLIVER C & MARTHA A |
BROWN OLIVER & MARTHA |
|||||
| Last Mailed Notice of Value (N.O.V.) Information/History | ||||||||
|---|---|---|---|---|---|---|---|---|
| Year | Date | Market Value | Taxable Market Value | Gross Assessed | Exemption | Net Assessed | ||
|
2026 |
02/23/2026 |
151,500 |
124,045 |
13,644 |
0 |
13,644 |
||
|
2025 |
02/14/2025 |
158,500 |
118,139 |
12,994 |
0 |
12,994 |
||
|
2024 |
02/13/2024 |
158,000 |
112,514 |
12,376 |
0 |
12,376 |
||
|
2023 |
02/14/2023 |
147,000 |
107,157 |
11,787 |
0 |
11,787 |
||
|
2022 |
03/15/2022 |
127,000 |
102,055 |
11,225 |
0 |
11,225 |
||
| Property Building Permit History | |||||||||||
|---|---|---|---|---|---|---|---|---|---|---|---|
| Issued | Permit # | Provided by | Bldg # | Description | Est Construction Cost | Status | |||||
| No Building Permit records returned. | |||||||||||
| Click button on building number to access detailed information: | ||||||
|---|---|---|---|---|---|---|
| Bldg # | Vacant/Improved Land | Bldg Description | Year Built | SqFt | # Stories | |
|
1 |
Improved |
Ranch 1 Story |
1959 |
1,236 |
1 Stories |
|