|
|
|
| Larry Stein Oklahoma County Assessor (405) 713-1200 - Public Access System |
|
|
|
|
|
|
| Real Property Display - Screen Produced 2/27/2026 9:26:11 PM | ||||
|---|---|---|---|---|
| Account: R141370610 | Type: Residential | Location: |
2814 N COLTRANE RD |
|
| Building Name/Occupant: |
|
OKLAHOMA CITY |
||
| Owner Name 1: | WALKER DEBORAH HILL |
Parcel PIN#: |
2479-14-137-0610 |
|
| Owner Name 2: | 1/4 section #: |
2479 |
||
| Owner Name 3: | Parent Acct: |
|
||
| Billing Address: | 2814 N COLTRANE RD | Tax District: |
|
|
| City, State, Zip | OKLAHOMA CITY, OK 73121 | School System: |
Mid-Del #52 |
|
|
Country: (If noted) |
Land Size: |
0.3700 Acres |
||
|
Land Value: 34,242 |
|
|||
|
Sect 20-T12N-R2W Qtr SW |
BARTELLS ACRES ADD
Block
000
Lot
000
|
|||
| Full Legal Description: BARTELLS ACRES ADD 000 000 PT OF LOT 6 BEG 285FT S OF NW/C LOT 4 TH S99.2FT E190FT N76.2FT W51.3FT NWLY 140.58FT TO BEG |
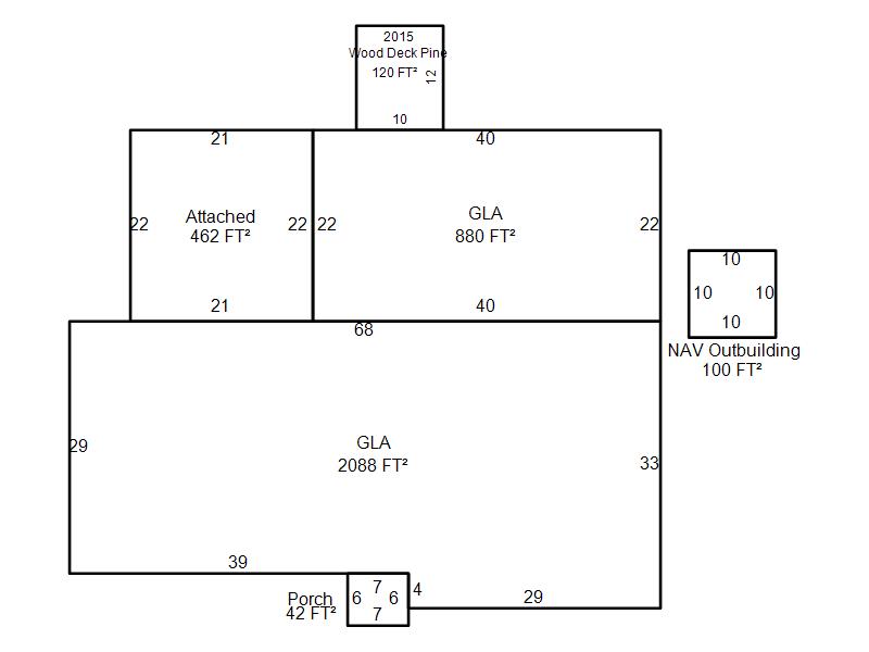
| Photo & Sketch (if available) | Comp Sales (ordered by relevancy) |
|
||||||||||||||||||
|
||||||||||||||||||||
| Value History (*The County Treasurer 405-713-1300 posts & collects actual tax amounts. Contact information HERE) | |||||||||||||
|---|---|---|---|---|---|---|---|---|---|---|---|---|---|
| Year | Market Value | Taxable Mkt Value | Gross Assessed | Exemption | Net Assessed | Millage | Est. Tax | Tax Savings | |||||
|
2025 |
240,500 |
177,266 |
19,498 |
1,000 |
18,498 |
126.46 |
$2,339 |
$1,006 |
|||||
|
2024 |
240,000 |
172,103 |
18,931 |
1,000 |
17,931 |
128.51 |
$2,304 |
$1,088 |
|||||
|
2023 |
226,500 |
167,091 |
18,379 |
1,000 |
17,379 |
122.94 |
$2,137 |
$926 |
|||||
|
2022 |
195,000 |
162,225 |
17,844 |
1,000 |
16,844 |
122.11 |
$2,057 |
$562 |
|||||
|
2021 |
165,000 |
157,500 |
17,325 |
0 |
17,325 |
124.74 |
$2,161 |
$103 |
|||||
| Property Account Status/Adjustments/Exemptions | ||
|---|---|---|
| Account # | Exemption Description | Amount |
|
R141370610 |
Homestead |
1,000 |
|
R141370610 |
3% Cap Homestead |
0 |
| Property Deed Transaction History (Recorded in the County Clerk's Office) | ||||||||||
|---|---|---|---|---|---|---|---|---|---|---|
| Date | Type | Book | Page | Price | Grantor | Grantee | ||||
|
9/16/2021 |
|
Deeds |
$0 |
WALKER GREGORY A & DEBORAH HILL |
WALKER DEBORAH HILL |
|||||
|
10/15/2019 |
|
Deeds |
$125,000 |
VAN INVESTMENTS LLC |
WALKER GREGORY A & DEBORAH HILL |
|||||
|
6/22/2009 |
|
Deeds |
$67,500 |
EVANS GERI L |
VAN INVESTMENTS LLC |
|||||
|
12/10/2008 |
|
Deeds |
$148,000 |
EMMETT LOUISE L |
EVANS GERI L |
|||||
|
3/30/1994 |
|
Historical |
$0 |
EMMETT GERALD L & LOUISE L |
EMMETT LOUISE L |
|||||
| Last Mailed Notice of Value (N.O.V.) Information/History | ||||||||
|---|---|---|---|---|---|---|---|---|
| Year | Date | Market Value | Taxable Market Value | Gross Assessed | Exemption | Net Assessed | ||
|
2026 |
02/23/2026 |
228,000 |
182,583 |
20,083 |
1,000 |
19,083 |
||
|
2025 |
02/14/2025 |
240,500 |
177,266 |
19,498 |
1,000 |
18,498 |
||
|
2024 |
02/13/2024 |
240,000 |
172,103 |
18,931 |
1,000 |
17,931 |
||
|
2023 |
02/14/2023 |
226,500 |
167,091 |
18,379 |
1,000 |
17,379 |
||
|
2022 |
03/15/2022 |
195,000 |
162,225 |
17,844 |
1,000 |
16,844 |
||
| Property Building Permit History | |||||||||||
|---|---|---|---|---|---|---|---|---|---|---|---|
| Issued | Permit # | Provided by | Bldg # | Description | Est Construction Cost | Status | |||||
| No Building Permit records returned. | |||||||||||
| Click button on building number to access detailed information: | ||||||
|---|---|---|---|---|---|---|
| Bldg # | Vacant/Improved Land | Bldg Description | Year Built | SqFt | # Stories | |
|
1 |
Improved |
Ranch 1 Story |
1960 |
2,968 |
1 Stories |
|