|
|
|
| Larry Stein Oklahoma County Assessor (405) 713-1200 - Public Access System |
|
|
|
|
|
|
| Real Property Display - Screen Produced 2/27/2026 9:26:10 PM | ||||
|---|---|---|---|---|
| Account: R141370850 | Type: Residential | Location: |
2708 N COLTRANE RD |
|
| Building Name/Occupant: |
|
OKLAHOMA CITY |
||
| Owner Name 1: | BINGER PROPERTIES LLC |
Parcel PIN#: |
2479-14-137-0850 |
|
| Owner Name 2: | 1/4 section #: |
2479 |
||
| Owner Name 3: | Parent Acct: |
|
||
| Billing Address: | PO BOX 14783 | Tax District: |
|
|
| City, State, Zip | OKLAHOMA CITY, OK 73113-0783 | School System: |
Mid-Del #52 |
|
|
Country: (If noted) |
Land Size: |
0.2900 Acres |
||
|
Land Value: 32,291 |
|
|||
|
Sect 20-T12N-R2W Qtr SW |
BARTELLS ACRES ADD
Block
000
Lot
000
|
|||
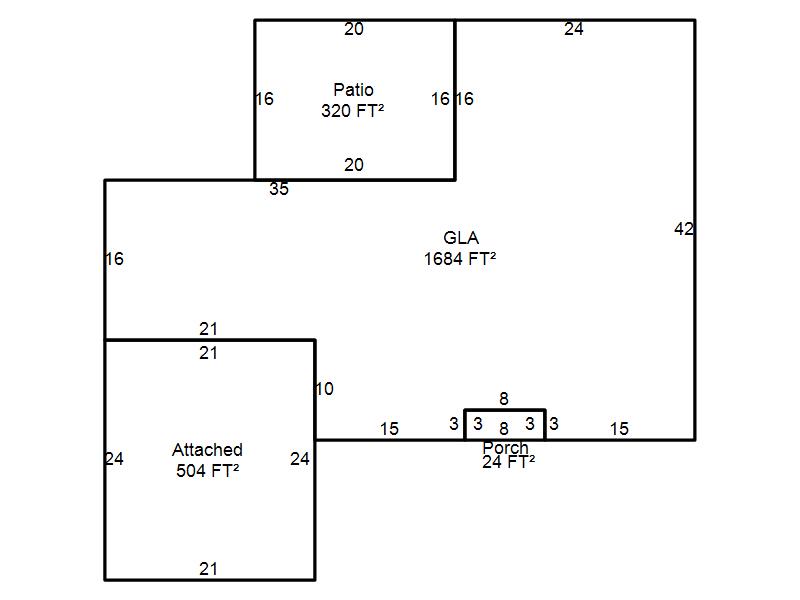
| Full Legal Description: BARTELLS ACRES ADD 000 000 S7.8FT OF W178.75FT OF LOT 8 & N62.2FT OF W178.75FT OF LOT 9 |
| Photo & Sketch (if available) | Comp Sales (ordered by relevancy) |
|
||||||||||||||||||
|
||||||||||||||||||||
| Value History (*The County Treasurer 405-713-1300 posts & collects actual tax amounts. Contact information HERE) | |||||||||||||
|---|---|---|---|---|---|---|---|---|---|---|---|---|---|
| Year | Market Value | Taxable Mkt Value | Gross Assessed | Exemption | Net Assessed | Millage | Est. Tax | Tax Savings | |||||
|
2025 |
165,500 |
124,525 |
13,697 |
0 |
13,697 |
126.46 |
$1,732 |
$570 |
|||||
|
2024 |
162,000 |
118,596 |
13,045 |
0 |
13,045 |
128.51 |
$1,676 |
$614 |
|||||
|
2023 |
151,500 |
112,949 |
12,423 |
0 |
12,423 |
122.94 |
$1,527 |
$521 |
|||||
|
2022 |
131,500 |
107,571 |
11,831 |
0 |
11,831 |
122.11 |
$1,445 |
$321 |
|||||
|
2021 |
111,000 |
102,449 |
11,268 |
0 |
11,268 |
124.74 |
$1,406 |
$117 |
|||||
| Property Account Status/Adjustments/Exemptions | ||
|---|---|---|
| Account # | Exemption Description | Amount |
|
R141370850 |
5% Capped Account |
0 |
| Property Deed Transaction History (Recorded in the County Clerk's Office) | ||||||||||
|---|---|---|---|---|---|---|---|---|---|---|
| Date | Type | Book | Page | Price | Grantor | Grantee | ||||
|
10/24/2013 |
|
Hmstd Off & |
$0 |
WILLIAMS ISAAC A JR |
ISAAC A WILLIAMS JR LLC |
|||||
|
10/24/2013 |
|
Hmstd Off & |
$0 |
ISAAC A WILLIAMS JR LLC |
BINGER PROPERTIES LLC |
|||||
|
1/18/2011 |
|
Deeds |
$0 |
WILLIAMS ISAAC A JR & JEANETTA J |
ISAAC A WILLIAMS JR LLC |
|||||
|
10/23/2005 |
|
Hmstd Off & |
$0 |
WILLIAMS ISAAC ALEXANDER JR |
ISAAC A WILLIAMS JR LLC |
|||||
|
1/31/2004 |
|
Other |
$0 |
WILLIAMS ISAAC A JR |
ISAAC A WILLIAMS JR LLC |
|||||
| Last Mailed Notice of Value (N.O.V.) Information/History | ||||||||
|---|---|---|---|---|---|---|---|---|
| Year | Date | Market Value | Taxable Market Value | Gross Assessed | Exemption | Net Assessed | ||
|
2026 |
02/23/2026 |
157,000 |
130,751 |
14,381 |
0 |
14,381 |
||
|
2025 |
02/14/2025 |
165,500 |
124,525 |
13,697 |
0 |
13,697 |
||
|
2024 |
02/13/2024 |
162,000 |
118,596 |
13,045 |
0 |
13,045 |
||
|
2023 |
02/14/2023 |
151,500 |
112,949 |
12,423 |
0 |
12,423 |
||
|
2022 |
03/15/2022 |
131,500 |
107,571 |
11,831 |
0 |
11,831 |
||
| Property Building Permit History | |||||||||||
|---|---|---|---|---|---|---|---|---|---|---|---|
| Issued | Permit # | Provided by | Bldg # | Description | Est Construction Cost | Status | |||||
| No Building Permit records returned. | |||||||||||
| Click button on building number to access detailed information: | ||||||
|---|---|---|---|---|---|---|
| Bldg # | Vacant/Improved Land | Bldg Description | Year Built | SqFt | # Stories | |
|
1 |
Improved |
Ranch 1 Story |
1959 |
1,684 |
1 Stories |
|