|
|
|
| Larry Stein Oklahoma County Assessor (405) 713-1200 - Public Access System |
|
|
|
|
|
|
| Real Property Display - Screen Produced 3/16/2026 7:37:01 AM | ||||
|---|---|---|---|---|
| Account: R125521210 | Type: Residential | Location: |
10201 SE 55TH ST |
|
| Building Name/Occupant: |
|
OKLAHOMA CITY |
||
| Owner Name 1: | COOK JAMES J & STEPHANIE K |
Parcel PIN#: |
1275-12-552-1210 |
|
| Owner Name 2: | 1/4 section #: |
1275 |
||
| Owner Name 3: | Parent Acct: |
|
||
| Billing Address: | 10201 SE 55TH ST | Tax District: |
|
|
| City, State, Zip | OKLAHOMA CITY, OK 73150-4532 | School System: |
Mid-Del #52 |
|
|
Country: (If noted) |
Land Size: |
0.9900 Acres |
||
|
Land Value: 77,220 |
|
|||
|
Sect 19-T11N-R1W Qtr SW |
RIDGEFIELD
Block
002
Lot
007
|
|||
| Full Legal Description: RIDGEFIELD 002 007 |
| Photo & Sketch (if available) | Comp Sales (ordered by relevancy) |
|
||||||||||||||||||
|
||||||||||||||||||||
| Value History (*The County Treasurer 405-713-1300 posts & collects actual tax amounts. Contact information HERE) | |||||||||||||
|---|---|---|---|---|---|---|---|---|---|---|---|---|---|
| Year | Market Value | Taxable Mkt Value | Gross Assessed | Exemption | Net Assessed | Millage | Est. Tax | Tax Savings | |||||
|
2025 |
336,500 |
261,414 |
28,755 |
1,000 |
27,755 |
126.46 |
$3,510 |
$1,171 |
|||||
|
2024 |
342,500 |
253,800 |
27,917 |
1,000 |
26,917 |
128.51 |
$3,459 |
$1,382 |
|||||
|
2023 |
324,000 |
246,408 |
27,104 |
1,000 |
26,104 |
122.94 |
$3,209 |
$1,172 |
|||||
|
2022 |
265,000 |
239,232 |
26,315 |
1,000 |
25,315 |
122.11 |
$3,091 |
$468 |
|||||
|
2021 |
234,000 |
232,265 |
25,549 |
1,000 |
24,549 |
124.74 |
$3,062 |
$149 |
|||||
| Property Account Status/Adjustments/Exemptions | ||
|---|---|---|
| Account # | Exemption Description | Amount |
|
R125521210 |
3% Cap Homestead |
0 |
|
R125521210 |
Homestead |
1,000 |
| Property Deed Transaction History (Recorded in the County Clerk's Office) | ||||||||||
|---|---|---|---|---|---|---|---|---|---|---|
| Date | Type | Book | Page | Price | Grantor | Grantee | ||||
|
4/12/2013 |
|
Deeds |
$0 |
COOK JAMES J & STEPHANIE TRS COOK LIVING TRUST |
COOK JAMES J & STEPHANIE K |
|||||
|
7/14/2005 |
|
Deeds |
$0 |
COOK JAMES J COOK STEPHANIE K |
COOK JAMES J & STEPHANIE TRS COOK LIVING TRUST |
|||||
|
8/2/2000 |
|
Deeds |
$175,000 |
NUTTER LARRY W & DELTA JEAN |
COOK JAMES J COOK STEPHANIE K |
|||||
|
10/5/1988 |
|
Historical |
$130,000 |
CRAFTMENSHIP HOMES INC |
NUTTER LARRY W & DELTA JEAN |
|||||
|
5/12/1988 |
|
Historical |
$0 |
HUHN ROBERT W & RUBY M |
CRAFTMENSHIP HOMES INC |
|||||
| Last Mailed Notice of Value (N.O.V.) Information/History | ||||||||
|---|---|---|---|---|---|---|---|---|
| Year | Date | Market Value | Taxable Market Value | Gross Assessed | Exemption | Net Assessed | ||
|
2026 |
02/06/2026 |
331,500 |
269,256 |
29,617 |
1,000 |
28,617 |
||
|
2025 |
01/31/2025 |
336,500 |
261,414 |
28,755 |
1,000 |
27,755 |
||
|
2024 |
01/22/2024 |
342,500 |
253,800 |
27,917 |
1,000 |
26,917 |
||
|
2023 |
01/23/2023 |
324,000 |
246,408 |
27,104 |
1,000 |
26,104 |
||
|
2022 |
02/22/2022 |
265,000 |
239,232 |
26,315 |
1,000 |
25,315 |
||
| Property Building Permit History | |||||||||||
|---|---|---|---|---|---|---|---|---|---|---|---|
| Issued | Permit # | Provided by | Bldg # | Description | Est Construction Cost | Status | |||||
| No Building Permit records returned. | |||||||||||
| Click button on building number to access detailed information: | ||||||
|---|---|---|---|---|---|---|
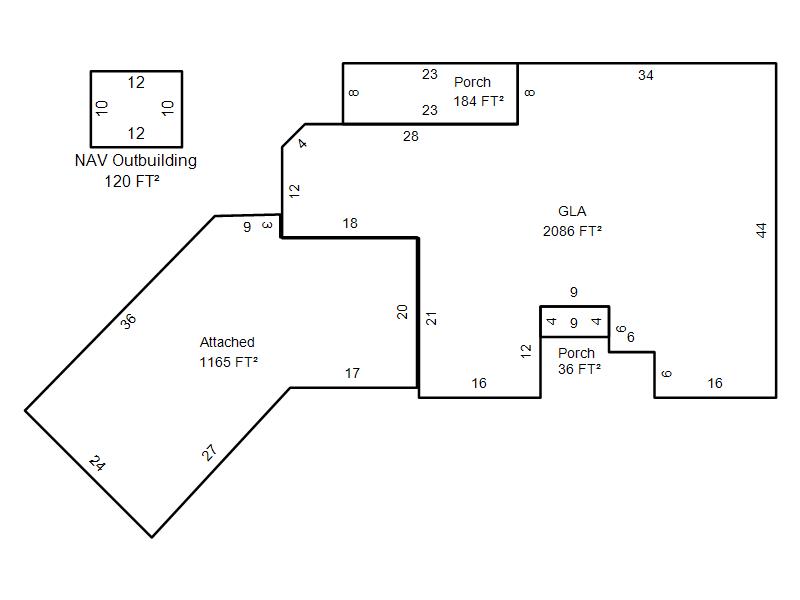
| Bldg # | Vacant/Improved Land | Bldg Description | Year Built | SqFt | # Stories | |
|
1 |
Improved |
Ranch 1 Story |
1988 |
2,086 |
1 Stories |
|