|
|
|
| Larry Stein Oklahoma County Assessor (405) 713-1200 - Public Access System |
|
|
|
|
|
|
| Real Property Display - Screen Produced 4/4/2026 3:02:27 AM | ||||
|---|---|---|---|---|
| Account: R154751025 | Type: Residential | Location: |
1400 ALAN LN |
|
| Building Name/Occupant: |
|
MIDWEST CITY |
||
| Owner Name 1: | 1400 ALAN LANE LLC |
Parcel PIN#: |
2499-15-475-1025 |
|
| Owner Name 2: | 1/4 section #: |
2499 |
||
| Owner Name 3: | Parent Acct: |
|
||
| Billing Address: | 6915 N CLASSEN BLVD, Unit A | Tax District: |
|
|
| City, State, Zip | OKLAHOMA CITY, OK 73116 | School System: |
Oklahoma City #89 |
|
|
Country: (If noted) |
Land Size: |
0.2614 Acres |
||
|
Land Value: 14,804 |
|
|||
|
Sect 25-T12N-R2W Qtr SW |
ASHFORD HGTS ADD
Block
001
Lot
003
|
|||
| Full Legal Description: ASHFORD HGTS ADD 001 003 S73FT |
| Photo & Sketch (if available) | Comp Sales (ordered by relevancy) |
|
||||||||||||||||||
|
||||||||||||||||||||
| Value History (*The County Treasurer 405-713-1300 posts & collects actual tax amounts. Contact information HERE) | |||||||||||||
|---|---|---|---|---|---|---|---|---|---|---|---|---|---|
| Year | Market Value | Taxable Mkt Value | Gross Assessed | Exemption | Net Assessed | Millage | Est. Tax | Tax Savings | |||||
|
2026 |
175,500 |
147,735 |
16,250 |
0 |
16,250 |
114.34 |
$1,858 |
$349 |
|||||
|
2025 |
170,500 |
140,700 |
15,477 |
0 |
15,477 |
114.34 |
$1,770 |
$375 |
|||||
|
2024 |
134,000 |
134,000 |
14,740 |
0 |
14,740 |
116.11 |
$1,711 |
$0 |
|||||
|
2023 |
166,000 |
166,000 |
18,260 |
0 |
18,260 |
115.66 |
$2,112 |
$0 |
|||||
|
2022 |
74,500 |
74,500 |
8,195 |
0 |
8,195 |
110.02 |
$902 |
$0 |
|||||
| Property Account Status/Adjustments/Exemptions | ||
|---|---|---|
| Account # | Exemption Description | Amount |
|
R154751025 |
5% Capped Account |
0 |
| Property Deed Transaction History (Recorded in the County Clerk's Office) | ||||||||||
|---|---|---|---|---|---|---|---|---|---|---|
| Date | Type | Book | Page | Price | Grantor | Grantee | ||||
|
11/1/2022 |
|
Deeds |
$165,000 |
STERLING BUSINESS GROUP LLC |
1400 ALAN LANE LLC |
|||||
|
2/18/2022 |
|
Deeds |
$64,000 |
ENDLESS PROPERTY MANAGEMENT LLC |
STERLING BUSINESS GROUP LLC |
|||||
|
4/23/2021 |
|
Deeds |
$22,000 |
HERO INVESTMENTS LLC |
ENDLESS PROPERTY MANAGEMENT LLC |
|||||
|
4/23/2021 |
|
Deeds |
$10,500 |
MORALES ALEX ESPINOSA |
HERO INVESTMENTS LLC |
|||||
|
9/20/2011 |
|
Deeds |
$56,000 |
HOMES OF OKC INC |
MORALES ALEX ESPINOSA |
|||||
| Last Mailed Notice of Value (N.O.V.) Information/History | ||||||||
|---|---|---|---|---|---|---|---|---|
| Year | Date | Market Value | Taxable Market Value | Gross Assessed | Exemption | Net Assessed | ||
|
2026 |
02/23/2026 |
175,500 |
147,735 |
16,250 |
0 |
16,250 |
||
|
2025 |
02/14/2025 |
170,500 |
140,700 |
15,477 |
0 |
15,477 |
||
|
2023 |
02/14/2023 |
166,000 |
166,000 |
18,260 |
0 |
18,260 |
||
|
2022 |
03/15/2022 |
74,500 |
74,500 |
8,195 |
0 |
8,195 |
||
|
2022 |
04/05/2022 |
74,500 |
74,500 |
8,195 |
0 |
8,195 |
||
| Property Building Permit History | ||||||
|---|---|---|---|---|---|---|
| Issued | Permit # | Provided by | Bldg # | Description | Est Construction Cost | Status |
|
8/10/2022 |
B-22-1322 |
|
1 |
Remodeled |
22,000 |
Inactive |
| Click button on building number to access detailed information: | ||||||
|---|---|---|---|---|---|---|
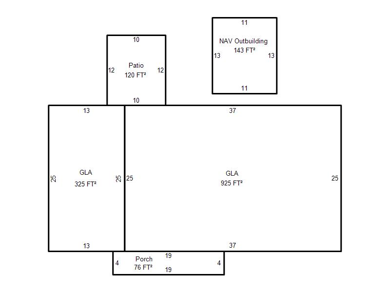
| Bldg # | Vacant/Improved Land | Bldg Description | Year Built | SqFt | # Stories | |
|
1 |
Improved |
Ranch 1 Story |
1961 |
1,250 |
1 Stories |
|