|
|
|
| Larry Stein Oklahoma County Assessor (405) 713-1200 - Public Access System |
|
|
|
|
|
|
| Real Property Display - Screen Produced 4/4/2026 3:02:27 AM | ||||
|---|---|---|---|---|
| Account: R154751045 | Type: Residential | Location: |
1308 ALAN LN |
|
| Building Name/Occupant: |
|
MIDWEST CITY |
||
| Owner Name 1: | COLLINS LOURDES S |
Parcel PIN#: |
2499-15-475-1045 |
|
| Owner Name 2: | 1/4 section #: |
2499 |
||
| Owner Name 3: | Parent Acct: |
|
||
| Billing Address: | 1308 ALAN LN | Tax District: |
|
|
| City, State, Zip | MIDWEST CITY, OK 73130-1218 | School System: |
Oklahoma City #89 |
|
|
Country: (If noted) |
Land Size: |
0.2686 Acres |
||
|
Land Value: 15,210 |
|
|||
|
Sect 25-T12N-R2W Qtr SW |
ASHFORD HGTS ADD
Block
001
Lot
005
|
|||
| Full Legal Description: ASHFORD HGTS ADD 001 005 |
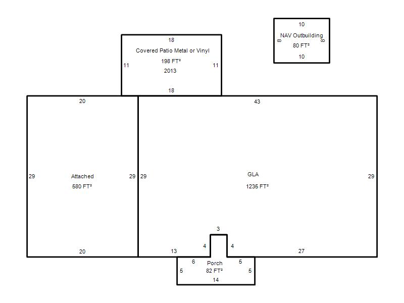
| Photo & Sketch (if available) | Comp Sales (ordered by relevancy) |
|
||||||||||||||||||
|
||||||||||||||||||||
| Value History (*The County Treasurer 405-713-1300 posts & collects actual tax amounts. Contact information HERE) | |||||||||||||
|---|---|---|---|---|---|---|---|---|---|---|---|---|---|
| Year | Market Value | Taxable Mkt Value | Gross Assessed | Exemption | Net Assessed | Millage | Est. Tax | Tax Savings | |||||
|
2026 |
130,000 |
57,318 |
6,304 |
1,000 |
5,304 |
114.34 |
$607 |
$1,028 |
|||||
|
2025 |
130,000 |
55,649 |
6,121 |
1,000 |
5,121 |
114.34 |
$586 |
$1,049 |
|||||
|
2024 |
102,000 |
54,029 |
5,943 |
1,000 |
4,943 |
116.11 |
$574 |
$729 |
|||||
|
2023 |
108,500 |
52,456 |
5,770 |
1,000 |
4,770 |
115.66 |
$552 |
$829 |
|||||
|
2022 |
88,000 |
50,929 |
5,601 |
1,000 |
4,601 |
110.02 |
$506 |
$559 |
|||||
| Property Account Status/Adjustments/Exemptions | ||
|---|---|---|
| Account # | Exemption Description | Amount |
|
R154751045 |
3% Cap Homestead |
0 |
|
R154751045 |
Homestead |
1,000 |
| Property Deed Transaction History (Recorded in the County Clerk's Office) | |||||||
|---|---|---|---|---|---|---|---|
| Date | Type | Book | Page | Price | Grantor | Grantee | |
|
5/6/1999 |
|
Deeds |
$45,000 |
DAVIS CLARENCE L JR REV |
COLLINS LOURDES S |
||
|
6/4/1993 |
|
Historical |
$23,000 |
THOMAS GLADYS O |
DAVIS CLARENCE L JR REV |
||
|
2/1/1976 |
|
Historical |
$0 |
|
THOMAS GLADYS O |
||
| Last Mailed Notice of Value (N.O.V.) Information/History | ||||||||
|---|---|---|---|---|---|---|---|---|
| Year | Date | Market Value | Taxable Market Value | Gross Assessed | Exemption | Net Assessed | ||
|
2026 |
02/23/2026 |
130,000 |
57,318 |
6,304 |
1,000 |
5,304 |
||
|
2025 |
02/14/2025 |
130,000 |
55,649 |
6,121 |
1,000 |
5,121 |
||
|
2024 |
02/13/2024 |
102,000 |
54,029 |
5,943 |
1,000 |
4,943 |
||
|
2023 |
02/14/2023 |
108,500 |
52,456 |
5,770 |
1,000 |
4,770 |
||
|
2022 |
03/15/2022 |
88,000 |
50,929 |
5,601 |
1,000 |
4,601 |
||
| Property Building Permit History | |||||||||||
|---|---|---|---|---|---|---|---|---|---|---|---|
| Issued | Permit # | Provided by | Bldg # | Description | Est Construction Cost | Status | |||||
| No Building Permit records returned. | |||||||||||
| Click button on building number to access detailed information: | ||||||
|---|---|---|---|---|---|---|
| Bldg # | Vacant/Improved Land | Bldg Description | Year Built | SqFt | # Stories | |
|
1 |
Improved |
Ranch 1 Story |
1959 |
1,235 |
1 Stories |
|