|
|
|
| Larry Stein Oklahoma County Assessor (405) 713-1200 - Public Access System |
|
|
|
|
|
|
| Real Property Display - Screen Produced 4/4/2026 3:01:02 AM | ||||
|---|---|---|---|---|
| Account: R154751065 | Type: Residential | Location: |
1302 ALAN LN |
|
| Building Name/Occupant: |
|
MIDWEST CITY |
||
| Owner Name 1: | AVID PROPERTIES LLC |
Parcel PIN#: |
2499-15-475-1065 |
|
| Owner Name 2: | 1/4 section #: |
2499 |
||
| Owner Name 3: | Parent Acct: |
|
||
| Billing Address: | PO BOX 45597 | Tax District: |
|
|
| City, State, Zip | TINKER AFB, OK 73145 | School System: |
Oklahoma City #89 |
|
|
Country: (If noted) |
Land Size: |
0.2669 Acres |
||
|
Land Value: 15,113 |
|
|||
|
Sect 25-T12N-R2W Qtr SW |
ASHFORD HGTS ADD
Block
001
Lot
007
|
|||
| Full Legal Description: ASHFORD HGTS ADD 001 007 |
| Photo & Sketch (if available) | Comp Sales (ordered by relevancy) |
|
||||||||||||||||||
|
||||||||||||||||||||
| Value History (*The County Treasurer 405-713-1300 posts & collects actual tax amounts. Contact information HERE) | |||||||||||||
|---|---|---|---|---|---|---|---|---|---|---|---|---|---|
| Year | Market Value | Taxable Mkt Value | Gross Assessed | Exemption | Net Assessed | Millage | Est. Tax | Tax Savings | |||||
|
2026 |
144,000 |
80,905 |
8,898 |
0 |
8,898 |
114.34 |
$1,018 |
$794 |
|||||
|
2025 |
141,000 |
77,053 |
8,475 |
0 |
8,475 |
114.34 |
$969 |
$804 |
|||||
|
2024 |
110,500 |
73,384 |
8,071 |
0 |
8,071 |
116.11 |
$937 |
$474 |
|||||
|
2023 |
116,500 |
69,890 |
7,687 |
0 |
7,687 |
115.66 |
$889 |
$593 |
|||||
|
2022 |
94,500 |
66,562 |
7,321 |
0 |
7,321 |
110.02 |
$806 |
$338 |
|||||
| Property Account Status/Adjustments/Exemptions | ||
|---|---|---|
| Account # | Exemption Description | Amount |
|
R154751065 |
5% Capped Account |
0 |
| Property Deed Transaction History (Recorded in the County Clerk's Office) | |||||||
|---|---|---|---|---|---|---|---|
| Date | Type | Book | Page | Price | Grantor | Grantee | |
|
4/13/2018 |
|
Deeds |
$0 |
RIGGS MICHAEL ALVIE SR & BAMBI LYNN |
RIGGS MICHAEL ALVIE SR |
||
|
4/12/2018 |
|
Deeds |
$60,000 |
RIGGS MICHAEL ALVIE SR |
AVID PROPERTIES LLC |
||
|
7/11/2013 |
|
Deeds |
$10,000 |
BERRYHILL CORA S |
RIGGS MICHAEL ALVIE SR & BAMBI LYNN |
||
|
4/1/1985 |
|
Historical |
$0 |
|
BERRYHILL CORA S |
||
| Last Mailed Notice of Value (N.O.V.) Information/History | ||||||||
|---|---|---|---|---|---|---|---|---|
| Year | Date | Market Value | Taxable Market Value | Gross Assessed | Exemption | Net Assessed | ||
|
2026 |
02/23/2026 |
144,000 |
80,905 |
8,898 |
0 |
8,898 |
||
|
2025 |
02/14/2025 |
141,000 |
77,053 |
8,475 |
0 |
8,475 |
||
|
2024 |
02/13/2024 |
110,500 |
73,384 |
8,071 |
0 |
8,071 |
||
|
2023 |
02/14/2023 |
116,500 |
69,890 |
7,687 |
0 |
7,687 |
||
|
2022 |
03/15/2022 |
94,500 |
66,562 |
7,321 |
0 |
7,321 |
||
| Property Building Permit History | |||||||||||
|---|---|---|---|---|---|---|---|---|---|---|---|
| Issued | Permit # | Provided by | Bldg # | Description | Est Construction Cost | Status | |||||
| No Building Permit records returned. | |||||||||||
| Click button on building number to access detailed information: | ||||||
|---|---|---|---|---|---|---|
| Bldg # | Vacant/Improved Land | Bldg Description | Year Built | SqFt | # Stories | |
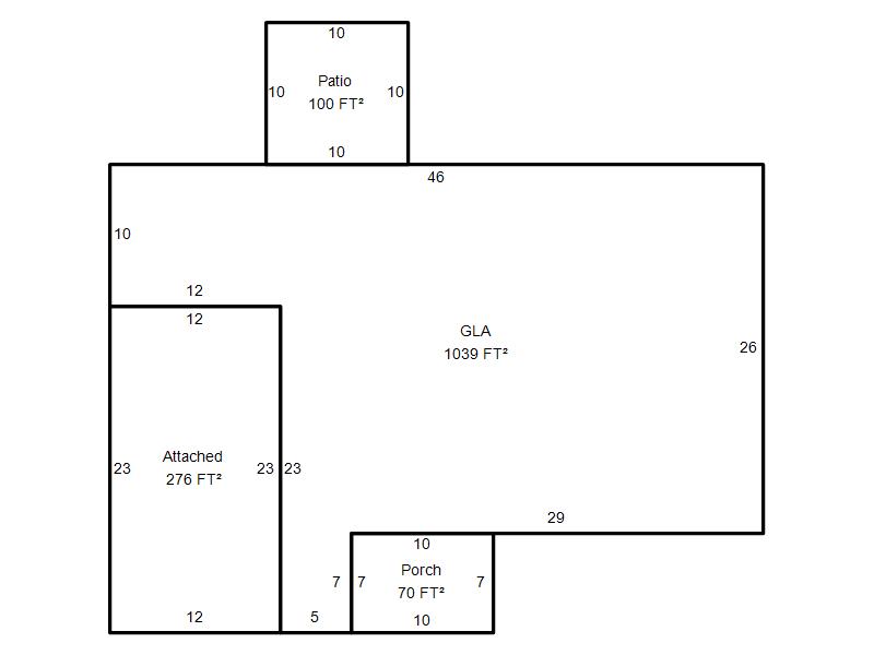
|
1 |
Improved |
Ranch 1 Story |
1960 |
1,039 |
1 Stories |
|