|
|
|
| Larry Stein Oklahoma County Assessor (405) 713-1200 - Public Access System |
|
|
|
|
|
|
| Real Property Display - Screen Produced 4/4/2026 3:02:27 AM | ||||
|---|---|---|---|---|
| Account: R154751085 | Type: Residential | Location: |
1220 ALAN LN |
|
| Building Name/Occupant: |
|
MIDWEST CITY |
||
| Owner Name 1: | MCDANIEL MARY ANN |
Parcel PIN#: |
2499-15-475-1085 |
|
| Owner Name 2: | BARRON MOSS LEE JR | 1/4 section #: |
2499 |
|
| Owner Name 3: | Parent Acct: |
|
||
| Billing Address: | 1220 ALAN LN | Tax District: |
|
|
| City, State, Zip | MIDWEST CITY, OK 73130-1306 | School System: |
Oklahoma City #89 |
|
|
Country: (If noted) |
Land Size: |
0.2491 Acres |
||
|
Land Value: 14,105 |
|
|||
|
Sect 25-T12N-R2W Qtr SW |
ASHFORD HGTS ADD
Block
001
Lot
000
|
|||
| Full Legal Description: ASHFORD HGTS ADD 001 000 LOT 9 EX S5FT |
| Photo & Sketch (if available) | Comp Sales (ordered by relevancy) |
|
||||||||||||||||||
|
||||||||||||||||||||
| Value History (*The County Treasurer 405-713-1300 posts & collects actual tax amounts. Contact information HERE) | |||||||||||||
|---|---|---|---|---|---|---|---|---|---|---|---|---|---|
| Year | Market Value | Taxable Mkt Value | Gross Assessed | Exemption | Net Assessed | Millage | Est. Tax | Tax Savings | |||||
|
2026 |
115,000 |
47,112 |
5,181 |
1,000 |
4,181 |
114.34 |
$478 |
$968 |
|||||
|
2025 |
114,000 |
45,740 |
5,030 |
1,000 |
4,030 |
114.34 |
$461 |
$973 |
|||||
|
2024 |
88,500 |
44,408 |
4,884 |
1,000 |
3,884 |
116.11 |
$451 |
$679 |
|||||
|
2023 |
93,000 |
43,115 |
4,742 |
1,000 |
3,742 |
115.66 |
$433 |
$750 |
|||||
|
2022 |
75,000 |
41,860 |
4,604 |
1,000 |
3,604 |
110.02 |
$397 |
$511 |
|||||
| Property Account Status/Adjustments/Exemptions | ||
|---|---|---|
| Account # | Exemption Description | Amount |
|
R154751085 |
Homestead |
1,000 |
|
R154751085 |
3% Cap Homestead |
0 |
| Property Deed Transaction History (Recorded in the County Clerk's Office) | |||||||
|---|---|---|---|---|---|---|---|
| Date | Type | Book | Page | Price | Grantor | Grantee | |
|
10/25/2023 |
|
Deeds |
$0 |
BARRON MARY ANN |
MCDANIEL MARY ANN |
||
|
10/4/2008 |
|
Hmstd Off & |
$0 |
BARRON WANDA J |
BARRON MARY ANN |
||
|
3/5/2002 |
|
Deeds |
$0 |
BARRON MOSS L & BILLIE FRANCES |
BARRON WANDA J |
||
|
12/1/1981 |
|
Historical |
$0 |
|
BARRON WANDA J |
||
| Last Mailed Notice of Value (N.O.V.) Information/History | ||||||||
|---|---|---|---|---|---|---|---|---|
| Year | Date | Market Value | Taxable Market Value | Gross Assessed | Exemption | Net Assessed | ||
|
2026 |
02/23/2026 |
115,000 |
47,112 |
5,181 |
1,000 |
4,181 |
||
|
2025 |
02/14/2025 |
114,000 |
45,740 |
5,030 |
1,000 |
4,030 |
||
|
2024 |
02/13/2024 |
88,500 |
44,408 |
4,884 |
1,000 |
3,884 |
||
|
2023 |
02/14/2023 |
93,000 |
43,115 |
4,742 |
1,000 |
3,742 |
||
|
2022 |
03/15/2022 |
75,000 |
41,860 |
4,604 |
1,000 |
3,604 |
||
| Property Building Permit History | |||||||||||
|---|---|---|---|---|---|---|---|---|---|---|---|
| Issued | Permit # | Provided by | Bldg # | Description | Est Construction Cost | Status | |||||
| No Building Permit records returned. | |||||||||||
| Click button on building number to access detailed information: | ||||||
|---|---|---|---|---|---|---|
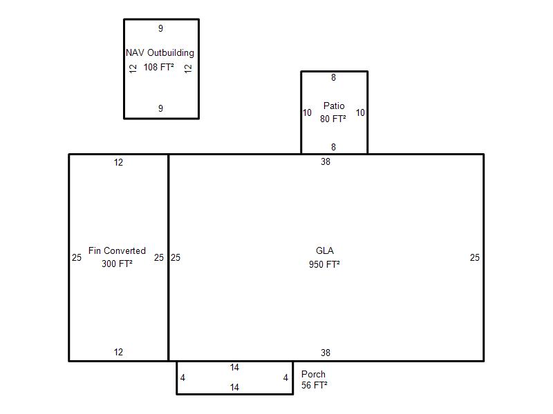
| Bldg # | Vacant/Improved Land | Bldg Description | Year Built | SqFt | # Stories | |
|
1 |
Improved |
Ranch 1 Story |
1961 |
950 |
1 Stories |
|