|
|
|
| Larry Stein Oklahoma County Assessor (405) 713-1200 - Public Access System |
|
|
|
|
|
|
| Real Property Display - Screen Produced 4/4/2026 3:02:27 AM | ||||
|---|---|---|---|---|
| Account: R154751095 | Type: Residential | Location: |
1216 ALAN LN |
|
| Building Name/Occupant: |
|
MIDWEST CITY |
||
| Owner Name 1: | PARKER WENFORD LEE & WILLIE MAE REV LIV TRUST |
Parcel PIN#: |
2499-15-475-1095 |
|
| Owner Name 2: | 1/4 section #: |
2499 |
||
| Owner Name 3: | Parent Acct: |
|
||
| Billing Address: | 1216 ALAN LN | Tax District: |
|
|
| City, State, Zip | MIDWEST CITY, OK 73130-1306 | School System: |
Oklahoma City #89 |
|
|
Country: (If noted) |
Land Size: |
0.2847 Acres |
||
|
Land Value: 16,120 |
|
|||
|
Sect 25-T12N-R2W Qtr SW |
ASHFORD HGTS ADD
Block
001
Lot
000
|
|||
| Full Legal Description: ASHFORD HGTS ADD 001 000 S5FT LOT 9 PLUS ALL LOT 10 |
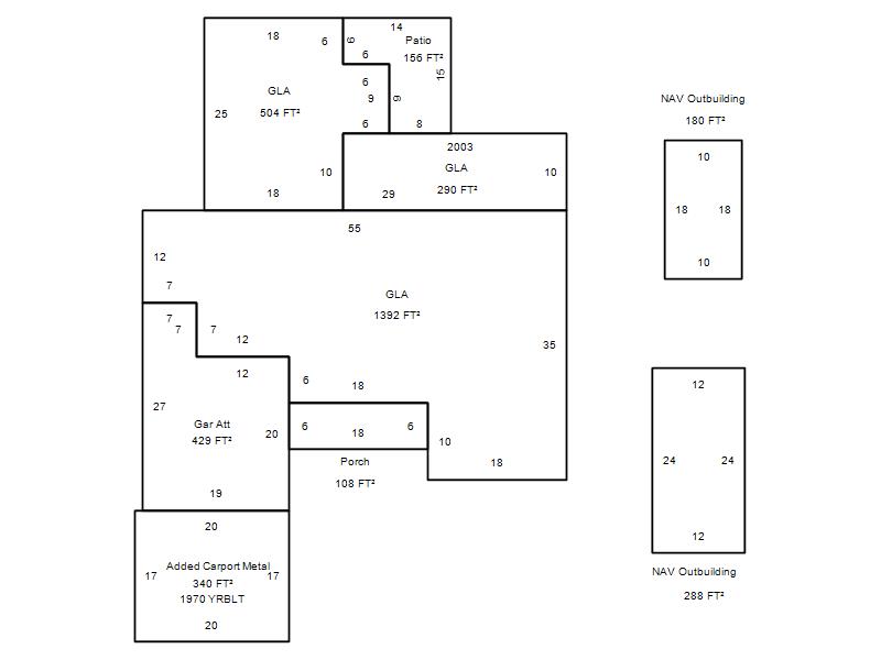
| Photo & Sketch (if available) | Comp Sales (ordered by relevancy) |
|
||||||||||||||||||
|
||||||||||||||||||||
| Value History (*The County Treasurer 405-713-1300 posts & collects actual tax amounts. Contact information HERE) | |||||||||||||
|---|---|---|---|---|---|---|---|---|---|---|---|---|---|
| Year | Market Value | Taxable Mkt Value | Gross Assessed | Exemption | Net Assessed | Millage | Est. Tax | Tax Savings | |||||
|
2026 |
201,000 |
97,630 |
10,738 |
0 |
10,738 |
114.34 |
$1,228 |
$1,300 |
|||||
|
2025 |
201,500 |
92,981 |
10,227 |
0 |
10,227 |
114.34 |
$1,169 |
$1,365 |
|||||
|
2024 |
159,000 |
88,554 |
9,740 |
0 |
9,740 |
116.11 |
$1,131 |
$900 |
|||||
|
2023 |
169,500 |
84,338 |
9,276 |
0 |
9,276 |
115.66 |
$1,073 |
$1,083 |
|||||
|
2022 |
138,000 |
80,322 |
8,834 |
0 |
8,834 |
110.02 |
$972 |
$698 |
|||||
| Property Account Status/Adjustments/Exemptions | ||
|---|---|---|
| Account # | Exemption Description | Amount |
|
R154751095 |
5% Capped Account |
0 |
| Property Deed Transaction History (Recorded in the County Clerk's Office) | |||||||
|---|---|---|---|---|---|---|---|
| Date | Type | Book | Page | Price | Grantor | Grantee | |
|
1/7/2026 |
|
Hmstd Off & |
$0 |
FEDERAL NATIONAL MORTGAGE ASSOCIATION |
PARKER WENFORD LEE & WILLIE MAE REV LIV TRUST |
||
|
5/28/2013 |
|
Deeds |
$40,000 |
PARKER WENFORD LEE & WILLIE MAE TRS PARKER WENFORD LEE & WIL |
FEDERAL NATIONAL MORTGAGE ASSOCIATION |
||
|
1/18/2006 |
|
Deeds |
$0 |
PARKER WENFORD & WILLIE |
PARKER WENFORD L & WILLIE M TRS PARKER WENFORD & WILLIE REV |
||
|
4/21/1994 |
|
Historical |
$0 |
PARKER WENEFORD L E & BESSIE L |
PARKER WENEFORD L E & WILLIE M |
||
|
9/1/1985 |
|
Historical |
$65,000 |
|
PARKER WENEFORD L E & BESSIE L |
||
| Last Mailed Notice of Value (N.O.V.) Information/History | ||||||||
|---|---|---|---|---|---|---|---|---|
| Year | Date | Market Value | Taxable Market Value | Gross Assessed | Exemption | Net Assessed | ||
|
2026 |
02/23/2026 |
201,000 |
97,630 |
10,738 |
0 |
10,738 |
||
|
2026 |
03/30/2026 |
201,000 |
97,630 |
10,738 |
0 |
10,738 |
||
|
2025 |
02/14/2025 |
201,500 |
92,981 |
10,227 |
0 |
10,227 |
||
|
2024 |
02/13/2024 |
159,000 |
88,554 |
9,740 |
0 |
9,740 |
||
|
2023 |
02/14/2023 |
169,500 |
84,338 |
9,276 |
0 |
9,276 |
||
| Property Building Permit History | |||||||||||
|---|---|---|---|---|---|---|---|---|---|---|---|
| Issued | Permit # | Provided by | Bldg # | Description | Est Construction Cost | Status | |||||
| No Building Permit records returned. | |||||||||||
| Click button on building number to access detailed information: | ||||||
|---|---|---|---|---|---|---|
| Bldg # | Vacant/Improved Land | Bldg Description | Year Built | SqFt | # Stories | |
|
1 |
Improved |
Ranch 1 Story |
1958 |
2,186 |
1 Stories |
|