|
|
|
| Larry Stein Oklahoma County Assessor (405) 713-1200 - Public Access System |
|
|
|
|
|
|
| Real Property Display - Screen Produced 4/4/2026 3:01:03 AM | ||||
|---|---|---|---|---|
| Account: R154751145 | Type: Residential | Location: |
9412 NE 11TH ST |
|
| Building Name/Occupant: |
|
MIDWEST CITY |
||
| Owner Name 1: | TEAL ANDREW C |
Parcel PIN#: |
2499-15-475-1145 |
|
| Owner Name 2: | 1/4 section #: |
2499 |
||
| Owner Name 3: | Parent Acct: |
|
||
| Billing Address: | 9412 NE 11TH ST | Tax District: |
|
|
| City, State, Zip | OKLAHOMA CITY, OK 73130-1304 | School System: |
Oklahoma City #89 |
|
|
Country: (If noted) |
Land Size: |
0.2640 Acres |
||
|
Land Value: 14,950 |
|
|||
|
Sect 25-T12N-R2W Qtr SW |
ASHFORD HGTS ADD
Block
001
Lot
015
|
|||
| Full Legal Description: ASHFORD HGTS ADD 001 015 |
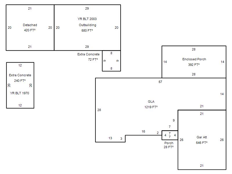
| Photo & Sketch (if available) | Comp Sales (ordered by relevancy) |
|
||||||||||||||||||
|
||||||||||||||||||||
| Value History (*The County Treasurer 405-713-1300 posts & collects actual tax amounts. Contact information HERE) | |||||||||||||
|---|---|---|---|---|---|---|---|---|---|---|---|---|---|
| Year | Market Value | Taxable Mkt Value | Gross Assessed | Exemption | Net Assessed | Millage | Est. Tax | Tax Savings | |||||
|
2026 |
149,000 |
67,033 |
7,372 |
1,000 |
6,372 |
114.34 |
$729 |
$1,145 |
|||||
|
2025 |
150,000 |
65,081 |
7,158 |
1,000 |
6,158 |
114.34 |
$704 |
$1,182 |
|||||
|
2024 |
116,500 |
63,186 |
6,950 |
1,000 |
5,950 |
116.11 |
$691 |
$797 |
|||||
|
2023 |
122,500 |
61,346 |
6,747 |
1,000 |
5,747 |
115.66 |
$665 |
$894 |
|||||
|
2022 |
102,000 |
59,560 |
6,550 |
1,000 |
5,550 |
110.02 |
$611 |
$624 |
|||||
| Property Account Status/Adjustments/Exemptions | ||
|---|---|---|
| Account # | Exemption Description | Amount |
|
R154751145 |
3% Cap Homestead |
0 |
|
R154751145 |
Homestead |
1,000 |
| Property Deed Transaction History (Recorded in the County Clerk's Office) | |||||||
|---|---|---|---|---|---|---|---|
| Date | Type | Book | Page | Price | Grantor | Grantee | |
|
12/22/1997 |
|
Historical |
$59,000 |
LGW INC |
TEAL ANDREW C |
||
|
6/20/1997 |
|
Historical |
$45,000 |
CLINE D B & F D |
LGW INC |
||
|
11/11/1911 |
|
Historical |
$0 |
|
CLINE D B & F D |
||
| Last Mailed Notice of Value (N.O.V.) Information/History | ||||||||
|---|---|---|---|---|---|---|---|---|
| Year | Date | Market Value | Taxable Market Value | Gross Assessed | Exemption | Net Assessed | ||
|
2026 |
02/23/2026 |
149,000 |
67,033 |
7,372 |
1,000 |
6,372 |
||
|
2025 |
02/14/2025 |
150,000 |
65,081 |
7,158 |
1,000 |
6,158 |
||
|
2024 |
02/13/2024 |
116,500 |
63,186 |
6,950 |
1,000 |
5,950 |
||
|
2023 |
02/14/2023 |
122,500 |
61,346 |
6,747 |
1,000 |
5,747 |
||
|
2022 |
03/15/2022 |
102,000 |
59,560 |
6,550 |
1,000 |
5,550 |
||
| Property Building Permit History | ||||||
|---|---|---|---|---|---|---|
| Issued | Permit # | Provided by | Bldg # | Description | Est Construction Cost | Status |
|
1/27/2003 |
10251218 |
MIDWEST CITY |
1 |
Garage |
3,000 |
Inactive |
| Click button on building number to access detailed information: | ||||||
|---|---|---|---|---|---|---|
| Bldg # | Vacant/Improved Land | Bldg Description | Year Built | SqFt | # Stories | |
|
1 |
Improved |
Ranch 1 Story |
1958 |
1,219 |
1 Stories |
|