|
|
|
| Larry Stein Oklahoma County Assessor (405) 713-1200 - Public Access System |
|
|
|
|
|
|
| Real Property Display - Screen Produced 4/4/2026 3:02:27 AM | ||||
|---|---|---|---|---|
| Account: R154751355 | Type: Residential | Location: |
9408 NE 13TH ST |
|
| Building Name/Occupant: |
|
MIDWEST CITY |
||
| Owner Name 1: | TRAN HUYNH |
Parcel PIN#: |
2499-15-475-1355 |
|
| Owner Name 2: | 1/4 section #: |
2499 |
||
| Owner Name 3: | Parent Acct: |
|
||
| Billing Address: | 9408 NE 13TH ST | Tax District: |
|
|
| City, State, Zip | MIDWEST CITY, OK 73130-1212 | School System: |
Oklahoma City #89 |
|
|
Country: (If noted) |
Land Size: |
0.2531 Acres |
||
|
Land Value: 14,333 |
|
|||
|
Sect 25-T12N-R2W Qtr SW |
ASHFORD HGTS ADD
Block
003
Lot
006
|
|||
| Full Legal Description: ASHFORD HGTS ADD 003 006 |
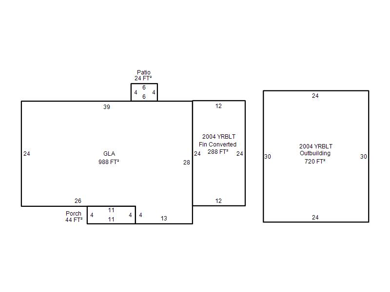
| Photo & Sketch (if available) | Comp Sales (ordered by relevancy) |
|
||||||||||||||||||
|
||||||||||||||||||||
| Value History (*The County Treasurer 405-713-1300 posts & collects actual tax amounts. Contact information HERE) | |||||||||||||
|---|---|---|---|---|---|---|---|---|---|---|---|---|---|
| Year | Market Value | Taxable Mkt Value | Gross Assessed | Exemption | Net Assessed | Millage | Est. Tax | Tax Savings | |||||
|
2026 |
127,000 |
108,596 |
11,944 |
0 |
11,944 |
114.34 |
$1,366 |
$231 |
|||||
|
2025 |
125,500 |
103,425 |
11,376 |
0 |
11,376 |
114.34 |
$1,301 |
$278 |
|||||
|
2024 |
98,500 |
98,500 |
10,835 |
0 |
10,835 |
116.11 |
$1,258 |
$0 |
|||||
|
2023 |
101,000 |
56,067 |
6,166 |
0 |
6,166 |
115.66 |
$713 |
$572 |
|||||
|
2022 |
82,000 |
53,398 |
5,872 |
0 |
5,872 |
110.02 |
$646 |
$346 |
|||||
| Property Account Status/Adjustments/Exemptions | ||
|---|---|---|
| Account # | Exemption Description | Amount |
|
R154751355 |
5% Capped Account |
0 |
| Property Deed Transaction History (Recorded in the County Clerk's Office) | ||||||||||
|---|---|---|---|---|---|---|---|---|---|---|
| Date | Type | Book | Page | Price | Grantor | Grantee | ||||
|
1/27/2026 |
|
Hmstd Off & |
$0 |
TRAN LABETTA |
TRAN HUYNH |
|||||
|
3/28/2023 |
|
Other |
$0 |
TRAN HANH |
TRAN LABETTA |
|||||
|
6/15/2015 |
|
Hmstd Off & |
$0 |
TRAN HOA VAN & LABETTA TRAN HANH THI AI |
TRAN HANH |
|||||
|
5/3/2011 |
|
Deeds |
$7,000 |
DINH CUONG PHAM BETTY |
TRAN HOA VAN & LABETTA TRAN HANH THI AI |
|||||
|
6/24/2009 |
|
Deeds |
$5,000 |
GILDON LLOYD JR GILDON TASHANNA |
DINH CUONG PHAM BETTY |
|||||
| Last Mailed Notice of Value (N.O.V.) Information/History | ||||||||
|---|---|---|---|---|---|---|---|---|
| Year | Date | Market Value | Taxable Market Value | Gross Assessed | Exemption | Net Assessed | ||
|
2026 |
02/23/2026 |
127,000 |
108,596 |
11,944 |
0 |
11,944 |
||
|
2026 |
03/30/2026 |
127,000 |
108,596 |
11,944 |
0 |
11,944 |
||
|
2025 |
02/14/2025 |
125,500 |
103,425 |
11,376 |
0 |
11,376 |
||
|
2024 |
02/13/2024 |
98,500 |
98,500 |
10,835 |
0 |
10,835 |
||
|
2023 |
02/14/2023 |
101,000 |
56,067 |
6,166 |
0 |
6,166 |
||
| Property Building Permit History | ||||||
|---|---|---|---|---|---|---|
| Issued | Permit # | Provided by | Bldg # | Description | Est Construction Cost | Status |
|
9/4/2003 |
10284141 |
MIDWEST CITY |
1 |
Main Dwellin |
3,500 |
Inactive |
| Click button on building number to access detailed information: | ||||||
|---|---|---|---|---|---|---|
| Bldg # | Vacant/Improved Land | Bldg Description | Year Built | SqFt | # Stories | |
|
1 |
Improved |
Ranch 1 Story |
1959 |
988 |
1 Stories |
|