|
|
|
| Larry Stein Oklahoma County Assessor (405) 713-1200 - Public Access System |
|
|
|
|
|
|
| Real Property Display - Screen Produced 4/4/2026 3:01:03 AM | ||||
|---|---|---|---|---|
| Account: R154751395 | Type: Residential | Location: |
9316 NE 13TH ST |
|
| Building Name/Occupant: |
|
MIDWEST CITY |
||
| Owner Name 1: | JOHNSON WALTER & BETTIE |
Parcel PIN#: |
2499-15-475-1395 |
|
| Owner Name 2: | 1/4 section #: |
2499 |
||
| Owner Name 3: | Parent Acct: |
|
||
| Billing Address: | 9316 NE 13TH ST | Tax District: |
|
|
| City, State, Zip | MIDWEST CITY, OK 73130-1210 | School System: |
Oklahoma City #89 |
|
|
Country: (If noted) |
Land Size: |
0.2531 Acres |
||
|
Land Value: 14,333 |
|
|||
|
Sect 25-T12N-R2W Qtr SW |
ASHFORD HGTS ADD
Block
003
Lot
010
|
|||
| Full Legal Description: ASHFORD HGTS ADD 003 010 |
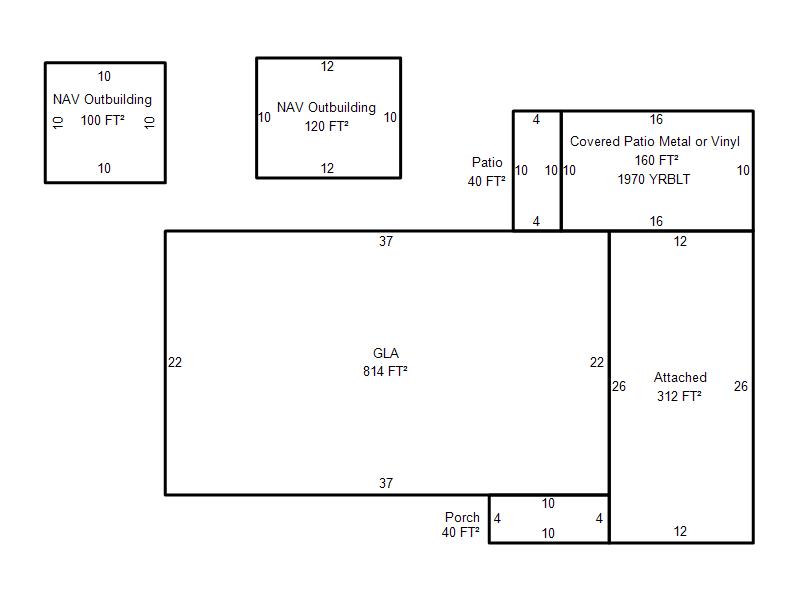
| Photo & Sketch (if available) | Comp Sales (ordered by relevancy) |
|
||||||||||||||||||
|
||||||||||||||||||||
| Value History (*The County Treasurer 405-713-1300 posts & collects actual tax amounts. Contact information HERE) | |||||||||||||
|---|---|---|---|---|---|---|---|---|---|---|---|---|---|
| Year | Market Value | Taxable Mkt Value | Gross Assessed | Exemption | Net Assessed | Millage | Est. Tax | Tax Savings | |||||
|
2026 |
93,500 |
42,722 |
4,699 |
2,000 |
2,699 |
114.34 |
$309 |
$867 |
|||||
|
2025 |
92,500 |
42,722 |
4,699 |
2,000 |
2,699 |
114.34 |
$309 |
$855 |
|||||
|
2024 |
72,500 |
42,722 |
4,699 |
2,000 |
2,699 |
116.11 |
$313 |
$613 |
|||||
|
2023 |
76,000 |
42,722 |
4,698 |
2,000 |
2,698 |
115.66 |
$312 |
$655 |
|||||
|
2022 |
62,000 |
41,478 |
4,561 |
0 |
4,561 |
110.02 |
$502 |
$248 |
|||||
| Property Account Status/Adjustments/Exemptions | ||
|---|---|---|
| Account # | Exemption Description | Amount |
|
R154751395 |
Freeze Senior Valuation |
0 |
|
R154751395 |
Homestead |
1,000 |
|
R154751395 |
Senior Additional Homestead |
1,000 |
|
R154751395 |
3% Cap Homestead |
0 |
| Property Deed Transaction History (Recorded in the County Clerk's Office) | ||||||||||
|---|---|---|---|---|---|---|---|---|---|---|
| Date | Type | Book | Page | Price | Grantor | Grantee | ||||
|
2/13/2012 |
|
Deeds |
$27,000 |
FEDERAL NATIONAL MORTGAGE ASSOCIATION |
JOHNSON WALTER & BETTY |
|||||
|
2/13/2012 |
|
Deeds |
$0 |
JOHNSON WALTER & BETTY |
JOHNSON WALTER & BETTIE |
|||||
|
9/12/2011 |
|
Hmstd Off & |
$0 |
SINNETT PAULA SINNETT KEVIN |
FEDERAL NATIONAL MORTGAGE ASSOCIATION |
|||||
|
3/20/2003 |
|
Other |
$0 |
BENNETT LYNN & PEGGY TRS BENNETT LYNN & PEGGY TRUST |
SINNETT PAULA SINNETT KEVIN |
|||||
|
12/13/1995 |
|
Historical |
$0 |
BENNETT LYNN & PEGGY |
BENNETT LYNN & PEGGY TRS |
|||||
| Last Mailed Notice of Value (N.O.V.) Information/History | ||||||||
|---|---|---|---|---|---|---|---|---|
| Year | Date | Market Value | Taxable Market Value | Gross Assessed | Exemption | Net Assessed | ||
|
2026 |
02/23/2026 |
93,500 |
42,722 |
4,699 |
2,000 |
2,699 |
||
|
2025 |
02/14/2025 |
92,500 |
42,722 |
4,699 |
2,000 |
2,699 |
||
|
2023 |
02/14/2023 |
76,000 |
42,722 |
4,698 |
2,000 |
2,698 |
||
|
2022 |
03/15/2022 |
62,000 |
41,478 |
4,561 |
0 |
4,561 |
||
|
2021 |
03/19/2021 |
48,500 |
39,503 |
4,345 |
0 |
4,345 |
||
| Property Building Permit History | ||||||
|---|---|---|---|---|---|---|
| Issued | Permit # | Provided by | Bldg # | Description | Est Construction Cost | Status |
|
1/15/1999 |
10251224 |
MIDWEST CITY |
1 |
Storage Buil |
5,000 |
Inactive |
| Click button on building number to access detailed information: | ||||||
|---|---|---|---|---|---|---|
| Bldg # | Vacant/Improved Land | Bldg Description | Year Built | SqFt | # Stories | |
|
1 |
Improved |
Ranch 1 Story |
1955 |
814 |
1 Stories |
|