|
|
|
| Larry Stein Oklahoma County Assessor (405) 713-1200 - Public Access System |
|
|
|
|
|
|
| Real Property Display - Screen Produced 4/4/2026 3:02:27 AM | ||||
|---|---|---|---|---|
| Account: R154751425 | Type: Residential | Location: |
1312 MARYDALE AVE |
|
| Building Name/Occupant: |
|
MIDWEST CITY |
||
| Owner Name 1: | LMRK OWNER I LLC |
Parcel PIN#: |
2499-15-475-1425 |
|
| Owner Name 2: | 1/4 section #: |
2499 |
||
| Owner Name 3: | Parent Acct: |
|
||
| Billing Address: | 345 HERITAGE AVE, Unit 130 | Tax District: |
|
|
| City, State, Zip | PORTSMOUTH, NH 03802-3809 | School System: |
Oklahoma City #89 |
|
|
Country: (If noted) |
Land Size: |
0.2652 Acres |
||
|
Land Value: 15,015 |
|
|||
|
Sect 25-T12N-R2W Qtr SW |
ASHFORD HGTS ADD
Block
003
Lot
013
|
|||
| Full Legal Description: ASHFORD HGTS ADD 003 013 |
| Photo & Sketch (if available) | Comp Sales (ordered by relevancy) |
|
||||||||||||||||||
|
||||||||||||||||||||
| Value History (*The County Treasurer 405-713-1300 posts & collects actual tax amounts. Contact information HERE) | |||||||||||||
|---|---|---|---|---|---|---|---|---|---|---|---|---|---|
| Year | Market Value | Taxable Mkt Value | Gross Assessed | Exemption | Net Assessed | Millage | Est. Tax | Tax Savings | |||||
|
2026 |
145,000 |
145,000 |
15,950 |
0 |
15,950 |
114.34 |
$1,824 |
$0 |
|||||
|
2025 |
141,500 |
141,500 |
15,565 |
0 |
15,565 |
114.34 |
$1,780 |
$0 |
|||||
|
2024 |
112,000 |
103,028 |
11,332 |
0 |
11,332 |
116.11 |
$1,316 |
$115 |
|||||
|
2023 |
118,000 |
98,122 |
10,792 |
0 |
10,792 |
115.66 |
$1,248 |
$253 |
|||||
|
2022 |
96,500 |
93,450 |
10,279 |
0 |
10,279 |
110.02 |
$1,131 |
$37 |
|||||
| Property Account Status/Adjustments/Exemptions | ||
|---|---|---|
| Account # | Exemption Description | Amount |
|
R154751425 |
5% Capped Account |
0 |
| Property Deed Transaction History (Recorded in the County Clerk's Office) | ||||||||||
|---|---|---|---|---|---|---|---|---|---|---|
| Date | Type | Book | Page | Price | Grantor | Grantee | ||||
|
11/12/2025 |
|
Hmstd Off & |
$0 |
TH PROPERTY OWNER I LLC |
LMRK OWNER I LLC |
|||||
|
5/9/2024 |
|
Deeds |
$140,500 |
MONTEZ JULIE JOAN |
TH PROPERTY OWNER I LLC |
|||||
|
6/18/2020 |
|
Deeds |
$90,000 |
DE HOLDINGS LLC |
MONTEZ JULIE JOAN |
|||||
|
2/22/2018 |
|
Deeds |
$52,500 |
FEDERAL NATIONAL MORTGAGE ASSOCIATION |
DE HOLDINGS LLC |
|||||
|
6/15/2017 |
|
Hmstd Off & |
$0 |
PETERS KERRI |
FEDERAL NATIONAL MORTGAGE ASSOCIATION |
|||||
| Last Mailed Notice of Value (N.O.V.) Information/History | ||||||||
|---|---|---|---|---|---|---|---|---|
| Year | Date | Market Value | Taxable Market Value | Gross Assessed | Exemption | Net Assessed | ||
|
2026 |
02/23/2026 |
145,000 |
145,000 |
15,950 |
0 |
15,950 |
||
|
2025 |
02/14/2025 |
141,500 |
141,500 |
15,565 |
0 |
15,565 |
||
|
2024 |
02/13/2024 |
112,000 |
103,028 |
11,332 |
0 |
11,332 |
||
|
2023 |
02/14/2023 |
118,000 |
98,122 |
10,792 |
0 |
10,792 |
||
|
2022 |
03/15/2022 |
96,500 |
93,450 |
10,279 |
0 |
10,279 |
||
| Property Building Permit History | |||||||||||
|---|---|---|---|---|---|---|---|---|---|---|---|
| Issued | Permit # | Provided by | Bldg # | Description | Est Construction Cost | Status | |||||
| No Building Permit records returned. | |||||||||||
| Click button on building number to access detailed information: | ||||||
|---|---|---|---|---|---|---|
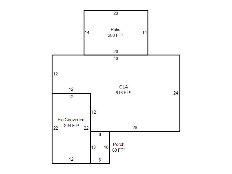
| Bldg # | Vacant/Improved Land | Bldg Description | Year Built | SqFt | # Stories | |
|
1 |
Improved |
Ranch 1 Story |
1955 |
816 |
1 Stories |
|