|
|
|
| Larry Stein Oklahoma County Assessor (405) 713-1200 - Public Access System |
|
|
|
|
|
|
| Real Property Display - Screen Produced 4/4/2026 3:02:27 AM | ||||
|---|---|---|---|---|
| Account: R154751545 | Type: Residential | Location: |
1217 ALAN LN |
|
| Building Name/Occupant: |
|
MIDWEST CITY |
||
| Owner Name 1: | MATTHEWS QUINISHA SURNELL |
Parcel PIN#: |
2499-15-475-1545 |
|
| Owner Name 2: | 1/4 section #: |
2499 |
||
| Owner Name 3: | Parent Acct: |
|
||
| Billing Address: | 1217 ALAN LN | Tax District: |
|
|
| City, State, Zip | MIDWEST CITY, OK 73130 | School System: |
Oklahoma City #89 |
|
|
Country: (If noted) |
Land Size: |
0.4890 Acres |
||
|
Land Value: 27,690 |
|
|||
|
Sect 25-T12N-R2W Qtr SW |
ASHFORD HGTS ADD
Block
004
Lot
000
|
|||
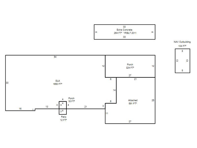
| Full Legal Description: ASHFORD HGTS ADD 004 000 ALL LOT 1 & N65FT OF LOT 2 |
| Photo & Sketch (if available) | Comp Sales (ordered by relevancy) |
|
||||||||||||||||||
|
||||||||||||||||||||
| Value History (*The County Treasurer 405-713-1300 posts & collects actual tax amounts. Contact information HERE) | |||||||||||||
|---|---|---|---|---|---|---|---|---|---|---|---|---|---|
| Year | Market Value | Taxable Mkt Value | Gross Assessed | Exemption | Net Assessed | Millage | Est. Tax | Tax Savings | |||||
|
2026 |
160,500 |
135,795 |
14,937 |
1,000 |
13,937 |
114.34 |
$1,594 |
$425 |
|||||
|
2025 |
161,500 |
131,840 |
14,502 |
1,000 |
13,502 |
114.34 |
$1,544 |
$487 |
|||||
|
2024 |
128,000 |
128,000 |
14,080 |
1,000 |
13,080 |
116.11 |
$1,519 |
$116 |
|||||
|
2023 |
137,000 |
137,000 |
15,070 |
0 |
15,070 |
115.66 |
$1,743 |
$0 |
|||||
|
2022 |
136,000 |
136,000 |
14,960 |
0 |
14,960 |
110.02 |
$1,646 |
$0 |
|||||
| Property Account Status/Adjustments/Exemptions | ||
|---|---|---|
| Account # | Exemption Description | Amount |
|
R154751545 |
Homestead |
1,000 |
|
R154751545 |
3% Cap Homestead |
0 |
| Property Deed Transaction History (Recorded in the County Clerk's Office) | |||||||
|---|---|---|---|---|---|---|---|
| Date | Type | Book | Page | Price | Grantor | Grantee | |
|
11/30/2021 |
|
Deeds |
$140,000 |
CUMMINGS RONALD E & NANETTE |
MATTHEWS QUINISHA SURNELL |
||
|
8/15/2016 |
|
Deeds |
$0 |
CUMMINGS RONALD E |
CUMMINGS RONALD E & NANETTE |
||
|
4/27/1995 |
|
Historical |
$50,000 |
HUTCHINS JAUNITA |
CUMMINGS RONALD E |
||
|
12/1/1982 |
|
Historical |
$0 |
|
HUTCHINS JAUNITA |
||
| Last Mailed Notice of Value (N.O.V.) Information/History | ||||||||
|---|---|---|---|---|---|---|---|---|
| Year | Date | Market Value | Taxable Market Value | Gross Assessed | Exemption | Net Assessed | ||
|
2026 |
02/23/2026 |
160,500 |
135,795 |
14,937 |
1,000 |
13,937 |
||
|
2025 |
02/14/2025 |
161,500 |
131,840 |
14,502 |
1,000 |
13,502 |
||
|
2023 |
02/14/2023 |
137,000 |
137,000 |
15,070 |
0 |
15,070 |
||
|
2022 |
03/15/2022 |
136,000 |
136,000 |
14,960 |
0 |
14,960 |
||
|
2021 |
03/19/2021 |
87,000 |
68,990 |
7,588 |
1,000 |
6,588 |
||
| Property Building Permit History | |||||||||||
|---|---|---|---|---|---|---|---|---|---|---|---|
| Issued | Permit # | Provided by | Bldg # | Description | Est Construction Cost | Status | |||||
| No Building Permit records returned. | |||||||||||
| Click button on building number to access detailed information: | ||||||
|---|---|---|---|---|---|---|
| Bldg # | Vacant/Improved Land | Bldg Description | Year Built | SqFt | # Stories | |
|
1 |
Improved |
Ranch 1 Story |
1959 |
1,650 |
1 Stories |
|