|
|
|
| Larry Stein Oklahoma County Assessor (405) 713-1200 - Public Access System |
|
|
|
|
|
|
| Real Property Display - Screen Produced 4/4/2026 3:01:03 AM | ||||
|---|---|---|---|---|
| Account: R154751695 | Type: Residential | Location: |
9301 NE 11TH ST |
|
| Building Name/Occupant: |
|
MIDWEST CITY |
||
| Owner Name 1: | MAISON BELLE PROPERTIES LLC |
Parcel PIN#: |
2499-15-475-1695 |
|
| Owner Name 2: | 1/4 section #: |
2499 |
||
| Owner Name 3: | Parent Acct: |
|
||
| Billing Address: | 8809 RIDGEVIEW DR | Tax District: |
|
|
| City, State, Zip | NEWALLA, OK 74857-9441 | School System: |
Oklahoma City #89 |
|
|
Country: (If noted) |
Land Size: |
0.2652 Acres |
||
|
Land Value: 15,015 |
|
|||
|
Sect 25-T12N-R2W Qtr SW |
ASHFORD HGTS ADD
Block
004
Lot
016
|
|||
| Full Legal Description: ASHFORD HGTS ADD 004 016 |
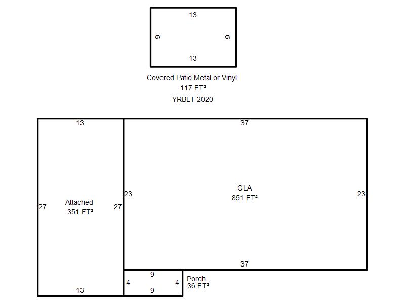
| Photo & Sketch (if available) | Comp Sales (ordered by relevancy) |
|
||||||||||||||||||
|
||||||||||||||||||||
| Value History (*The County Treasurer 405-713-1300 posts & collects actual tax amounts. Contact information HERE) | |||||||||||||
|---|---|---|---|---|---|---|---|---|---|---|---|---|---|
| Year | Market Value | Taxable Mkt Value | Gross Assessed | Exemption | Net Assessed | Millage | Est. Tax | Tax Savings | |||||
|
2026 |
86,000 |
47,115 |
5,181 |
0 |
5,181 |
114.34 |
$593 |
$489 |
|||||
|
2025 |
85,500 |
44,872 |
4,935 |
0 |
4,935 |
114.34 |
$564 |
$511 |
|||||
|
2024 |
67,000 |
42,736 |
4,700 |
0 |
4,700 |
116.11 |
$546 |
$310 |
|||||
|
2023 |
70,500 |
40,701 |
4,476 |
0 |
4,476 |
115.66 |
$518 |
$379 |
|||||
|
2022 |
57,000 |
38,287 |
4,211 |
0 |
4,211 |
110.02 |
$463 |
$226 |
|||||
| Property Account Status/Adjustments/Exemptions | ||
|---|---|---|
| Account # | Exemption Description | Amount |
|
R154751695 |
5% Capped Account |
0 |
| Property Deed Transaction History (Recorded in the County Clerk's Office) | |||||||
|---|---|---|---|---|---|---|---|
| Date | Type | Book | Page | Price | Grantor | Grantee | |
|
4/8/2016 |
|
Hmstd Off & |
$0 |
MANN ALAN MITCHELL |
MAISON BELLE PROPERTIES LLC |
||
|
3/18/2004 |
|
Deeds |
$43,000 |
WHITE CHARLES H |
MANN ALAN MITCHELL |
||
|
8/18/1994 |
|
Historical |
$0 |
WHITE CHARLES HENRY |
WHITE CHARLES H |
||
|
6/16/1987 |
|
Historical |
$0 |
WHITE CHARLES H |
WHITE CHARLES HENRY |
||
|
5/1/1973 |
|
Historical |
$0 |
|
WHITE CHARLES H |
||
| Last Mailed Notice of Value (N.O.V.) Information/History | ||||||||
|---|---|---|---|---|---|---|---|---|
| Year | Date | Market Value | Taxable Market Value | Gross Assessed | Exemption | Net Assessed | ||
|
2026 |
02/23/2026 |
86,000 |
47,115 |
5,181 |
0 |
5,181 |
||
|
2025 |
02/14/2025 |
85,500 |
44,872 |
4,935 |
0 |
4,935 |
||
|
2024 |
02/13/2024 |
67,000 |
42,736 |
4,700 |
0 |
4,700 |
||
|
2023 |
03/02/2023 |
70,500 |
40,701 |
4,476 |
0 |
4,476 |
||
|
2022 |
03/15/2022 |
57,000 |
38,287 |
4,211 |
0 |
4,211 |
||
| Property Building Permit History | |||||||||||
|---|---|---|---|---|---|---|---|---|---|---|---|
| Issued | Permit # | Provided by | Bldg # | Description | Est Construction Cost | Status | |||||
| No Building Permit records returned. | |||||||||||
| Click button on building number to access detailed information: | ||||||
|---|---|---|---|---|---|---|
| Bldg # | Vacant/Improved Land | Bldg Description | Year Built | SqFt | # Stories | |
|
1 |
Improved |
Ranch 1 Story |
1955 |
851 |
1 Stories |
|