|
|
|
| Larry Stein Oklahoma County Assessor (405) 713-1200 - Public Access System |
|
|
|
|
|
|
| Real Property Display - Screen Produced 4/4/2026 3:02:26 AM | ||||
|---|---|---|---|---|
| Account: R154751745 | Type: Residential | Location: |
9325 NE 11TH ST |
|
| Building Name/Occupant: |
|
MIDWEST CITY |
||
| Owner Name 1: | RAY FREIDA J |
Parcel PIN#: |
2499-15-475-1745 |
|
| Owner Name 2: | DINWIDDIE MERWYN | 1/4 section #: |
2499 |
|
| Owner Name 3: | Parent Acct: |
|
||
| Billing Address: | 9325 NE 11TH ST | Tax District: |
|
|
| City, State, Zip | MIDWEST CITY, OK 73130-1301 | School System: |
Oklahoma City #89 |
|
|
Country: (If noted) |
Land Size: |
0.2531 Acres |
||
|
Land Value: 14,333 |
|
|||
|
Sect 25-T12N-R2W Qtr SW |
ASHFORD HGTS ADD
Block
004
Lot
021
|
|||
| Full Legal Description: ASHFORD HGTS ADD 004 021 |
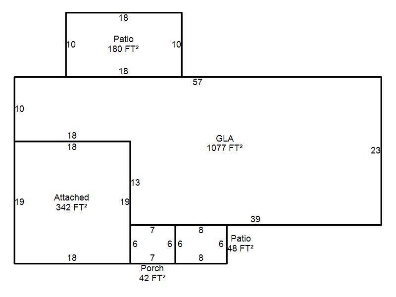
| Photo & Sketch (if available) | Comp Sales (ordered by relevancy) |
|
||||||||||||||||||
|
||||||||||||||||||||
| Value History (*The County Treasurer 405-713-1300 posts & collects actual tax amounts. Contact information HERE) | |||||||||||||
|---|---|---|---|---|---|---|---|---|---|---|---|---|---|
| Year | Market Value | Taxable Mkt Value | Gross Assessed | Exemption | Net Assessed | Millage | Est. Tax | Tax Savings | |||||
|
2026 |
101,500 |
56,619 |
6,227 |
0 |
6,227 |
114.34 |
$712 |
$564 |
|||||
|
2025 |
101,500 |
53,923 |
5,931 |
0 |
5,931 |
114.34 |
$678 |
$598 |
|||||
|
2024 |
79,000 |
51,356 |
5,649 |
0 |
5,649 |
116.11 |
$656 |
$353 |
|||||
|
2023 |
83,500 |
48,911 |
5,380 |
0 |
5,380 |
115.66 |
$622 |
$440 |
|||||
|
2022 |
67,500 |
46,582 |
5,124 |
0 |
5,124 |
110.02 |
$564 |
$253 |
|||||
| Property Account Status/Adjustments/Exemptions | ||
|---|---|---|
| Account # | Exemption Description | Amount |
|
R154751745 |
5% Capped Account |
0 |
| Property Deed Transaction History (Recorded in the County Clerk's Office) | |||||||
|---|---|---|---|---|---|---|---|
| Date | Type | Book | Page | Price | Grantor | Grantee | |
|
11/19/2002 |
|
Deeds |
$0 |
RAY FREIDA J |
RAY FREIDA J |
||
|
7/15/2002 |
|
Deeds |
$47,000 |
WISE WESLEY E |
RAY FREIDA J |
||
|
11/11/1911 |
|
Historical |
$0 |
|
WISE WESLEY E |
||
| Last Mailed Notice of Value (N.O.V.) Information/History | ||||||||
|---|---|---|---|---|---|---|---|---|
| Year | Date | Market Value | Taxable Market Value | Gross Assessed | Exemption | Net Assessed | ||
|
2026 |
02/23/2026 |
101,500 |
56,619 |
6,227 |
0 |
6,227 |
||
|
2025 |
02/14/2025 |
101,500 |
53,923 |
5,931 |
0 |
5,931 |
||
|
2024 |
02/13/2024 |
79,000 |
51,356 |
5,649 |
0 |
5,649 |
||
|
2023 |
02/14/2023 |
83,500 |
48,911 |
5,380 |
0 |
5,380 |
||
|
2022 |
03/15/2022 |
67,500 |
46,582 |
5,124 |
0 |
5,124 |
||
| Property Building Permit History | |||||||||||
|---|---|---|---|---|---|---|---|---|---|---|---|
| Issued | Permit # | Provided by | Bldg # | Description | Est Construction Cost | Status | |||||
| No Building Permit records returned. | |||||||||||
| Click button on building number to access detailed information: | ||||||
|---|---|---|---|---|---|---|
| Bldg # | Vacant/Improved Land | Bldg Description | Year Built | SqFt | # Stories | |
|
1 |
Improved |
Ranch 1 Story |
1956 |
1,077 |
1 Stories |
|