|
|
|
| Larry Stein Oklahoma County Assessor (405) 713-1200 - Public Access System |
|
|
|
|
|
|
| Real Property Display - Screen Produced 4/4/2026 3:01:02 AM | ||||
|---|---|---|---|---|
| Account: R154752005 | Type: Residential | Location: |
1305 MARYDALE AVE |
|
| Building Name/Occupant: |
|
MIDWEST CITY |
||
| Owner Name 1: | MCGAHAN ENTERPRISES LLC |
Parcel PIN#: |
2499-15-475-2005 |
|
| Owner Name 2: | 1/4 section #: |
2499 |
||
| Owner Name 3: | Parent Acct: |
|
||
| Billing Address: | 7317 NE 107TH ST | Tax District: |
|
|
| City, State, Zip | OKLAHOMA CITY , OK 73151-9461 | School System: |
Oklahoma City #89 |
|
|
Country: (If noted) |
Land Size: |
0.2410 Acres |
||
|
Land Value: 13,650 |
|
|||
|
Sect 25-T12N-R2W Qtr SW |
ASHFORD HGTS ADD
Block
006
Lot
007
|
|||
| Full Legal Description: ASHFORD HGTS ADD 006 007 |
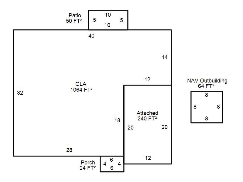
| Photo & Sketch (if available) | Comp Sales (ordered by relevancy) |
|
||||||||||||||||||
|
||||||||||||||||||||
| Value History (*The County Treasurer 405-713-1300 posts & collects actual tax amounts. Contact information HERE) | |||||||||||||
|---|---|---|---|---|---|---|---|---|---|---|---|---|---|
| Year | Market Value | Taxable Mkt Value | Gross Assessed | Exemption | Net Assessed | Millage | Est. Tax | Tax Savings | |||||
|
2026 |
94,500 |
46,432 |
5,107 |
0 |
5,107 |
114.34 |
$584 |
$605 |
|||||
|
2025 |
93,500 |
44,221 |
4,863 |
0 |
4,863 |
114.34 |
$556 |
$620 |
|||||
|
2024 |
73,500 |
42,116 |
4,632 |
0 |
4,632 |
116.11 |
$538 |
$401 |
|||||
|
2023 |
75,500 |
40,111 |
4,412 |
0 |
4,412 |
115.66 |
$510 |
$450 |
|||||
|
2022 |
61,500 |
38,201 |
4,201 |
0 |
4,201 |
110.02 |
$462 |
$282 |
|||||
| Property Account Status/Adjustments/Exemptions | ||
|---|---|---|
| Account # | Exemption Description | Amount |
|
R154752005 |
5% Capped Account |
0 |
| Property Deed Transaction History (Recorded in the County Clerk's Office) | ||||||||||
|---|---|---|---|---|---|---|---|---|---|---|
| Date | Type | Book | Page | Price | Grantor | Grantee | ||||
|
4/2/2018 |
|
Deeds |
$31,500 |
LITTLETON CLAYTON L |
MCGAHAN ENTERPRISES LLC |
|||||
|
6/5/2017 |
|
Deeds |
$0 |
LITTLETON RENAE F |
LITTLETON CLAYTON L |
|||||
|
3/7/2006 |
|
Deeds |
$19,500 |
NEWTON RICHARD L & DEBORAH A |
LITTLETON CLAYTON L |
|||||
|
8/17/2000 |
|
Deeds |
$0 |
LITTLETON CLAYTON LOUIS |
LITTLETON DEE ANN |
|||||
|
1/8/1990 |
|
Historical |
$0 |
ADMR OF VETERANS AFFAIRS |
NEWTON RICHARD L & DEBORAH A |
|||||
| Last Mailed Notice of Value (N.O.V.) Information/History | ||||||||
|---|---|---|---|---|---|---|---|---|
| Year | Date | Market Value | Taxable Market Value | Gross Assessed | Exemption | Net Assessed | ||
|
2026 |
02/23/2026 |
94,500 |
46,432 |
5,107 |
0 |
5,107 |
||
|
2025 |
02/14/2025 |
93,500 |
44,221 |
4,863 |
0 |
4,863 |
||
|
2024 |
02/13/2024 |
73,500 |
42,116 |
4,632 |
0 |
4,632 |
||
|
2023 |
02/14/2023 |
75,500 |
40,111 |
4,412 |
0 |
4,412 |
||
|
2022 |
03/15/2022 |
61,500 |
38,201 |
4,201 |
0 |
4,201 |
||
| Property Building Permit History | |||||||||||
|---|---|---|---|---|---|---|---|---|---|---|---|
| Issued | Permit # | Provided by | Bldg # | Description | Est Construction Cost | Status | |||||
| No Building Permit records returned. | |||||||||||
| Click button on building number to access detailed information: | ||||||
|---|---|---|---|---|---|---|
| Bldg # | Vacant/Improved Land | Bldg Description | Year Built | SqFt | # Stories | |
|
1 |
Improved |
Ranch 1 Story |
1955 |
1,064 |
1 Stories |
|