|
|
|
| Larry Stein Oklahoma County Assessor (405) 713-1200 - Public Access System |
|
|
|
|
|
|
| Real Property Display - Screen Produced 4/4/2026 3:02:26 AM | ||||
|---|---|---|---|---|
| Account: R154752065 | Type: Residential | Location: |
1201 MARYDALE AVE |
|
| Building Name/Occupant: |
|
MIDWEST CITY |
||
| Owner Name 1: | SERNA PROPERTIES LLC |
Parcel PIN#: |
2499-15-475-2065 |
|
| Owner Name 2: | 1/4 section #: |
2499 |
||
| Owner Name 3: | Parent Acct: |
|
||
| Billing Address: | 3032 KAEYLEE LN | Tax District: |
|
|
| City, State, Zip | DEL CITY, OK 73115 | School System: |
Oklahoma City #89 |
|
|
Country: (If noted) |
Land Size: |
0.2410 Acres |
||
|
Land Value: 13,650 |
|
|||
|
Sect 25-T12N-R2W Qtr SW |
ASHFORD HGTS ADD
Block
006
Lot
013
|
|||
| Full Legal Description: ASHFORD HGTS ADD 006 013 |
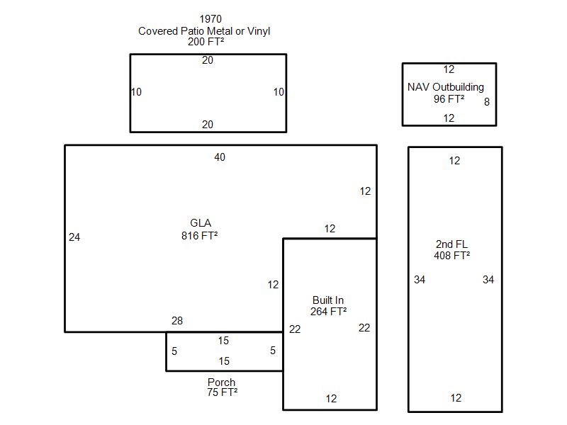
| Photo & Sketch (if available) | Comp Sales (ordered by relevancy) |
|
||||||||||||||||||
|
||||||||||||||||||||
| Value History (*The County Treasurer 405-713-1300 posts & collects actual tax amounts. Contact information HERE) | |||||||||||||
|---|---|---|---|---|---|---|---|---|---|---|---|---|---|
| Year | Market Value | Taxable Mkt Value | Gross Assessed | Exemption | Net Assessed | Millage | Est. Tax | Tax Savings | |||||
|
2026 |
112,000 |
62,671 |
6,893 |
0 |
6,893 |
114.34 |
$788 |
$620 |
|||||
|
2025 |
112,500 |
59,687 |
6,564 |
0 |
6,564 |
114.34 |
$751 |
$664 |
|||||
|
2024 |
89,000 |
56,845 |
6,252 |
0 |
6,252 |
116.11 |
$726 |
$411 |
|||||
|
2023 |
94,000 |
54,139 |
5,954 |
0 |
5,954 |
115.66 |
$689 |
$507 |
|||||
|
2022 |
77,000 |
51,561 |
5,671 |
0 |
5,671 |
110.02 |
$624 |
$308 |
|||||
| Property Account Status/Adjustments/Exemptions | ||
|---|---|---|
| Account # | Exemption Description | Amount |
|
R154752065 |
5% Capped Account |
0 |
| Property Deed Transaction History (Recorded in the County Clerk's Office) | ||||||||||
|---|---|---|---|---|---|---|---|---|---|---|
| Date | Type | Book | Page | Price | Grantor | Grantee | ||||
|
12/23/2013 |
|
Deeds |
$35,000 |
LISOYO LOUIS V |
SERNA PROPERTIES LLC |
|||||
|
9/25/2007 |
|
Deeds |
$20,000 |
BANDA RUEBEN RAMOS & MARINA RAMOS GARCIA |
LISOYO LUIS V |
|||||
|
9/25/2007 |
|
Deeds |
$0 |
BANDA RUEBEN RAMOS & MARINA RAMOS GARCIA |
LISOYO LOUIS V |
|||||
|
6/15/2005 |
|
Deeds |
$24,000 |
BOEVERS JERRY T & LORITA SUSAN |
BANDA RUEBEN RAMOS & MARINA RAMOS GARCIA |
|||||
|
9/6/1990 |
|
Historical |
$0 |
PLATO THOMAS WILSON |
BOEVERS JERRY T & LORITA SUSAN |
|||||
| Last Mailed Notice of Value (N.O.V.) Information/History | ||||||||
|---|---|---|---|---|---|---|---|---|
| Year | Date | Market Value | Taxable Market Value | Gross Assessed | Exemption | Net Assessed | ||
|
2026 |
02/23/2026 |
112,000 |
62,671 |
6,893 |
0 |
6,893 |
||
|
2025 |
02/14/2025 |
112,500 |
59,687 |
6,564 |
0 |
6,564 |
||
|
2024 |
02/13/2024 |
89,000 |
56,845 |
6,252 |
0 |
6,252 |
||
|
2023 |
02/14/2023 |
94,000 |
54,139 |
5,954 |
0 |
5,954 |
||
|
2022 |
03/15/2022 |
77,000 |
51,561 |
5,671 |
0 |
5,671 |
||
| Property Building Permit History | |||||||||||
|---|---|---|---|---|---|---|---|---|---|---|---|
| Issued | Permit # | Provided by | Bldg # | Description | Est Construction Cost | Status | |||||
| No Building Permit records returned. | |||||||||||
| Click button on building number to access detailed information: | ||||||
|---|---|---|---|---|---|---|
| Bldg # | Vacant/Improved Land | Bldg Description | Year Built | SqFt | # Stories | |
|
1 |
Improved |
1½ Story Fin |
1955 |
1,224 |
1.5 Stories |
|