|
|
|
| Larry Stein Oklahoma County Assessor (405) 713-1200 - Public Access System |
|
|
|
|
|
|
| Real Property Display - Screen Produced 4/2/2026 1:09:34 AM | ||||
|---|---|---|---|---|
| Account: R151661690 | Type: Residential | Location: |
921 MEADOWRIDGE DR |
|
| Building Name/Occupant: |
|
MIDWEST CITY |
||
| Owner Name 1: | TODAY FOR TOMORROW LLC |
Parcel PIN#: |
2503-15-166-1690 |
|
| Owner Name 2: | 1/4 section #: |
2503 |
||
| Owner Name 3: | Parent Acct: |
|
||
| Billing Address: | 6608 N WEST ERN AVE STE 1132 | Tax District: |
|
|
| City, State, Zip | OKLAHOMA CITY, OK 73116 | School System: |
Oklahoma City #89 |
|
|
Country: (If noted) |
Land Size: |
0.1928 Acres |
||
|
Land Value: 28,560 |
|
|||
|
Sect 26-T12N-R2W Qtr SW |
ROLLING MEADOWS
Block
004
Lot
001
|
|||
| Full Legal Description: ROLLING MEADOWS 004 001 |
| Photo & Sketch (if available) | Comp Sales (ordered by relevancy) |
|
||||||||||||||||||
|
||||||||||||||||||||
| Value History (*The County Treasurer 405-713-1300 posts & collects actual tax amounts. Contact information HERE) | |||||||||||||
|---|---|---|---|---|---|---|---|---|---|---|---|---|---|
| Year | Market Value | Taxable Mkt Value | Gross Assessed | Exemption | Net Assessed | Millage | Est. Tax | Tax Savings | |||||
|
2026 |
125,000 |
83,868 |
9,225 |
0 |
9,225 |
114.34 |
$1,055 |
$517 |
|||||
|
2025 |
125,500 |
79,875 |
8,785 |
0 |
8,785 |
114.34 |
$1,005 |
$574 |
|||||
|
2024 |
117,000 |
76,072 |
8,367 |
0 |
8,367 |
116.11 |
$972 |
$523 |
|||||
|
2023 |
79,500 |
72,450 |
7,969 |
0 |
7,969 |
115.66 |
$922 |
$90 |
|||||
|
2022 |
69,000 |
69,000 |
7,590 |
0 |
7,590 |
110.02 |
$835 |
$0 |
|||||
| Property Account Status/Adjustments/Exemptions | ||
|---|---|---|
| Account # | Exemption Description | Amount |
|
R151661690 |
5% Capped Account |
0 |
| Property Deed Transaction History (Recorded in the County Clerk's Office) | |||||||
|---|---|---|---|---|---|---|---|
| Date | Type | Book | Page | Price | Grantor | Grantee | |
|
5/5/2021 |
|
Deeds |
$66,500 |
WOODZELL DANIEL R |
TODAY FOR TOMORROW LLC |
||
|
11/23/2009 |
|
Deeds |
$39,500 |
RAY JAMES WILLIAM |
WOODZELL DANIEL R |
||
|
12/2/1998 |
|
Historical |
$0 |
RAY SIDNEY ALFRED |
RAY JAMES WILLIAM |
||
|
12/1/1998 |
|
Historical |
$0 |
RAY SIDNEY ALFRED & J M |
RAY SIDNEY ALFRED |
||
|
11/11/1911 |
|
Historical |
$0 |
|
RAY SIDNEY ALFRED & J M |
||
| Last Mailed Notice of Value (N.O.V.) Information/History | ||||||||
|---|---|---|---|---|---|---|---|---|
| Year | Date | Market Value | Taxable Market Value | Gross Assessed | Exemption | Net Assessed | ||
|
2026 |
02/23/2026 |
125,000 |
83,868 |
9,225 |
0 |
9,225 |
||
|
2025 |
02/14/2025 |
125,500 |
79,875 |
8,785 |
0 |
8,785 |
||
|
2024 |
02/13/2024 |
117,000 |
76,072 |
8,367 |
0 |
8,367 |
||
|
2023 |
02/14/2023 |
79,500 |
72,450 |
7,969 |
0 |
7,969 |
||
|
2021 |
03/19/2021 |
73,500 |
70,008 |
7,700 |
0 |
7,700 |
||
| Property Building Permit History | |||||||||||
|---|---|---|---|---|---|---|---|---|---|---|---|
| Issued | Permit # | Provided by | Bldg # | Description | Est Construction Cost | Status | |||||
| No Building Permit records returned. | |||||||||||
| Click button on building number to access detailed information: | ||||||
|---|---|---|---|---|---|---|
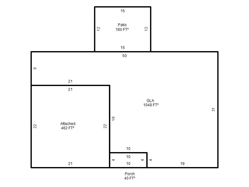
| Bldg # | Vacant/Improved Land | Bldg Description | Year Built | SqFt | # Stories | |
|
1 |
Improved |
Ranch 1 Story |
1968 |
1,048 |
1 Stories |
|