|
|
|
| Larry Stein Oklahoma County Assessor (405) 713-1200 - Public Access System |
|
|
|
|
|
|
| Real Property Display - Screen Produced 4/5/2026 8:43:08 AM | ||||
|---|---|---|---|---|
| Account: R154052730 | Type: Residential | Location: |
112 W CAMPBELL DR |
|
| Building Name/Occupant: |
|
MIDWEST CITY |
||
| Owner Name 1: | SERIES D A PROTECTED SERIES OF LJZ RENTALS LLC |
Parcel PIN#: |
2506-15-405-2730 |
|
| Owner Name 2: | 1/4 section #: |
2506 |
||
| Owner Name 3: | Parent Acct: |
|
||
| Billing Address: | 8801 NE 122ND ST | Tax District: |
|
|
| City, State, Zip | JONES, OK 73049 | School System: |
Oklahoma City #89 |
|
|
Country: (If noted) |
Land Size: |
0.1997 Acres |
||
|
Land Value: 23,055 |
|
|||
|
Sect 27-T12N-R2W Qtr SE |
RIDGEVIEW HTS REPLAT
Block
008
Lot
018
|
|||
| Full Legal Description: RIDGEVIEW HTS REPLAT 008 018 |
| Photo & Sketch (if available) | Comp Sales (ordered by relevancy) |
|
||||||||||||||||||
|
||||||||||||||||||||
| Value History (*The County Treasurer 405-713-1300 posts & collects actual tax amounts. Contact information HERE) | |||||||||||||
|---|---|---|---|---|---|---|---|---|---|---|---|---|---|
| Year | Market Value | Taxable Mkt Value | Gross Assessed | Exemption | Net Assessed | Millage | Est. Tax | Tax Savings | |||||
|
2026 |
123,500 |
103,855 |
11,424 |
0 |
11,424 |
114.34 |
$1,306 |
$247 |
|||||
|
2025 |
126,000 |
98,910 |
10,880 |
0 |
10,880 |
114.34 |
$1,244 |
$341 |
|||||
|
2024 |
125,500 |
94,200 |
10,361 |
0 |
10,361 |
116.11 |
$1,203 |
$400 |
|||||
|
2023 |
119,500 |
89,715 |
9,867 |
0 |
9,867 |
115.66 |
$1,141 |
$379 |
|||||
|
2022 |
104,500 |
85,443 |
9,398 |
0 |
9,398 |
110.02 |
$1,034 |
$231 |
|||||
| Property Account Status/Adjustments/Exemptions | ||
|---|---|---|
| Account # | Exemption Description | Amount |
|
R154052730 |
5% Capped Account |
0 |
| Property Deed Transaction History (Recorded in the County Clerk's Office) | ||||||||||
|---|---|---|---|---|---|---|---|---|---|---|
| Date | Type | Book | Page | Price | Grantor | Grantee | ||||
|
12/16/2021 |
|
Hmstd Off & |
$0 |
ZELLER JEANETTE |
SERIES D A PROTECTED SERIES OF LJZ RENTALS LLC |
|||||
|
5/3/2019 |
|
Deeds |
$75,000 |
WAZZAN PROPERTIES LLC |
ZELLER JEANETTE |
|||||
|
4/30/2019 |
|
Deeds |
$46,000 |
WILMINGTON SAVINGS FUND SOCIETY FSB |
WAZZAN PROPERTIES LLC |
|||||
|
3/15/2018 |
|
Hmstd Off & |
$0 |
URBAN FINANCIAL REO LLC |
WILMINGTON SAVINGS FUND SOCIETY FSB |
|||||
|
1/16/2018 |
|
Hmstd Off & |
$0 |
THOMAS CARL |
URBAN FINANCIAL REO LLC |
|||||
| Last Mailed Notice of Value (N.O.V.) Information/History | ||||||||
|---|---|---|---|---|---|---|---|---|
| Year | Date | Market Value | Taxable Market Value | Gross Assessed | Exemption | Net Assessed | ||
|
2026 |
02/23/2026 |
123,500 |
103,855 |
11,424 |
0 |
11,424 |
||
|
2025 |
02/14/2025 |
126,000 |
98,910 |
10,880 |
0 |
10,880 |
||
|
2024 |
02/13/2024 |
125,500 |
94,200 |
10,361 |
0 |
10,361 |
||
|
2023 |
02/14/2023 |
119,500 |
89,715 |
9,867 |
0 |
9,867 |
||
|
2022 |
03/15/2022 |
104,500 |
85,443 |
9,398 |
0 |
9,398 |
||
| Property Building Permit History | |||||||||||
|---|---|---|---|---|---|---|---|---|---|---|---|
| Issued | Permit # | Provided by | Bldg # | Description | Est Construction Cost | Status | |||||
| No Building Permit records returned. | |||||||||||
| Click button on building number to access detailed information: | ||||||
|---|---|---|---|---|---|---|
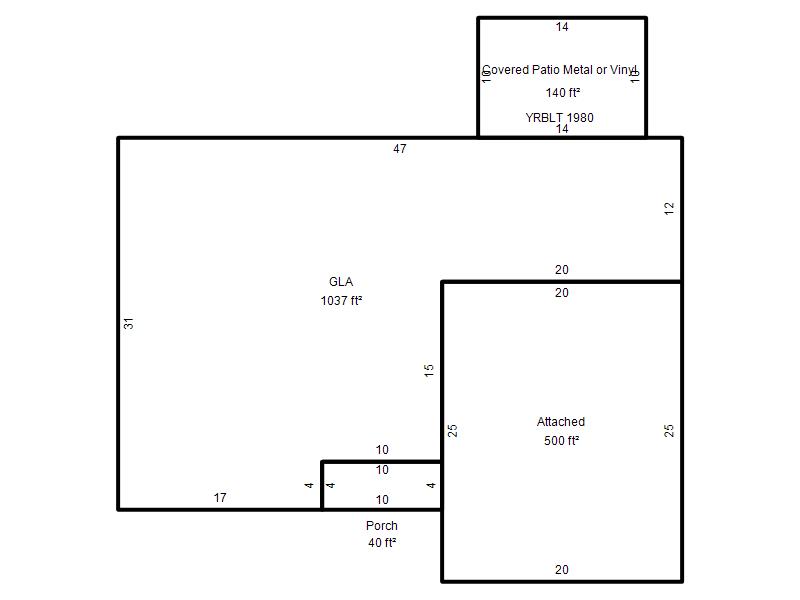
| Bldg # | Vacant/Improved Land | Bldg Description | Year Built | SqFt | # Stories | |
|
1 |
Improved |
Ranch 1 Story |
1971 |
1,037 |
1 Stories |
|