|
|
|
| Larry Stein Oklahoma County Assessor (405) 713-1200 - Public Access System |
|
|
|
|
|
|
| Real Property Display - Screen Produced 4/5/2026 8:43:05 AM | ||||
|---|---|---|---|---|
| Account: R154053430 | Type: Residential | Location: |
217 W CAMPBELL DR |
|
| Building Name/Occupant: |
|
MIDWEST CITY |
||
| Owner Name 1: | RML HOME SOLUTIONS LLC |
Parcel PIN#: |
2507-15-405-3430 |
|
| Owner Name 2: | 1/4 section #: |
2507 |
||
| Owner Name 3: | Parent Acct: |
|
||
| Billing Address: | PO BOX 14954 | Tax District: |
|
|
| City, State, Zip | OKLAHOMA CITY, OK 73113 | School System: |
Crutcho #74 |
|
|
Country: (If noted) |
Land Size: |
0.1765 Acres |
||
|
Land Value: 20,373 |
|
|||
|
Sect 27-T12N-R2W Qtr SW |
RIDGEVIEW HTS REPLAT
Block
009
Lot
043
|
|||
| Full Legal Description: RIDGEVIEW HTS REPLAT 009 043 |
| Photo & Sketch (if available) | Comp Sales (ordered by relevancy) |
|
||||||||||||||||||
|
||||||||||||||||||||
| Value History (*The County Treasurer 405-713-1300 posts & collects actual tax amounts. Contact information HERE) | |||||||||||||
|---|---|---|---|---|---|---|---|---|---|---|---|---|---|
| Year | Market Value | Taxable Mkt Value | Gross Assessed | Exemption | Net Assessed | Millage | Est. Tax | Tax Savings | |||||
|
2026 |
121,500 |
98,003 |
10,780 |
0 |
10,780 |
114.29 |
$1,232 |
$295 |
|||||
|
2025 |
123,500 |
93,337 |
10,266 |
0 |
10,266 |
114.29 |
$1,173 |
$379 |
|||||
|
2024 |
123,000 |
88,893 |
9,777 |
0 |
9,777 |
114.51 |
$1,120 |
$430 |
|||||
|
2023 |
116,500 |
84,660 |
9,312 |
0 |
9,312 |
112.22 |
$1,045 |
$393 |
|||||
|
2022 |
101,500 |
80,629 |
8,868 |
0 |
8,868 |
113.92 |
$1,010 |
$262 |
|||||
| Property Account Status/Adjustments/Exemptions | ||||||
|---|---|---|---|---|---|---|
| Account # | Exemption Description | Amount | ||||
| No adjustment/exemption records returned. | ||||||
| Property Deed Transaction History (Recorded in the County Clerk's Office) | ||||||||||
|---|---|---|---|---|---|---|---|---|---|---|
| Date | Type | Book | Page | Price | Grantor | Grantee | ||||
|
11/18/2021 |
|
Hmstd Off & |
$0 |
MEGA RENTALS LLC SERIES CAMPBELL |
RML HOME SOLUTIONS LLC |
|||||
|
3/10/2017 |
|
Hmstd Off & |
$0 |
MEGA RENTALS SERIES CAMPBELL |
MEGA RENTALS LLC SERIES CAMPBELL |
|||||
|
3/8/2016 |
|
Hmstd Off & |
$0 |
MEGA RENTALS LLC |
MEGA RENTALS SERIES CAMPBELL |
|||||
|
4/2/2013 |
|
Hmstd Off & |
$0 |
JOHNSON LEON A |
MEGA RENTALS LLC |
|||||
|
11/5/2012 |
|
Deeds |
$27,500 |
JOHNSON PETER & ANTHONY |
MEGA RENTALS LLC |
|||||
| Last Mailed Notice of Value (N.O.V.) Information/History | ||||||||
|---|---|---|---|---|---|---|---|---|
| Year | Date | Market Value | Taxable Market Value | Gross Assessed | Exemption | Net Assessed | ||
|
2026 |
02/23/2026 |
121,500 |
98,003 |
10,780 |
0 |
10,780 |
||
|
2025 |
02/14/2025 |
123,500 |
93,337 |
10,266 |
0 |
10,266 |
||
|
2024 |
02/13/2024 |
123,000 |
88,893 |
9,777 |
0 |
9,777 |
||
|
2023 |
02/14/2023 |
116,500 |
84,660 |
9,312 |
0 |
9,312 |
||
|
2022 |
03/15/2022 |
101,500 |
80,629 |
8,868 |
0 |
8,868 |
||
| Property Building Permit History | |||||||||||
|---|---|---|---|---|---|---|---|---|---|---|---|
| Issued | Permit # | Provided by | Bldg # | Description | Est Construction Cost | Status | |||||
| No Building Permit records returned. | |||||||||||
| Click button on building number to access detailed information: | ||||||
|---|---|---|---|---|---|---|
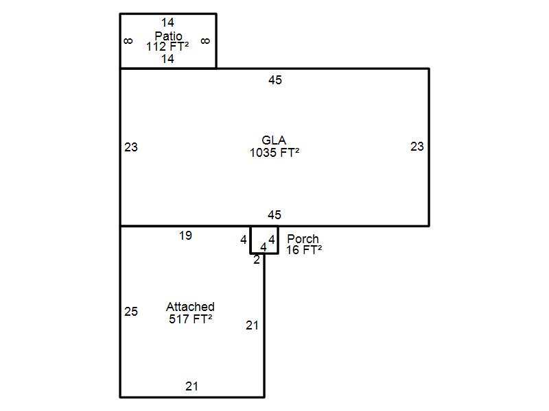
| Bldg # | Vacant/Improved Land | Bldg Description | Year Built | SqFt | # Stories | |
|
1 |
Improved |
Ranch 1 Story |
1971 |
1,035 |
1 Stories |
|