|
|
|
| Larry Stein Oklahoma County Assessor (405) 713-1200 - Public Access System |
|
|
|
|
|
|
| Real Property Display - Screen Produced 3/21/2026 11:19:14 AM | ||||
|---|---|---|---|---|
| Account: R144154015 | Type: Residential | Location: |
12501 SE 54TH ST |
|
| Building Name/Occupant: |
|
OKLAHOMA CITY |
||
| Owner Name 1: | ESPINOZA RAMON |
Parcel PIN#: |
1282-14-415-4015 |
|
| Owner Name 2: | VALDES HECTOR | 1/4 section #: |
1282 |
|
| Owner Name 3: | Parent Acct: |
|
||
| Billing Address: | 12501 SE 54TH ST | Tax District: |
|
|
| City, State, Zip | CHOCTAW, OK 73020-5606 | School System: |
Mid-Del #52 |
|
|
Country: (If noted) |
Land Size: |
4.7400 Acres |
||
|
Land Value: 119,419 |
|
|||
|
Sect 21-T11N-R1W Qtr SE |
UNPLTD PT SEC 21 11N 1W
Block
000
Lot
000
|
|||
| Full Legal Description: UNPLTD PT SEC 21 11N 1W 000 000 PT OF SE4 SEC 21 11N 1W W 1/2 OF NW4 OF NW4 OF SE4 EX A TR IN SW/C 102.45FT ON W 245.89FT SELY & 223.03FT ON S |
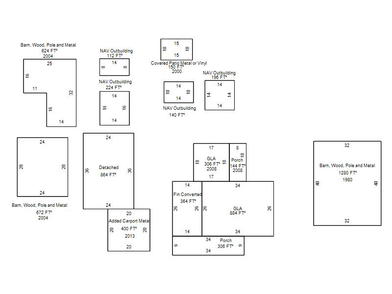
| Photo & Sketch (if available) | Comp Sales (ordered by relevancy) |
|
||||||||||||||||||
|
||||||||||||||||||||
| Value History (*The County Treasurer 405-713-1300 posts & collects actual tax amounts. Contact information HERE) | |||||||||||||
|---|---|---|---|---|---|---|---|---|---|---|---|---|---|
| Year | Market Value | Taxable Mkt Value | Gross Assessed | Exemption | Net Assessed | Millage | Est. Tax | Tax Savings | |||||
|
2025 |
324,500 |
182,413 |
20,065 |
1,000 |
19,065 |
126.46 |
$2,411 |
$2,103 |
|||||
|
2024 |
315,500 |
177,100 |
19,480 |
1,000 |
18,480 |
128.51 |
$2,375 |
$2,085 |
|||||
|
2023 |
292,000 |
171,942 |
18,912 |
1,000 |
17,912 |
122.94 |
$2,202 |
$1,747 |
|||||
|
2022 |
264,000 |
166,934 |
18,361 |
1,000 |
17,361 |
122.11 |
$2,120 |
$1,426 |
|||||
|
2021 |
231,500 |
162,072 |
17,827 |
1,000 |
16,827 |
124.74 |
$2,099 |
$1,077 |
|||||
| Property Account Status/Adjustments/Exemptions | ||
|---|---|---|
| Account # | Exemption Description | Amount |
|
R144154015 |
3% Cap Homestead |
0 |
|
R144154015 |
Homestead |
1,000 |
| Property Deed Transaction History (Recorded in the County Clerk's Office) | |||||||
|---|---|---|---|---|---|---|---|
| Date | Type | Book | Page | Price | Grantor | Grantee | |
|
11/6/2016 |
|
Deeds |
$144,000 |
GRIFFITHS PATRICK K & CONNIE S |
ESPINOZA RAMON |
||
|
3/27/1995 |
|
Historical |
$62,500 |
TOMANICA LISA E |
GRIFFITHS PATRICK K & CONNIE S |
||
|
12/9/1994 |
|
Historical |
$0 |
CUNNINGHAM LISA ELLEN & GEORGE |
TOMANICA LISA E |
||
|
12/7/1988 |
|
Historical |
$56,000 |
DELASHAW LARRY D & HELEN |
CUNNINGHAM LISA ELLEN & GEORGE |
||
|
5/1/1977 |
|
Historical |
$0 |
|
DELASHAW LARRY D & HELEN |
||
| Last Mailed Notice of Value (N.O.V.) Information/History | ||||||||
|---|---|---|---|---|---|---|---|---|
| Year | Date | Market Value | Taxable Market Value | Gross Assessed | Exemption | Net Assessed | ||
|
2026 |
02/06/2026 |
322,000 |
187,885 |
20,666 |
1,000 |
19,666 |
||
|
2025 |
01/31/2025 |
324,500 |
182,413 |
20,065 |
1,000 |
19,065 |
||
|
2024 |
01/22/2024 |
315,500 |
177,100 |
19,480 |
1,000 |
18,480 |
||
|
2023 |
01/23/2023 |
292,000 |
171,942 |
18,912 |
1,000 |
17,912 |
||
|
2022 |
02/22/2022 |
264,000 |
166,934 |
18,361 |
1,000 |
17,361 |
||
| Property Building Permit History | |||||||||||
|---|---|---|---|---|---|---|---|---|---|---|---|
| Issued | Permit # | Provided by | Bldg # | Description | Est Construction Cost | Status | |||||
| No Building Permit records returned. | |||||||||||
| Click button on building number to access detailed information: | ||||||
|---|---|---|---|---|---|---|
| Bldg # | Vacant/Improved Land | Bldg Description | Year Built | SqFt | # Stories | |
|
1 |
Improved |
Ranch 1 Story |
1978 |
1,190 |
1 Stories |
|