|
|
|
| Larry Stein Oklahoma County Assessor (405) 713-1200 - Public Access System |
|
|
|
|
|
|
| Real Property Display - Screen Produced 3/21/2026 11:19:13 AM | ||||
|---|---|---|---|---|
| Account: R144154020 | Type: Residential | Location: |
5301 S HIWASSEE RD |
|
| Building Name/Occupant: |
|
OKLAHOMA CITY |
||
| Owner Name 1: | ENGLEDOW LARRY W & KIMBERLY A |
Parcel PIN#: |
1282-14-415-4020 |
|
| Owner Name 2: | 1/4 section #: |
1282 |
||
| Owner Name 3: | Parent Acct: |
|
||
| Billing Address: | 5301 S HIWASSEE RD | Tax District: |
|
|
| City, State, Zip | CHOCTAW, OK 73020-5615 | School System: |
Mid-Del #52 |
|
|
Country: (If noted) |
Land Size: |
5.0000 Acres |
||
|
Land Value: 123,184 |
|
|||
|
Sect 21-T11N-R1W Qtr SE |
UNPLTD PT SEC 21 11N 1W
Block
000
Lot
000
|
|||
| Full Legal Description: UNPLTD PT SEC 21 11N 1W 000 000 PT OF SE4 SEC 21 11N 1W N 1/2 OF NE4 OF NE4 OF SE4 |
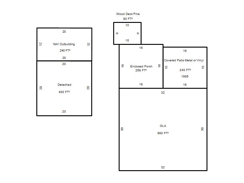
| Photo & Sketch (if available) | Comp Sales (ordered by relevancy) |
|
||||||||||||||||||
|
||||||||||||||||||||
| Value History (*The County Treasurer 405-713-1300 posts & collects actual tax amounts. Contact information HERE) | |||||||||||||
|---|---|---|---|---|---|---|---|---|---|---|---|---|---|
| Year | Market Value | Taxable Mkt Value | Gross Assessed | Exemption | Net Assessed | Millage | Est. Tax | Tax Savings | |||||
|
2025 |
234,000 |
116,161 |
12,777 |
1,000 |
11,777 |
126.46 |
$1,489 |
$1,766 |
|||||
|
2024 |
217,500 |
112,778 |
12,405 |
1,000 |
11,405 |
128.51 |
$1,466 |
$1,609 |
|||||
|
2023 |
199,000 |
109,494 |
12,043 |
1,000 |
11,043 |
122.94 |
$1,358 |
$1,333 |
|||||
|
2022 |
179,000 |
106,305 |
11,692 |
1,000 |
10,692 |
122.11 |
$1,306 |
$1,099 |
|||||
|
2021 |
156,500 |
103,209 |
11,352 |
1,000 |
10,352 |
124.74 |
$1,291 |
$856 |
|||||
| Property Account Status/Adjustments/Exemptions | ||
|---|---|---|
| Account # | Exemption Description | Amount |
|
R144154020 |
3% Cap Homestead |
0 |
|
R144154020 |
Homestead |
1,000 |
| Property Deed Transaction History (Recorded in the County Clerk's Office) | |||||||
|---|---|---|---|---|---|---|---|
| Date | Type | Book | Page | Price | Grantor | Grantee | |
|
6/9/2000 |
|
Deeds |
$50,000 |
BRANTLEY KENNETH R |
ENGLEDOW LARRY W & KIMBERLY A |
||
|
10/31/1988 |
|
Historical |
$0 |
BRANTLEY KENNETH R & STELLA M |
BRANTLEY KENNETH R |
||
|
7/1/1980 |
|
Historical |
$0 |
|
BRANTLEY KENNETH R & STELLA M |
||
| Last Mailed Notice of Value (N.O.V.) Information/History | ||||||||
|---|---|---|---|---|---|---|---|---|
| Year | Date | Market Value | Taxable Market Value | Gross Assessed | Exemption | Net Assessed | ||
|
2026 |
02/06/2026 |
232,500 |
119,645 |
13,160 |
1,000 |
12,160 |
||
|
2025 |
01/31/2025 |
234,000 |
116,161 |
12,777 |
1,000 |
11,777 |
||
|
2024 |
01/22/2024 |
217,500 |
112,778 |
12,405 |
1,000 |
11,405 |
||
|
2023 |
01/23/2023 |
199,000 |
109,494 |
12,043 |
1,000 |
11,043 |
||
|
2022 |
02/22/2022 |
179,000 |
106,305 |
11,692 |
1,000 |
10,692 |
||
| Property Building Permit History | |||||||||||
|---|---|---|---|---|---|---|---|---|---|---|---|
| Issued | Permit # | Provided by | Bldg # | Description | Est Construction Cost | Status | |||||
| No Building Permit records returned. | |||||||||||
| Click button on building number to access detailed information: | ||||||
|---|---|---|---|---|---|---|
| Bldg # | Vacant/Improved Land | Bldg Description | Year Built | SqFt | # Stories | |
|
1 |
Improved |
Ranch 1 Story |
1986 |
960 |
1 Stories |
|