|
|
|
| Larry Stein Oklahoma County Assessor (405) 713-1200 - Public Access System |
|
|
|
|
|
|
| Real Property Display - Screen Produced 3/21/2026 11:18:49 AM | ||||
|---|---|---|---|---|
| Account: R144154035 | Type: Residential | Location: |
12728 SE 54TH ST |
|
| Building Name/Occupant: |
|
OKLAHOMA CITY |
||
| Owner Name 1: | PAFFORD BRANDON & JESSICA |
Parcel PIN#: |
1282-14-415-4035 |
|
| Owner Name 2: | 1/4 section #: |
1282 |
||
| Owner Name 3: | Parent Acct: |
|
||
| Billing Address: | 12728 SE 54TH ST | Tax District: |
|
|
| City, State, Zip | CHOCTAW, OK 73020-5608 | School System: |
Mid-Del #52 |
|
|
Country: (If noted) |
Land Size: |
4.8000 Acres |
||
|
Land Value: 120,295 |
|
|||
|
Sect 21-T11N-R1W Qtr SE |
UNPLTD PT SEC 21 11N 1W
Block
000
Lot
000
|
|||
| Full Legal Description: UNPLTD PT SE4 SEC 21 11N 1W BEING W 1/2 SW4 NE4 SE4 EX BEG AT SW/C N124.75FT SELY 249.71FT W266.69FT TO BEG |
| No comparable sales report available. | ||||||||||||||||||||||
|
||||||||||||||||||||||
| Value History (*The County Treasurer 405-713-1300 posts & collects actual tax amounts. Contact information HERE) | |||||||||||||
|---|---|---|---|---|---|---|---|---|---|---|---|---|---|
| Year | Market Value | Taxable Mkt Value | Gross Assessed | Exemption | Net Assessed | Millage | Est. Tax | Tax Savings | |||||
|
2025 |
189,305 |
154,350 |
16,978 |
0 |
16,978 |
126.46 |
$2,147 |
$486 |
|||||
|
2024 |
179,671 |
147,000 |
16,170 |
0 |
16,170 |
128.51 |
$2,078 |
$462 |
|||||
|
2023 |
140,000 |
140,000 |
15,400 |
0 |
15,400 |
122.94 |
$1,893 |
$0 |
|||||
|
2022 |
140,000 |
140,000 |
15,400 |
0 |
15,400 |
122.11 |
$1,880 |
$0 |
|||||
|
2021 |
140,000 |
140,000 |
15,400 |
0 |
15,400 |
124.74 |
$1,921 |
$0 |
|||||
| Property Account Status/Adjustments/Exemptions | ||
|---|---|---|
| Account # | Exemption Description | Amount |
|
R144154035 |
5% Capped Account |
0 |
| Property Deed Transaction History (Recorded in the County Clerk's Office) | ||||||||||
|---|---|---|---|---|---|---|---|---|---|---|
| Date | Type | Book | Page | Price | Grantor | Grantee | ||||
|
6/4/2025 |
|
Deeds |
$0 |
PAFFORD BRANDON T |
PAFFORD BRANDON & JESSICA |
|||||
|
6/4/2020 |
|
Deeds |
$140,000 |
KLEBER THEODORE S & JUDITH C |
PAFFORD BRANDON T |
|||||
|
12/8/2015 |
|
Deeds |
$0 |
KLEBER THEODORE S |
KLEBER THEODORE S & JUDITH C |
|||||
|
7/31/2009 |
|
Deeds |
$125,000 |
DAVIS DENNIS F & DEBRA R |
KLEBER THEODORE S |
|||||
|
11/19/2001 |
|
Deeds |
$0 |
KEATING ROBERT L REV LIV TRUST |
KEATING VERA |
|||||
| Last Mailed Notice of Value (N.O.V.) Information/History | ||||||||
|---|---|---|---|---|---|---|---|---|
| Year | Date | Market Value | Taxable Market Value | Gross Assessed | Exemption | Net Assessed | ||
|
2026 |
02/06/2026 |
201,967 |
162,067 |
17,826 |
0 |
17,826 |
||
|
2025 |
01/31/2025 |
189,305 |
154,350 |
16,978 |
0 |
16,978 |
||
|
2024 |
01/22/2024 |
179,671 |
147,000 |
16,170 |
0 |
16,170 |
||
|
2021 |
02/24/2021 |
140,000 |
140,000 |
15,400 |
0 |
15,400 |
||
|
2020 |
02/21/2020 |
98,178 |
83,765 |
9,214 |
1,000 |
8,214 |
||
| Property Building Permit History | |||||||||||
|---|---|---|---|---|---|---|---|---|---|---|---|
| Issued | Permit # | Provided by | Bldg # | Description | Est Construction Cost | Status | |||||
| No Building Permit records returned. | |||||||||||
| Click button on building number to access detailed information: | ||||||
|---|---|---|---|---|---|---|
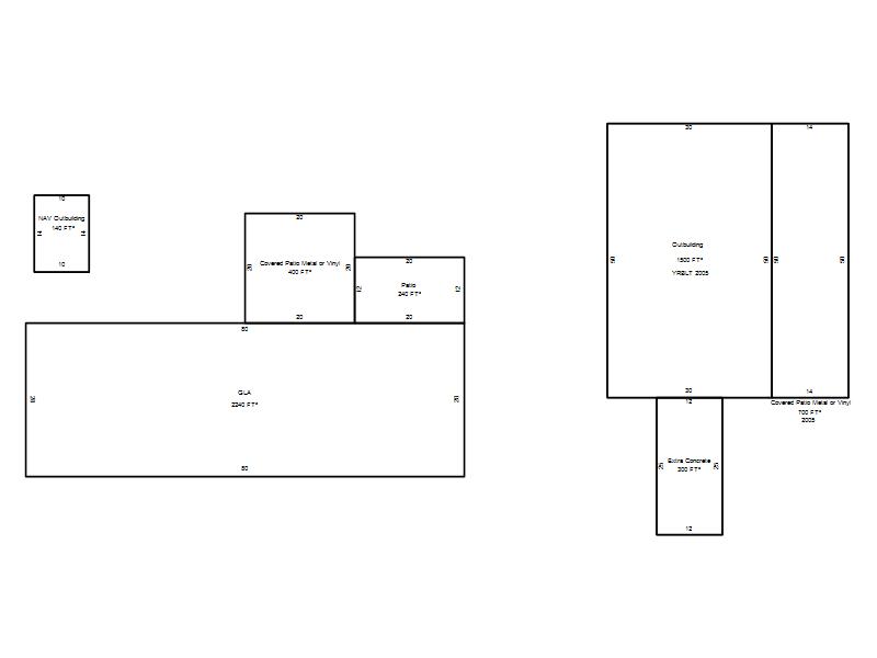
| Bldg # | Vacant/Improved Land | Bldg Description | Year Built | SqFt | # Stories | |
|
1 |
Improved |
Double Wide |
2000 |
2,240 |
1 Stories |
|