|
|
|
| Larry Stein Oklahoma County Assessor (405) 713-1200 - Public Access System |
|
|
|
|
|
|
| Real Property Display - Screen Produced 3/21/2026 11:21:36 AM | ||||
|---|---|---|---|---|
| Account: R144154475 | Type: Residential | Location: |
12507 SE 59TH ST |
|
| Building Name/Occupant: |
|
OKLAHOMA CITY |
||
| Owner Name 1: | RIGGINS CLINT E |
Parcel PIN#: |
1282-14-415-4475 |
|
| Owner Name 2: | 1/4 section #: |
1282 |
||
| Owner Name 3: | Parent Acct: |
1282-14-415-4000 |
||
| Billing Address: | 6728 NW 8TH ST | Tax District: |
|
|
| City, State, Zip | OKLAHOMA CITY, OK 73127-5412 | School System: |
Mid-Del #52 |
|
|
Country: (If noted) |
Land Size: |
10.9100 Acres |
||
|
Land Value: 193,832 |
|
|||
|
Sect 21-T11N-R1W Qtr SE |
UNPLTD PT SEC 21 11N 1W
Block
000
Lot
000
|
|||
| Full Legal Description: UNPLTD PT SEC 21 11N 1W 000 000 PT SE4 SEC 21 11N 1W BEING E 1/2 OF W 1/2 OF SW4 OF SE4 CONT 10ACRS EX S50FT PLUS E 1/2 OF SW4 OF NW4 OF SE4 LESS H/W R/W& EX BEG NW/C OF SD TR TH S27FT SE170FT SE188FT N141.5FT W330FT TO BEG |
| No comparable sales report available. | ||||||||||||||||||||||
|
||||||||||||||||||||||
| Value History (*The County Treasurer 405-713-1300 posts & collects actual tax amounts. Contact information HERE) | |||||||||||||
|---|---|---|---|---|---|---|---|---|---|---|---|---|---|
| Year | Market Value | Taxable Mkt Value | Gross Assessed | Exemption | Net Assessed | Millage | Est. Tax | Tax Savings | |||||
|
2025 |
317,048 |
202,737 |
22,300 |
0 |
22,300 |
126.46 |
$2,820 |
$1,590 |
|||||
|
2024 |
277,307 |
193,083 |
21,238 |
0 |
21,238 |
128.51 |
$2,729 |
$1,191 |
|||||
|
2023 |
204,876 |
183,889 |
20,227 |
0 |
20,227 |
122.94 |
$2,487 |
$284 |
|||||
|
2022 |
204,129 |
175,133 |
19,264 |
0 |
19,264 |
122.11 |
$2,352 |
$389 |
|||||
|
2021 |
166,794 |
166,794 |
18,347 |
1,000 |
17,347 |
124.74 |
$2,164 |
$125 |
|||||
| Property Account Status/Adjustments/Exemptions | ||
|---|---|---|
| Account # | Exemption Description | Amount |
|
R144154475 |
5% Capped Account |
0 |
| Property Deed Transaction History (Recorded in the County Clerk's Office) | ||||||||||
|---|---|---|---|---|---|---|---|---|---|---|
| Date | Type | Book | Page | Price | Grantor | Grantee | ||||
|
5/12/2016 |
|
Deeds |
$0 |
RIGGINS ILEANA |
RIGGINS CLINT E |
|||||
|
5/4/2016 |
|
Deeds |
$0 |
RIGGINS CLINT E & ILEANA M |
SEE DOCUMENT FOR OWNER INFO |
|||||
|
4/19/2012 |
|
Deeds |
$0 |
RIGGINS CLINT E |
RIGGINS CLINT E & ILEANA |
|||||
|
3/31/2008 |
|
Deeds |
$170,000 |
RAK PROPERTIES INC |
RIGGINS CLINT E |
|||||
|
1/14/2008 |
|
Mult Parcel |
$135,000 |
CLARK BILLY GENE & KIMBERLE |
RAK PROPERTIES INC |
|||||
| Last Mailed Notice of Value (N.O.V.) Information/History | ||||||||
|---|---|---|---|---|---|---|---|---|
| Year | Date | Market Value | Taxable Market Value | Gross Assessed | Exemption | Net Assessed | ||
|
2026 |
02/06/2026 |
306,614 |
212,873 |
23,416 |
0 |
23,416 |
||
|
2025 |
01/31/2025 |
317,048 |
202,737 |
22,300 |
0 |
22,300 |
||
|
2024 |
01/22/2024 |
277,307 |
193,083 |
21,238 |
0 |
21,238 |
||
|
2023 |
01/23/2023 |
204,876 |
183,889 |
20,227 |
0 |
20,227 |
||
|
2022 |
02/22/2022 |
204,129 |
175,133 |
19,264 |
0 |
19,264 |
||
| Property Building Permit History | |||||||||||
|---|---|---|---|---|---|---|---|---|---|---|---|
| Issued | Permit # | Provided by | Bldg # | Description | Est Construction Cost | Status | |||||
| No Building Permit records returned. | |||||||||||
| Click button on building number to access detailed information: | ||||||
|---|---|---|---|---|---|---|
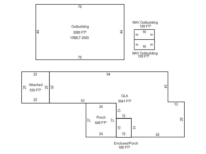
| Bldg # | Vacant/Improved Land | Bldg Description | Year Built | SqFt | # Stories | |
|
1 |
Improved |
Ranch 1 Story |
1961 |
3,641 |
1 Stories |
|
|
2 |
Improved |
Single Wide |
1982 |
1,064 |
1 Stories |
|