|
|
|
| Larry Stein Oklahoma County Assessor (405) 713-1200 - Public Access System |
|
|
|
|
|
|
| Real Property Display - Screen Produced 3/24/2026 8:08:16 AM | ||||
|---|---|---|---|---|
| Account: R020102785 | Type: Residential | Location: |
3305 NE 14TH PL |
|
| Building Name/Occupant: |
|
OKLAHOMA CITY |
||
| Owner Name 1: | MOORE OLIVER & SANDRA |
Parcel PIN#: |
2519-02-010-2785 |
|
| Owner Name 2: | 1/4 section #: |
2519 |
||
| Owner Name 3: | Parent Acct: |
|
||
| Billing Address: | 3305 NE 14TH PL | Tax District: |
|
|
| City, State, Zip | OKLAHOMA CITY, OK 73117-6211 | School System: |
Oklahoma City #89 |
|
|
Country: (If noted) |
Land Size: |
0.1815 Acres |
||
|
Land Value: 13,042 |
|
|||
|
Sect 30-T12N-R2W Qtr SW |
GARDEN OAKS
Block
010
Lot
012
|
|||
| Full Legal Description: GARDEN OAKS 010 012 |
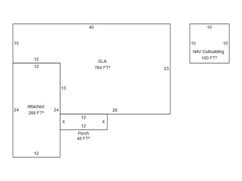
| Photo & Sketch (if available) | Comp Sales (ordered by relevancy) |
|
||||||||||||||||||
|
||||||||||||||||||||
| Value History (*The County Treasurer 405-713-1300 posts & collects actual tax amounts. Contact information HERE) | |||||||||||||
|---|---|---|---|---|---|---|---|---|---|---|---|---|---|
| Year | Market Value | Taxable Mkt Value | Gross Assessed | Exemption | Net Assessed | Millage | Est. Tax | Tax Savings | |||||
|
2025 |
79,500 |
26,273 |
2,889 |
0 |
2,889 |
122.90 |
$355 |
$720 |
|||||
|
2024 |
68,500 |
25,022 |
2,752 |
0 |
2,752 |
123.89 |
$341 |
$593 |
|||||
|
2023 |
63,000 |
23,831 |
2,620 |
0 |
2,620 |
122.82 |
$322 |
$529 |
|||||
|
2022 |
52,500 |
22,697 |
2,495 |
0 |
2,495 |
117.63 |
$294 |
$386 |
|||||
|
2021 |
43,000 |
21,617 |
2,377 |
0 |
2,377 |
117.70 |
$280 |
$277 |
|||||
| Property Account Status/Adjustments/Exemptions | ||||||
|---|---|---|---|---|---|---|
| Account # | Exemption Description | Amount | ||||
| No adjustment/exemption records returned. | ||||||
| Property Deed Transaction History (Recorded in the County Clerk's Office) | |||||||
|---|---|---|---|---|---|---|---|
| Date | Type | Book | Page | Price | Grantor | Grantee | |
|
2/26/2025 |
|
Deeds |
$60,000 |
HOPKINS CHERICE MICHELLE TRS |
MOORE OLIVER & SANDRA |
||
|
4/10/2012 |
|
Hmstd Off & |
$0 |
HAMMOND WALTER L SR & MARY A |
HOPKINS CHERICE MICHELLE TRS |
||
|
11/11/1911 |
|
Historical |
$0 |
|
HAMMOND WALTER L SR & MARY A |
||
| Last Mailed Notice of Value (N.O.V.) Information/History | ||||||||
|---|---|---|---|---|---|---|---|---|
| Year | Date | Market Value | Taxable Market Value | Gross Assessed | Exemption | Net Assessed | ||
|
2026 |
02/23/2026 |
87,000 |
87,000 |
9,570 |
0 |
9,570 |
||
|
2025 |
02/14/2025 |
79,500 |
26,273 |
2,889 |
0 |
2,889 |
||
|
2025 |
03/28/2025 |
79,500 |
26,273 |
2,889 |
0 |
2,889 |
||
|
2024 |
02/13/2024 |
68,500 |
25,022 |
2,752 |
0 |
2,752 |
||
|
2023 |
02/14/2023 |
63,000 |
23,831 |
2,620 |
0 |
2,620 |
||
| Property Building Permit History | |||||||||||
|---|---|---|---|---|---|---|---|---|---|---|---|
| Issued | Permit # | Provided by | Bldg # | Description | Est Construction Cost | Status | |||||
| No Building Permit records returned. | |||||||||||
| Click button on building number to access detailed information: | ||||||
|---|---|---|---|---|---|---|
| Bldg # | Vacant/Improved Land | Bldg Description | Year Built | SqFt | # Stories | |
|
1 |
Improved |
Ranch 1 Story |
1955 |
764 |
1 Stories |
|