|
|
|
| Larry Stein Oklahoma County Assessor (405) 713-1200 - Public Access System |
|
|
|
|
|
|
| Real Property Display - Screen Produced 3/21/2026 11:21:28 AM | ||||
|---|---|---|---|---|
| Account: R144152410 | Type: Residential | Location: |
12100 SE 44TH ST |
|
| Building Name/Occupant: |
|
OKLAHOMA CITY |
||
| Owner Name 1: | HARKINS PAIGE & BRYAN |
Parcel PIN#: |
1284-14-415-2410 |
|
| Owner Name 2: | 1/4 section #: |
1284 |
||
| Owner Name 3: | Parent Acct: |
|
||
| Billing Address: | 12100 SE 44TH ST | Tax District: |
|
|
| City, State, Zip | CHOCTAW, OK 73020-6141 | School System: |
Mid-Del #52 |
|
|
Country: (If noted) |
Land Size: |
5.7100 Acres |
||
|
Land Value: 133,062 |
|
|||
|
Sect 21-T11N-R1W Qtr NW |
UNPLTD PT SEC 21 11N 1W
Block
000
Lot
000
|
|||
| Full Legal Description: UNPLTD PT NW4 SEC 21 11N 1W BEG 446.50FT E NW/C NW4 TH E250FT S994.81FT W250FT N994.78FT TO BEG CONT 5.71ACRS MORE OR LESS AKATR 3 |
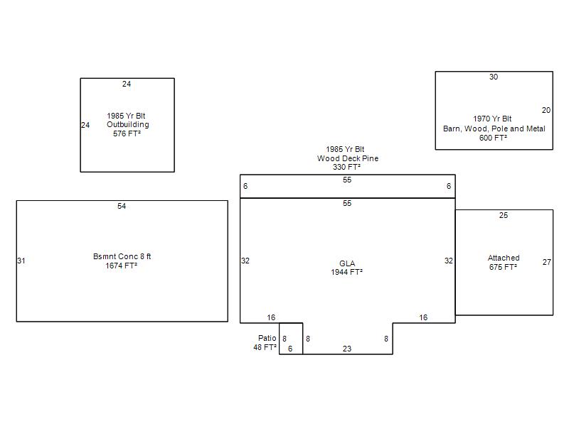
| Photo & Sketch (if available) | Comp Sales (ordered by relevancy) |
|
||||||||||||||||||
|
||||||||||||||||||||
| Value History (*The County Treasurer 405-713-1300 posts & collects actual tax amounts. Contact information HERE) | |||||||||||||
|---|---|---|---|---|---|---|---|---|---|---|---|---|---|
| Year | Market Value | Taxable Mkt Value | Gross Assessed | Exemption | Net Assessed | Millage | Est. Tax | Tax Savings | |||||
|
2025 |
452,000 |
452,000 |
49,720 |
1,000 |
48,720 |
126.46 |
$6,161 |
$126 |
|||||
|
2024 |
446,000 |
446,000 |
49,060 |
1,000 |
48,060 |
128.51 |
$6,176 |
$129 |
|||||
|
2023 |
391,000 |
242,278 |
26,650 |
0 |
26,650 |
122.94 |
$3,276 |
$2,011 |
|||||
|
2022 |
329,000 |
230,741 |
25,381 |
25,381 |
0 |
122.11 |
$0 |
$4,419 |
|||||
|
2021 |
296,000 |
224,021 |
24,641 |
24,641 |
0 |
124.74 |
$0 |
$4,061 |
|||||
| Property Account Status/Adjustments/Exemptions | ||
|---|---|---|
| Account # | Exemption Description | Amount |
|
R144152410 |
3% Cap Homestead |
0 |
|
R144152410 |
Homestead |
1,000 |
| Property Deed Transaction History (Recorded in the County Clerk's Office) | |||||||
|---|---|---|---|---|---|---|---|
| Date | Type | Book | Page | Price | Grantor | Grantee | |
|
7/31/2023 |
|
Deeds |
$250,000 |
INGRAM HAROLD E TRS |
HARKINS PAIGE & BRYAN |
||
|
5/26/1994 |
|
Historical |
$0 |
INGRAM HAROLD E |
INGRAM HAROLD E TRS |
||
|
12/30/1993 |
|
Historical |
$0 |
INGRAM HAROLD E & ROSETTA M |
INGRAM HAROLD E |
||
|
4/1/1983 |
|
Historical |
$0 |
|
INGRAM HAROLD E & ROSETTA M |
||
| Last Mailed Notice of Value (N.O.V.) Information/History | ||||||||
|---|---|---|---|---|---|---|---|---|
| Year | Date | Market Value | Taxable Market Value | Gross Assessed | Exemption | Net Assessed | ||
|
2025 |
01/31/2025 |
452,000 |
452,000 |
49,720 |
1,000 |
48,720 |
||
|
2024 |
01/22/2024 |
446,000 |
446,000 |
49,060 |
1,000 |
48,060 |
||
|
2023 |
01/23/2023 |
391,000 |
242,278 |
26,650 |
0 |
26,650 |
||
|
2022 |
02/22/2022 |
329,000 |
230,741 |
25,380 |
25,380 |
0 |
||
|
2021 |
02/24/2021 |
296,000 |
224,021 |
24,642 |
24,642 |
0 |
||
| Property Building Permit History | |||||||||||
|---|---|---|---|---|---|---|---|---|---|---|---|
| Issued | Permit # | Provided by | Bldg # | Description | Est Construction Cost | Status | |||||
| No Building Permit records returned. | |||||||||||
| Click button on building number to access detailed information: | ||||||
|---|---|---|---|---|---|---|
| Bldg # | Vacant/Improved Land | Bldg Description | Year Built | SqFt | # Stories | |
|
1 |
Improved |
Ranch 1 Story |
1985 |
1,944 |
1 Stories |
|